Мебельное изделие, созданное для сидения и отдыха человека, не имеющее спинки, по праву можно назвать прообразом стула. Это компактный, удобный предмет, который встречается практически на любой кухне, в баре, на даче. Со временем любая мебель изнашивается, приходит в негодность и встает вопрос о необходимости ее замены. Многие решают проблему кардинально, направляются в магазин. В торговой точке они часто сталкиваются с тем, что готовый продукт не отвечает предъявляемым требованиям, как с эстетической точки зрения, так и с практической. В этом случае не стоит расстраиваться, ведь без проблем можно сделать табурет своими руками в домашних условиях. Он имеет достаточно простую конструкцию, а на его изготовление не уйдет много времени.
Содержание
Невозможно точно сказать, когда впервые человек изобрел табурет. Многие предполагают, что предшественником изделия стало обычное бревно, которым пользовались первобытные люди и впоследствии модернизировали его в привычный всем предмет. Если опираться на археологию, то из найденных образцов самые древние датируются примерно 4 тысячелетием до н.э. Одна из наиболее известных находок – это складной табурет, найденный в Древнем Египте. Он относится к временам Среднего царства. Это сооружение для сидения хранится в музее Метрополитен в городе Нью-Йорке, США.
На росписях и рельефах, найденных на стенах гробниц и храмов в том же Древнем Египте, которые датируются 5 тысячелетием до н.э., есть изображения изделий, в точности похожих на современные, но они более приземистые. Из росписи на керамике, относящейся к цивилизации Междуречья, в Месопотамии первые табуреты появились в районе 3100-2370 до н.э. Однако, как утверждают историки, такие предметы быта были доступны лишь знати, обычные граждане были лишены подобных привилегий.
Позднее эти вещи перекочевали в Древнюю Грецию, где первые экземпляры, найденные на изображениях и барельефах, относят к Эгейскому периоду. Затем Древний Рим перенял большинство греческих традиций и изобретений. После его падения предмет не канул в Лету, им пользовались и в средневековье, и в эпоху просвещения. Эту полезную вещь используют и в наши дни в повседневной жизни, на кухне, на природе, в кафетериях, в медицинских, общественных учреждениях.
Сложно представить дом, дачу, квартиру, где бы отсутствовал этот предмет. Человеку это изделие известно с детства. Само название было заимствовано с немецкого языка от «taburett», согласно этимологическим словарям Фасмера М., выпускавшихся в период с 1964 по 1987 г. Другие источники утверждают, что слово пришло в русский язык с французского «tabouret».
Для производства продукции в промышленных масштабах производители используют разное сырье: дерево и его производные (фанера, ДСП, МДФ), пластик, металл. В зависимости от модели, поверхность сиденья покрывают мягкой подушкой, некоторые оставляют без обивки. По форме выделяют круглые, квадратные, треугольные варианты. Также можно разделить все изделия по высоте: низкие, высокие. Если брать во внимание внешний вид конструкции, его предназначение и устройство, то можно выделить следующие виды:
Табурет для малыша – одно из первых мебельных изделий, которым ребенок пользуется в повседневной жизни. Детишки сидят на нем, используют в качестве подставки при необходимости дотянутся к интересующей их вещи, расположенной высоко. Очень важно, чтобы предмет был удобным, прочным, безопасным. Таким требованиям не всегда соответствуют покупные модели.
Основным отличием этого варианта от стандартной конструкции является его размер и высота. Небольшая мебель характеризуется меньшим весом, занимает мало пространства, ее удобно переносить. С этой задачей способен справиться даже маленький ребенок. Таким предметом очень комфортно пользоваться и взрослым, особенно пожилым людям, которые используют его как подставку для ног.
При самостоятельном изготовлении следует учитывать некоторые моменты:
Для людей, имеющих небольшую жилплощадь, которые пытаются сэкономить каждый сантиметр свободного пространства, этот предмет будет очень полезен. Компактный табурет со специальным отделением для разных вещей – это эталон практичности. Изделие будет востребовано как женщинами, так и мужчинами.
Если его расположить на кухне, то ящик можно использовать для хранения полотенец, салфеток, прихваток, других кухонных принадлежностей. Если же им будет пользоваться мужчина, то изделие станет очень увесистым, от расположенного внутри молотка, кусачек, плоскогубцев, других подручных инструментов и расходных материалов.
Для изготовления такой конструкции следует выбирать прочную доску и брус, которые будут использованы в качестве царги и ножек соответственно. Сиденье вырезается из МДФ или ДСП, для дна подойдет обычный лист фанеры. Некоторые умельцы делают выдвижные ящики, установленные на направляющих.
Если требуется более вместительная модель, то табурет можно сделать без ножек, выделив все пространство от сиденья к полу под ящик.
Многих людей не устраивает жесткое сидение, поэтому при самостоятельном изготовлении изделия они делают мягкую основу. Она может быть съемной или пришивной. Первая модель удобна тем, что ее в любой момент можно снять и постирать. Второй вариант жестко фиксируется к поверхности, поэтому чистку тканевого материала выполнить проблематично. В качестве наполнителя используется разное сырье, к наиболее распространенным видам относятся:
В качестве обивки применяется:
Отдельно можно выделить изделия с плетеным сидением. Для его изготовления потребуется только каркас. Основание формируется из разных материалов. Для работы подойдет канат, кожаные, искусственные брючные ремни, резина, другое подручное сырье. Сплести сидение можно разными способами, интересно будет смотреться как диагональное, так и прямое плетение.
Табурет характеризуется компактностью, мобильностью, многофункциональностью, практичностью. Используется этот предмет для разных целей. Его можно установить на кухне в малогабаритной квартире, взять с собой на рыбалку или на природу, ему легко найти применение на даче, в гараже. Однако такая конструкция менее долговечна, по сравнению со стандартной моделью, складные части часто выходят из строя.
Изделие состоит из сидения, царги, нижних перемычек, ног, раскладного механизма. В зависимости от предназначения, производится из металла или дерева. Может иметь круглое или квадратное сидение. При отсутствии готового чертежа подобрать размеры очень сложно. Самостоятельно можно изготовить самые простые варианты.
Для изготовления в домашних условиях сложных конструкций потребуется специальное оборудование для обработки древесины, ведь сделать идеально ровные закругленные края ручным способом очень проблематично.
Эта модель занимает отдельное место, так как совмещает в себе несколько предметов: лестницу, мебель для сидения. Встречаются варианты с ящиком, что делает такие изделия многофункциональными. Главной особенностью табуретки являются ступеньки, закрепленные на ее ножках. Такой предмет всегда пригодится, как в домашнем хозяйстве, так и на производстве. Существует несколько разновидностей комбинированных конструкций:
Следует выбирать толстые доски для ступеней и сиденья, усилить опорные ноги. При изготовлении этих табуретов в первую очередь необходимо позаботиться об их прочности, так как они будут использоваться для работ на определенной высоте. Например, в доме, при необходимости заменить лампочку, в библиотеке, для удобства работы с книгами, расположенными на верхних этажах, в саду, для комфортного сбора фруктов.
На даче можно использовать старую мебель, хранящуюся на чердаке, которую жалко выкинуть, но она пригодна для реставрации. Если же планируется изготовление новых моделей, то стоит подумать над тем, что в большинстве случаев табурет будет находиться на улице. Поэтому для работы можно применять любой подручный материал. Подойдут куски железа, ранее использованное дерево, которое, даже если и сгниет, придет в негодность под действием атмосферных осадков и солнечных лучей, то это не приведет к сожалению.
Для сооружения дачных вариантов нет необходимости использовать первоклассную древесину или металл. Для этих целей подойдут старые поддоны, оставшиеся после строительства стройматериалы, спилы дерева для изготовления сидения, прочные ветки, арматура – для опорных ножек и проножек. Используя подручное сырье, можно создать недорогое изделие. Для продления срока эксплуатации готовый продукт обрабатывают специальными составами, красят, покрывают лаком.
Конструкцию можно установить на веранде, в летней кухне, использовать в беседке, если приехали гости и для них не хватает места на скамейке. Также табурет станет отличным подспорьем при сборе урожая в саду. На зиму изделие не стоит оставлять на улице, его следует занести в помещение. Если делать периодический визуальный осмотр вовремя, подкрашивать, то самодельный предмет прослужит довольно длительное время.
Основным материалом, из которого изготавливают конструкцию, выступает натуральная древесина. По прочности и эксплуатационным качествам готовое изделие можно сравнить с коваными моделями. По удобству и функциональности не имеет себе равных. Для работы можно использовать хвойные породы: ель, сосна. Для создания более долговечных конструкций используется дуб, лиственница.
В качестве альтернативы дереву можно использовать ЛДСП или МДФ. Варианты с классом эмиссии E0 и E1 являются безопасными для человека. Внешне изделия будут смотреться очень привлекательно. Однако по такому параметру как истирание, этот материал уступает древесине, поэтому специалисты рекомендуют к пяткам ног прибивать натуральные деревянные набойки.
Для изготовления предмета в домашних условиях можно использовать металл. Однако для работы с ним потребуются определенные навыки работы с электроинструментом и сваркой. По прочности ему нет равных. Однако по эстетическому виду он уступает предыдущим вариантам, за исключением кованых моделей.
Народные умельцы применяют вообще любое подручное сырье. В ход идут ветки, спилы деревьев. Некоторые отливают конструкции из бетона, используют пластиковые трубы для отопления, декорируют их текстилем. Кто-то дает вторую жизнь старым покрышкам.
Все составные части табурета должны изготавливаться по предварительно созданному чертежу. На эскизе сразу проставляются размеры каждой детали, ширина выемок, длина пазов, диаметр окружностей. Можно не делать идеально ровных линий, достаточно схематического отображения. На рисунке необходимо отметить места всех соединений, тип крепления.
Стандартный табурет состоит из нескольких элементов. Основные части – ножки, крышка. К дополнительным, необязательным, относятся следующие детали:
Сделать табурет из дерева быстро и качественно можно только с помощью специальных столярных инструментов. Не обязательно иметь профессиональное оборудование, можно вполне обойтись минимальным набором электроприборов и принадлежностей для работы с древесными материалами. Перечень необходимых инструментов выглядит следующим образом:
Сделать своими руками табурет может запросто любой желающий. Изготовлением простейшей мебели занимаются ученики на уроках труда. Простые конструкции примитивны, состоят из сиденья и ножек. При наличии правильного чертежа и минимальных столярных навыков изготовление стандартного предмета не займет много времени. Подготовку древесных материалов можно проводить прямо в квартире или на балконе. Свой первый табурет можно сделать в домашних условиях по одному из следующих мастер-классов.
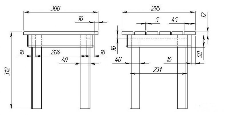
Такой стул имеет самую простую конструкцию. Сделать классический табурет можно из остатков ДСП, фанеры, досок. Потребуется всего несколько деталей, правильно подогнанных под размер и надежно скрепленных. Начинаем работу с изготовления следующих элементов:
Сделать классический табурет можно из любых древесных отходов. Будет достаточно одной неширокой доски, листа фанеры. Дерево должно быть обязательно сухим, без сучков, червоточины, расколов. Оптимальная толщина – 25 мм. Для ножек используют черепной квадратный брус. При желании можно сделать его круглым.
Листы ДСП, фанера 20 мм не требуют особой подготовки к сборке, с ними проще работать. Разделять можно обычным лобзиком. Схема заготовки деталей будет идентична варианту из досок. Любой из материалов для табурета должен хорошо поддаваться обработке, сверлению, выдерживать вес взрослого человека.
Собирать начинаем с ножек. Располагаем 2 заготовки на столе, обработанным торцом вверх. Между ними заподлицо подкладываем царгу. В нижней части, в 10 см от торца, устанавливаем проножку. Прикручиваем все детали саморезами с двух сторон.
Такие же манипуляции проделываем с остальными парами изделий. Соединяем конструкции, добавляем промежуточные царги и подножки. Переворачиваем будущий табурет на ножки, распределяем в верхней части заготовки для крышки, прикручиваем саморезами.
Важный атрибут, повышающий комфорт в любой ситуации, особенно придется по душе рыбакам, дачникам и просто любителям пикников на природе. Благодаря продуманному механизму стул удобно складывается, он занимает мало места в руках, багажнике автомобиля. Смастерить подобный табурет очень легко самостоятельно.
Для начала необходимо определиться с моделью и дизайном деревянного помощника. Это может быть простой табурет, большой стул со спинкой или простенькая рыбацкая конструкция с тканевым сиденьем.
Начинающим мастерам столярного дела лучше начать с изготовления простой раздвижной мебели. Подойдут проекты обычных складных табуретов с минимальным количеством деталей. Размер и высоту изделия каждый подбирает индивидуально.
Сделать табурет со складным механизмом можно как из новых, так и когда-то использованных древесных материалов, при условии, что они не утратили прочность и декоративные характеристики. Подойдут части сломанной мебели, оставшиеся после ремонта бруски. Полный перечень будет зависеть от модели и размеров складного табурета. Новые расходные материалы можно приобрести в любом строительном магазине. Для работы потребуются:
Работу по заготовке и сборке деталей нельзя начинать без чертежа. Можно использовать уже имеющийся эскиз или создать свой, согласно выбранным размерам и дизайну. Самая простая и понятная схема у раскладного табурета с квадратной крышкой из реек или плоских досок. Пошаговая инструкция и рекомендации помогут быстро собрать изделие со складным механизмом:
Не стоит затягивать болты слишком сильно, иначе табурет придется трансформировать с усилием, что увеличивает вероятность различных поломок. Все элементы конструкции должны свободно двигаться относительно друг друга.
Оригинальный табурет с плетеным сиденьем подойдет не только для дачи, террасы или балкона. Он отлично впишется в современные интерьеры. Для декора можно использовать любой материал. Красивые узоры из пеньковой веревки будут хорошо смотреться в скандинавском, эко стиле. Геометрические абстракции, шахматное плетение из ярких синтетических шнуров подойдет для комнат в стиле фьюжн, бохо, китч, авангард, эклектика.
Для создания плетеного табурета можно использовать любую невообразимую идею. Мебель можно сделать пригодной для сидения, в виде столика, подставки для ног. Удобной она будет в любом случае. Подходящий по всем параметрам вариант получится, если правильно подобрать материал, учесть его жесткость и хорошо отрегулировать натяжение.
Каркас для всех типов подобных табуретов собирается по стандартной схеме. Если таким стулом будет пользоваться взрослый человек, в процессе подготовки деталей необходимо предусмотреть несколько усилителей прочности. Это могут быть царги, приножки.
Плетень вместо верхней крышки табурета уменьшает устойчивость изделия, поэтому необходимо использовать любые возможности укрепления конструкции. Также следует учесть, чем больше размер сиденья, тем менее устойчивым будет плетеный стульчик. Для изготовления потребуются следующие материалы:
После подготовки, вырезания материалов для каркаса, их тщательно зачищают. Только максимально ровные детали могут быть устойчивыми. Для проделывания отверстий под определенным углом используют кондуктор. Сбор табурета начинают с ножек, приножек. Все элементы скручиваются по чертежу. Для надежности в области соединения верхней части ножек с царгами монтируют дополнительные металлические уголки. Каркас готов, можно переходить к оформлению сиденья. Сделать это можно несколькими способами:
Для изготовления табурета подойдет прочная комбинированная фанера. Существует множество вариантов конструкций, отличающийся составом, дизайном, количеством слоев. Традиционный табурет может иметь любую форму сиденья. Это может быть невысокое простое изделие, барный стул, стильные сложные конструкции.
Самый важный показатель при выборе материала для табурета – механическая прочность. Лист фанеры также должен быть упругим и влагостойким. При покупке сырья следует обязательно обращать внимание на маркировку с качественными характеристиками. Оптимальная толщина 10-18 мм. При грамотной раскройке одного листа стандартных размеров хватит на два красивых табурета.
Разделив лист фанеры визуально на две части, можно приступать к нанесению разметки. Многие производители мебели используют такие размеры: высота – 45 см, сиденье – 30х30 см. Для обеспечения максимального комфорта общепринятые цифры можно уменьшать или увеличивать. Наносить разметку на лист начинают с самых сложных элементов – ножек, по следующему принципу:
Теперь можно приступать к распилу и сбору деталей. Работать будем электролобзиком. Чтоб не оставить рваных краев и терять время на дополнительную отделку, раскрой надо делать с лицевой стороны листа, только новым острым полотном. Исключить деформацию фанеры также можно, если предварительно пройтись по контуру схемы с двух сторон сапожным ножом. Таким же способом делаем прорези на ножках.
Основная, самая трудоемкая часть работы сделана, приступаем к сбору табурета. Соединяем ножки по центру поперечины через паз. Кладем сиденье на стол изнанкой вверх, прикладываем ножки, выравниваем по центру, обводим по контуру карандашом. Делаем неглубокие отверстия по размеру верхней части деталей, заливаем клеем и проводим соединение всех элементов.
Сделать прочный функциональный табурет можно из простого картона. Для работы потребуется несколько больших коробок от бытовой техники, продуктов питания. Чем крупнее будет основание, тем больше деталей можно на нем разместить.
Начинаем создавать оригинальный табурет с подготовки деталей. Переносим на картон чертеж и вырезаем заготовки. В каждой детали делаем неглубокие прорези по схеме для качественной стыковки. На все места соединения наносим клей ПВА и собираем стульчик. Спустя несколько дней после высыхания стыки необходимо повторно обработать клеем. Это добавит табуретке прочности и надежно зафиксирует все элементы. Сделать новый предмет мебели водостойким поможет покраска, лакирование.
Обычные деревянные, фанерные табуретки выглядят скучно и безлико. В оригинальном исполнении подойдут только для дачи, балкона, посиделок на природе. Самые простые способы декора – однотонная покраска, роспись, лакирование. Создать стильный объект интерьера можно в технике декупаж. Метод нельзя назвать простым, но результат будет того стоить. Табуретки также можно декорировать текстурными обоями в цвет поверхностей комнаты или пошить, связать для них мягкие текстильные чехлы.
Сделать простую табуретку эксклюзивным объектом мебели можно, если декорировать ее сиденье бетоном. Такие варианты будут отлично смотреться на кухне модерн, лофт, хай-тек. Работать можно с крышкой любой формы. Наливаем в пластиковое ведро, подходящую емкость раствор, помещаем табурет сиденьем вниз, распределяем бетон равномерно. Чтобы смесь не пристала ко дну и боковым стенкам, их предварительно надо смазать маслом или мыльным раствором.
Для изготовления простого функционального табурета потребуется минимум доступных материалов и несколько часов времени. Даже самое невзрачное изделие не будет лишним в доме. Мобильный, легкий предмет мебели наполнит комнату уютом и теплотой. Сделанный табурет по собственному эскизу станет оригинальным украшением любой кухни.









































