Интерьер
  • Контакты Dizayn

Наталия Кацуцевичюс: тропический интерьер для дочери - «Интерьер»

6-11-2018, 20:01   Сильвия   Нашли ошибку?    Мы в Яндекс.Дзен


Наталия Кацуцевичюс: тропический интерьер для дочери - «Интерьер»
Диван Icon Design. Барные стулья с сиденьями из массива дуба Living Furniture. Арт Quintessa. Светильники Umage (Vita Copenhagen).

Квартира в Санкт-Петербурге — особенный проект для дизайнера Наталии Кацуцевичюс, ведь интерьер создавался для ее дочери-студентки.


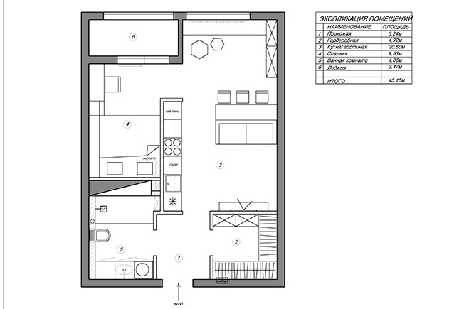
«Передо мной стояла задача — спроектировать квартиру площадью 45 кв. метров так, чтобы учесть пожелания и потребности молодой девушки: отдельную гардеробную, просторную гостиную, куда бы могли приходить друзья, и уютную спальню, — рассказывает Наталия. — В результате перепланировки я совместила гостиную и кухню, отделила спальню, не загромождая небольшое пространство квартиры лишними дверьми. Также удалось сделать отдельную вместительную гардеробную».


nonehttps://www.instagram.com/natalinkdesign/?hl=runonehttp://nkinterior.ru/?
Пуф Roome Design. Cтеллаж и подоконная часть спроектированы индивидуально для проекта и изготовлены в столярной мастерской в Санкт-Петербурге.
Подоконная часть спроектирована индивидуально для проекта и изготовлены в столярной мастерской в Санкт-Петербурге.
Пуф Roome Design. Cтеллаж и подоконная часть спроектированы индивидуально для проекта и изготовлены в столярной мастерской в Санкт-Петербурге.
Диван Icon Design. Табурет Kartell. Арт Quintessa. Светильники Umage (Vita Copenhagen).

Чтобы визуально расширить пространство, использовали зеркала. «Дверные полотна в ванную и гардеробную расположены напротив друг друга и имеют зеркальное покрытие. Это расположение дверей создает оптический эффект — зеркальный коридор. А открыв одну из дверей, появляется возможность увидеть себя с разных сторон. Это функционально и удобно». Зеркало во всю стену появилось и в объединенной зоне кухни-гостиной, создавая эффект второго окна.


Диван Icon Design. Табурет Kartell. Светильники Umage (Vita Copenhagen). Краска для стен Little Greene. Паркетная доска: брашированный массив дуба «Экопол». Текстиль Thevenon, Zara Home, Galeria Arben. Арт Quintessa.

В основе палитры интерьера — серый цвет. Нейтральный оттенок служит фоном для ярких цветовых акцентов, присущих «тропической» теме, выбранной дизайнером. Красочный текстиль и аксессуары поднимают настроение и подчеркивают жизнерадостный характер хозяйки квартиры. «Немного иронии добавили при оформлении прихожей — на стене висят декоративные головы собак, которые мы раскрасили вместе с дочерью». — комментирует Наталия.


Барные стулья с сиденьями из массива дуба Living Furniture. Арт Quintessa. Светильники Umage (Vita Copenhagen).

Одним из ярких пятен стал бирюзовый диван в бархатной обивке. К нему примыкает кухонный остров, который выполняет и роль стола. «Это сердце комнаты, ведь сидя за ним, удобно обедать, работать за компьютером, смотреть телевизор или в окно». Квартира находится на 18 этаже дома, из окон открывается живописная панорама Петербурга, поэтому подоконник решили расширить и сделать его местом отдыха. «Увеличенная подоконная часть изготовлена по индивидуальным размерам в столярной мастерской. Мы украсили ее мягкими яркими подушками и теплым пледом, создав отличное место, чтобы выпить кофе с утра или почитать книгу вечером.




Подиум в спальне спроектирован индивидуально для проекта и изготовлен в столярной мастерской в Санкт-Петербурге. Арт — Наталия Кацуцевичюс.
Подиум в спальне спроектирован индивидуально для проекта и изготовлен в столярной мастерской в Санкт-Петербурге. Арт — Наталия Кацуцевичюс.



Комод в прихожей Ikea.



Тумба бирюзового цвета для ванной комнаты спроектирована индивидуально для проекта и изготовлена в столярной мастерской в Санкт-Петербурге. Сантехника Villeroy&Boch, Grohe. Плитка – CE.SI., Equipe.
Сантехника Villeroy&Boch, Grohe. Плитка – CE.SI., Equipe.



Вместо привычной кровати решили установить широкий подиум с выдвижными ящиками для хранения. Он выполнен по индивидуальным размерам и занимает всю ширину комнаты. Так получилось создать уютный уголок, в котором приятно проводить время и комфортно спать. В ванной комнате висит большое зеркало, чтобы визуально увеличить пространство. За дверцами бирюзовой тумбы скрыты стиральная машина и бойлер. В душевой нет дверей, она лишь частично отгорожена стеклом. Так душ напоминает водопад в тропическом лесу.



В итоге удалось спланировать небольшую площадь квартиры так, чтобы в ней было комфортно жить и не чувствовать себя в тесноте. И, что важнее, создать атмосферу жаркого «тропического рая» и передать тепло, которого порой так не хватает в Санкт-Петербурге».






Диван Icon Design. Барные стулья с сиденьями из массива дуба Living Furniture. Арт Quintessa. Светильники Umage (Vita Copenhagen). Квартира в Санкт-Петербурге — особенный проект для дизайнера Наталии Кацуцевичюс, ведь интерьер создавался для ее дочери-студентки. «Передо мной стояла задача — спроектировать квартиру площадью 45 кв. метров так, чтобы учесть пожелания и потребности молодой девушки: отдельную гардеробную, просторную гостиную, куда бы могли приходить друзья, и уютную спальню, — рассказывает Наталия. — В результате перепланировки я совместила гостиную и кухню, отделила спальню, не загромождая небольшое пространство квартиры лишними дверьми. Также удалось сделать отдельную вместительную гардеробную». nonehttps://www.instagram.com/natalinkdesign/?hl=runonehttp://nkinterior.ru/? Пуф Roome Design. Cтеллаж и подоконная часть спроектированы индивидуально для проекта и изготовлены в столярной мастерской в Санкт-Петербурге. Подоконная часть спроектирована индивидуально для проекта и изготовлены в столярной мастерской в Санкт-Петербурге. Пуф Roome Design. Cтеллаж и подоконная часть спроектированы индивидуально для проекта и изготовлены в столярной мастерской в Санкт-Петербурге. Диван Icon Design. Табурет Kartell. Арт Quintessa. Светильники Umage (Vita Copenhagen). Чтобы визуально расширить пространство, использовали зеркала. «Дверные полотна в ванную и гардеробную расположены напротив друг друга и имеют зеркальное покрытие. Это расположение дверей создает оптический эффект — зеркальный коридор. А открыв одну из дверей, появляется возможность увидеть себя с разных сторон. Это функционально и удобно». Зеркало во всю стену появилось и в объединенной зоне кухни-гостиной, создавая эффект второго окна. Диван Icon Design. Табурет Kartell. Светильники Umage (Vita Copenhagen). Краска для стен Little Greene. Паркетная доска: брашированный массив дуба «Экопол». Текстиль Thevenon, Zara Home, Galeria Arben. Арт Quintessa. В основе палитры интерьера — серый цвет. Нейтральный оттенок служит фоном для ярких цветовых акцентов, присущих «тропической» теме, выбранной дизайнером. Красочный текстиль и аксессуары поднимают настроение и подчеркивают жизнерадостный характер хозяйки квартиры. «Немного иронии добавили при оформлении прихожей — на стене висят декоративные головы собак, которые мы раскрасили вместе с дочерью». — комментирует Наталия. Барные стулья с сиденьями из массива дуба Living Furniture. Арт Quintessa. Светильники Umage (Vita Copenhagen). Одним из ярких пятен стал бирюзовый диван в бархатной обивке. К нему примыкает кухонный остров, который выполняет и роль стола. «Это сердце комнаты, ведь сидя за ним, удобно обедать, работать за компьютером, смотреть телевизор или в окно». Квартира находится на 18 этаже дома, из окон открывается живописная панорама Петербурга, поэтому подоконник решили расширить и сделать его местом отдыха. «Увеличенная подоконная часть изготовлена по индивидуальным размерам в столярной мастерской. Мы украсили ее мягкими яркими подушками и теплым пледом, создав отличное место, чтобы выпить кофе с утра или почитать книгу вечером. Подиум в спальне спроектирован индивидуально для проекта и изготовлен в столярной мастерской в Санкт-Петербурге. Арт — Наталия Кацуцевичюс. Подиум в спальне спроектирован индивидуально для проекта и изготовлен в столярной мастерской в Санкт-Петербурге. Арт — Наталия Кацуцевичюс. Комод в прихожей Ikea. Тумба бирюзового цвета для ванной комнаты спроектирована индивидуально для проекта и изготовлена в столярной мастерской в Санкт-Петербурге. Сантехника Villeroy

Цитирование статьи, картинки - фото скриншот - Rambler News Service.
Иллюстрация к статье - Яндекс. Картинки.
Есть вопросы. Напишите нам.
Общие правила  поведения на сайте.



«oz90.ru»