Интерьер
  • Контакты Dizayn

Артем Тригубчак: современный минимализм в Ярославле - «Интерьер»

16-11-2018, 16:04   Анастасия   Нашли ошибку?    Мы в Яндекс.Дзен


Артем Тригубчак: современный минимализм в Ярославле - «Интерьер»

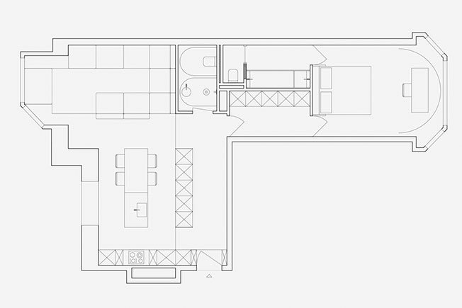
Квартира в Ярославле площадью 86 кв. метров имела крайне неудачную планировку. Пространство представляло собой практически лабиринт из пяти помещений, два из которых не имели естественного освещения.


nonehttps://www.instagram.com/tri_artem/https://www.facebook.com/tri.artemhttps://artemtrigubchak.com/

Заказчики, молодая пара, пригласили киевского архитектора Артема Тригубчака переделать мрачные и сложные апартаменты в функциональное и лаконичное пространство.





Квартира находится на 18 этаже новостройки в Ярославле, всего в километре от исторического центра города. В результате полной перепланировки Артем сохранил лишь две комнаты: спальню и гостиную, совмещенную с кухней. Хозяйская ванная комната стала частью спальни, а гостевой санузел был изолирован от общей зоны стеклоблоками и легкими шторами. Таким образом каждое помещение получила окно, из которого можно любоваться тысячелетним ярославским Кремлем.



Владельцы являются поклонниками японского минимализма и бельгийской эстетики. Архитектор сосредоточился на использовании натуральных и долговечных материалов — мрамор, бетон, дерево, металл, которые создают в интерьере ощущение прочности и долговечности. Нотку легкости и мягкости в пространство привносят эфемерные шторы в зоне кабинета.




Самыми эффектными объектами в интерьере стала монументальная мраморная ванна и лаконичная бетонная раковина, выполненная на заказ по эскизам архитекторов. Утонченный акцент спальни и прилегающей ванной комнаты — смеситель по дизайну легендарного датского архитектора Арне Якобсена для бренда Vola. В 2018 году компания празднует 50 лет со дня его создания.









Квартира в Ярославле площадью 86 кв. метров имела крайне неудачную планировку. Пространство представляло собой практически лабиринт из пяти помещений, два из которых не имели естественного освещения. nonehttps://www.instagram.com/tri_artem/https://www.facebook.com/tri.artemhttps://artemtrigubchak.com/ Заказчики, молодая пара, пригласили киевского архитектора Артема Тригубчака переделать мрачные и сложные апартаменты в функциональное и лаконичное пространство. Квартира находится на 18 этаже новостройки в Ярославле, всего в километре от исторического центра города. В результате полной перепланировки Артем сохранил лишь две комнаты: спальню и гостиную, совмещенную с кухней. Хозяйская ванная комната стала частью спальни, а гостевой санузел был изолирован от общей зоны стеклоблоками и легкими шторами. Таким образом каждое помещение получила окно, из которого можно любоваться тысячелетним ярославским Кремлем. Владельцы являются поклонниками японского минимализма и бельгийской эстетики. Архитектор сосредоточился на использовании натуральных и долговечных материалов — мрамор, бетон, дерево, металл, которые создают в интерьере ощущение прочности и долговечности. Нотку легкости и мягкости в пространство привносят эфемерные шторы в зоне кабинета. Самыми эффектными объектами в интерьере стала монументальная мраморная ванна и лаконичная бетонная раковина, выполненная на заказ по эскизам архитекторов. Утонченный акцент спальни и прилегающей ванной комнаты — смеситель по дизайну легендарного датского архитектора Арне Якобсена для бренда Vola. В 2018 году компания празднует 50 лет со дня его создания.

Цитирование статьи, картинки - фото скриншот - Rambler News Service.
Иллюстрация к статье - Яндекс. Картинки.
Есть вопросы. Напишите нам.
Общие правила  поведения на сайте.



«oz90.ru»