Интерьер
  • Контакты Dizayn

Мастерская в старой башне - «Интерьер»

4-12-2018, 12:01   Екатерина   Нашли ошибку?    Мы в Яндекс.Дзен


Мастерская в старой башне - «Интерьер»

Room on the Roof — проект бюро i29: лаконичное, но комфортное жилье на скромных квадратных метрах в Амстердаме. «Комната на крыше» расположена в башне универмага de Bijenkorf в центре голландской столицы. Ее появление — совместный проект de Bijenkorf и художественного музея Rijksmuseum.


Компактная светлая студия предназначена для дизайнеров, художников, поэтов, музыкантов и других людей творческих профессий, которые могли бы здесь пожить, полностью сфокусировавшись на своей работе. Результаты трудов в рамках проекта потом предъявляются публике. Первым резидентом стал дизайнер Мартен Баас.



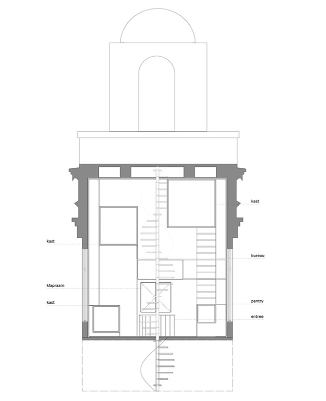
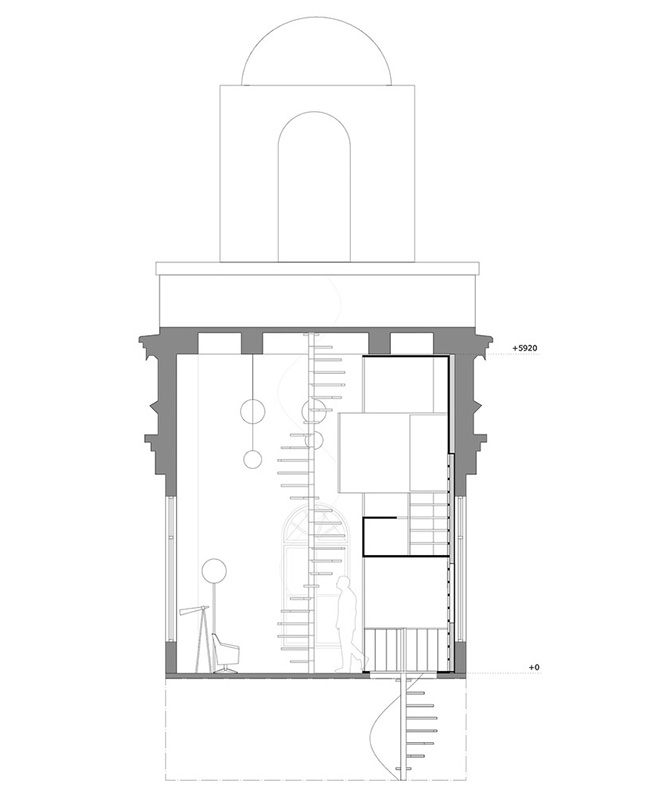
Попасть в башню можно по винтовой лестнице. Почти такая же — от пола до потолка — стала центральным элементом пространства. Она позволяет подняться на крышу и служит украшением интерьера, выделяясь за счет черного цвета на фоне белых стен и пола, а также конструкций из светлого дерева. Деление на зоны в комнате организовано не горизонтально, а вертикально: вдоль одной стены выстроен трехуровневый «короб» с отсеками, в которых расположены кабинет, спальня, раковина.








В остальном пространстве минимум мебели и аксессуаров: белоснежные кресло, столик, вешалка для одежды и мягкий ковер. А также телескоп — для наблюдения за жизнью города и вдохновения.

















Room on the Roof — проект бюро i29: лаконичное, но комфортное жилье на скромных квадратных метрах в Амстердаме. «Комната на крыше» расположена в башне универмага de Bijenkorf в центре голландской столицы. Ее появление — совместный проект de Bijenkorf и художественного музея Rijksmuseum. Компактная светлая студия предназначена для дизайнеров, художников, поэтов, музыкантов и других людей творческих профессий, которые могли бы здесь пожить, полностью сфокусировавшись на своей работе. Результаты трудов в рамках проекта потом предъявляются публике. Первым резидентом стал дизайнер Мартен Баас. Попасть в башню можно по винтовой лестнице. Почти такая же — от пола до потолка — стала центральным элементом пространства. Она позволяет подняться на крышу и служит украшением интерьера, выделяясь за счет черного цвета на фоне белых стен и пола, а также конструкций из светлого дерева. Деление на зоны в комнате организовано не горизонтально, а вертикально: вдоль одной стены выстроен трехуровневый «короб» с отсеками, в которых расположены кабинет, спальня, раковина. В остальном пространстве минимум мебели и аксессуаров: белоснежные кресло, столик, вешалка для одежды и мягкий ковер. А также телескоп — для наблюдения за жизнью города и вдохновения.

Цитирование статьи, картинки - фото скриншот - Rambler News Service.
Иллюстрация к статье - Яндекс. Картинки.
Есть вопросы. Напишите нам.
Общие правила  поведения на сайте.



«oz90.ru»