Интерьер
  • Контакты Dizayn

Co-Direction Design: вилла на продажу - «Интерьер»

8-12-2018, 08:00   Самуил   Нашли ошибку?    Мы в Яндекс.Дзен


Co-Direction Design: вилла на продажу - «Интерьер»

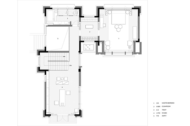
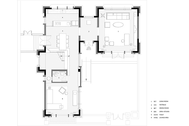
Студия Co-Direction Design, базирующаяся в Шэньчжэне, оформила интерьер демонстрационной виллы площадью 270 кв. метров. Она находится в районе Биньхай города Тяньцзинь и наполнена современным дизайном и работами современных художников.


Согласно концепции студии, дом отражает жизненную философию владельца так же, как картина и литературное произведение — мировоззрение автора. Интерьер призван быть персональным, выражать индивидуальность через материалы, цвета, оригинальные элементы.







Просторная гостиная впечатляет эффектным потолком из бронзированной нержавеющей стали: на золотистом фоне — такая же золотая решетка, в которую встроена система освещения. Теплый металл с мягким блеском активно используется в интерьере: в оформлении дверных откосов и оконных рам, в элементах мебели и аксессуарах.






Золотой — один из основных цветов в палитре проекта. Его уравновешивают черный, белый и красный и их оттенки, которые дизайнеры по-разному дозируют в пространствах. В фойе, разделяющем столовую и гостиную, преобладают красный и золотой, чтобы создать величественное ощущение, которое усиливает геометричная скульптура.



В столовой строгие черный и белый цвета служат нейтральным фоном для ярких красных акцентов. Ванная комната, роскошная и медитативная, отделана черным мрамором. Пространство визуально увеличивает зеркало шириной во всю стену.




В спальне на втором этаже палитра включает в себя больше природных оттенков — от зеленовато-серого до теплого коричневого, от глубокого синего и мягкого оранжевого, чтобы создать расслабленное настроение.



Украшением интерьера служат не только арт-объекты, но и выбор мебели. Так, в гостиной место заняло кресло Utrecht по дизайну Геррита Ритвельда, Сassina, а ярко-красный диван дополнил столик Salute, созданный для La Chance дизайнером Себастьяном Херкнером.





















Студия Co-Direction Design, базирующаяся в Шэньчжэне, оформила интерьер демонстрационной виллы площадью 270 кв. метров. Она находится в районе Биньхай города Тяньцзинь и наполнена современным дизайном и работами современных художников. Согласно концепции студии, дом отражает жизненную философию владельца так же, как картина и литературное произведение — мировоззрение автора. Интерьер призван быть персональным, выражать индивидуальность через материалы, цвета, оригинальные элементы. Просторная гостиная впечатляет эффектным потолком из бронзированной нержавеющей стали: на золотистом фоне — такая же золотая решетка, в которую встроена система освещения. Теплый металл с мягким блеском активно используется в интерьере: в оформлении дверных откосов и оконных рам, в элементах мебели и аксессуарах. Золотой — один из основных цветов в палитре проекта. Его уравновешивают черный, белый и красный и их оттенки, которые дизайнеры по-разному дозируют в пространствах. В фойе, разделяющем столовую и гостиную, преобладают красный и золотой, чтобы создать величественное ощущение, которое усиливает геометричная скульптура. В столовой строгие черный и белый цвета служат нейтральным фоном для ярких красных акцентов. Ванная комната, роскошная и медитативная, отделана черным мрамором. Пространство визуально увеличивает зеркало шириной во всю стену. В спальне на втором этаже палитра включает в себя больше природных оттенков — от зеленовато-серого до теплого коричневого, от глубокого синего и мягкого оранжевого, чтобы создать расслабленное настроение. Украшением интерьера служат не только арт-объекты, но и выбор мебели. Так, в гостиной место заняло кресло Utrecht по дизайну Геррита Ритвельда, Сassina, а ярко-красный диван дополнил столик Salute, созданный для La Chance дизайнером Себастьяном Херкнером.

Цитирование статьи, картинки - фото скриншот - Rambler News Service.
Иллюстрация к статье - Яндекс. Картинки.
Есть вопросы. Напишите нам.
Общие правила  поведения на сайте.



«oz90.ru»