Интерьер
  • Контакты Dizayn

Simon Astridge Architecture Workshop: таунхаус в Лондоне - «Интерьер»

12-01-2019, 09:01   Макар   Нашли ошибку?    Мы в Яндекс.Дзен


Simon Astridge Architecture Workshop: таунхаус в Лондоне - «Интерьер»

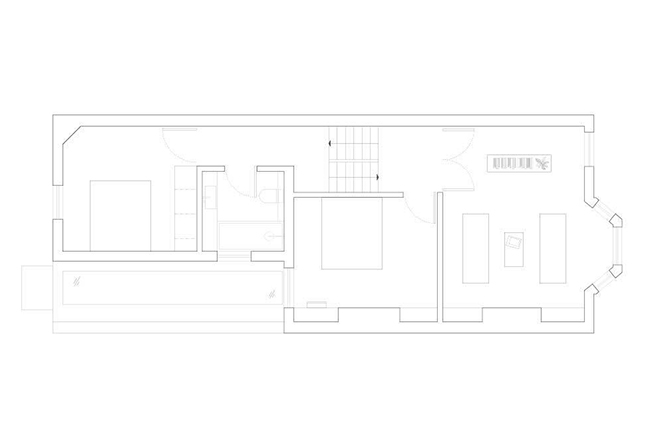
Владельцы таунхауса в Лондоне смогли связать свои теплые воспоминания об отдыхе в Португалии и Израиле с этим недавно завершенным ремонтом. Вместе с командой Simon Astridge Architecture Workshop семья провела полную реконструкцию жилья, включая подвальный этаж. У них было намерение создать дом, «приспособленный для общего счастья, наблюдая, как их дети вырастут в доме». Дизайн удачно сочетает в себе свет и тьму, старое и новое, игру и изысканность, богатство и простоту, а главное — память и потенциал.


Вдохновленные роскошными и визуально богатыми интерьерами, с которыми они столкнулись за границей, хозяева выбрали медь и латунь в качестве объединяющих материалов для дизайна. Блестящая золотая отделка акцентирована по всему дому, широко используется на открытой кухне и в столовых.



По словам архитекторов, задача заключалась в том, чтобы «акцентировать воспоминания с помощью медной кухонной посуды, керамики, окрашенной в медный цвет, облицовки и деталей — бра, накладок на дверные рамы, потолочных светильников, создающих естественное теплое свечение».








Блестящие полированные латунные элементы прекрасно сочетаются с существующим историческим контекстом и смягчают более твердые материалы, такие как темные дерево, камень и сталь. В главной ванной комнате синие плитки в стиле ар-деко идеально сочетаются с чистыми и простыми деревянными поверхностями. Сочетание крупноформатной плитки и декоративной выделяет зону для купания.










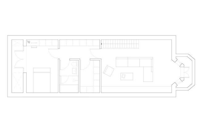
Главная спальня — это комната, в которой максимально эффективно используется естественное освещение — с помощью серии созданных световых люков из зоны ванной и гардеробной.



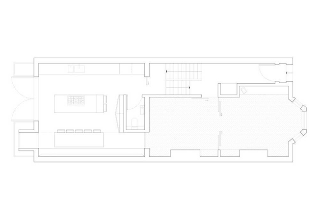
Таунхаус сохранил многие из своих викторианских черт, однако недавно раскопанный подвал воплощал в себе мрачное настроение, которое резко отличается от светлых этажей выше. Новая складная лестница из мягкой стали ведет в современное семейное пространство. Архитекторы объясняют, что «для зонирования и гибкого использования подвальной зоны с открытой планировкой было тщательное отобраны цвета и текстуры».















Владельцы таунхауса в Лондоне смогли связать свои теплые воспоминания об отдыхе в Португалии и Израиле с этим недавно завершенным ремонтом. Вместе с командой Simon Astridge Architecture Workshop семья провела полную реконструкцию жилья, включая подвальный этаж. У них было намерение создать дом, «приспособленный для общего счастья, наблюдая, как их дети вырастут в доме». Дизайн удачно сочетает в себе свет и тьму, старое и новое, игру и изысканность, богатство и простоту, а главное — память и потенциал. Вдохновленные роскошными и визуально богатыми интерьерами, с которыми они столкнулись за границей, хозяева выбрали медь и латунь в качестве объединяющих материалов для дизайна. Блестящая золотая отделка акцентирована по всему дому, широко используется на открытой кухне и в столовых. По словам архитекторов, задача заключалась в том, чтобы «акцентировать воспоминания с помощью медной кухонной посуды, керамики, окрашенной в медный цвет, облицовки и деталей — бра, накладок на дверные рамы, потолочных светильников, создающих естественное теплое свечение». Блестящие полированные латунные элементы прекрасно сочетаются с существующим историческим контекстом и смягчают более твердые материалы, такие как темные дерево, камень и сталь. В главной ванной комнате синие плитки в стиле ар-деко идеально сочетаются с чистыми и простыми деревянными поверхностями. Сочетание крупноформатной плитки и декоративной выделяет зону для купания. Главная спальня — это комната, в которой максимально эффективно используется естественное освещение — с помощью серии созданных световых люков из зоны ванной и гардеробной. Таунхаус сохранил многие из своих викторианских черт, однако недавно раскопанный подвал воплощал в себе мрачное настроение, которое резко отличается от светлых этажей выше. Новая складная лестница из мягкой стали ведет в современное семейное пространство. Архитекторы объясняют, что «для зонирования и гибкого использования подвальной зоны с открытой планировкой было тщательное отобраны цвета и текстуры».

Цитирование статьи, картинки - фото скриншот - Rambler News Service.
Иллюстрация к статье - Яндекс. Картинки.
Есть вопросы. Напишите нам.
Общие правила  поведения на сайте.



«oz90.ru»