Екатерина Сванидзе и Екатерина Любарская, архитектурная студия Dvekati, оформили интерьер в доме 1970-х годов. Настоящее московской квартиры постарались связать с ее прошлым, не воссоздавая советский быт буквально.
Квартира площадью 90 кв. метров расположена в Пресненском районе, на восьмом этаже кирпичного дома 1969 года постройки. «Дом исторически населяет московская интеллигенция, — рассказывают архитекторы. — В подъезде тебя встречает бдительный консьерж и живые цветы в горшках. Обстановка за пятьдесят лет не изменилась — оригинальные деревянные почтовые ящики сразу же попадают в объектив айфона.
В квартире тоже сохранилось множество предметов из прошлого: советские бра на керамическом основании, зеркала. Все, что можно было сохранить, решено было интегрировать в дизайн. Большой плюс — ленточное остекление лоджий, открывающее необыкновенный вид на город.
Среди достоинств и хорошая высота потолка, около трех метров. Хотелось максимально сохранить дух настоящей московской квартиры в историческом районе, опираясь на историю дома, на эпоху, в которую он строился. При этом не прибегая к излишним декоративным приемам».
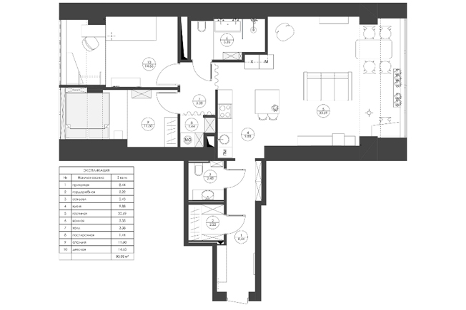
Хозяева — семейная пара и их сын — нашли студию Dvekati по рекомендациям. Их основным пожеланием было оптимизировать пространство и сделать его удобным для троих человек. В остальном заказчики положились на архитекторов. Главное, что их не устраивало в квартире — планировка. Квартира изначально двухкомнатная, с компактной кухней, и семье, которая много времени проводит вечерами за разговорами, не хватало комфортного и свободного общего пространства.
Чтобы его сформировать, провели перепланировку. «Одну из комнат разместили на месте бывшей кухни, официально упразднив газ. Гостиная переехала в большую комнату с огромным окном, а зона кухни расположилась в коридоре. Удалось также организовать гостевой санузел и гардеробную при входе, они разместились в объеме, выкрашенном графитовым цветом. В приватной части квартиры разместили небольшую постирочную».
В интерьере преобладает палитра нейтральных оттенков, которые служат гармоничным фоном для элементов из древесины и ярких акцентов. «Мы сторонники унификации материалов в дизайне, — говорят архитекторы. — Для пола по всей квартире выбрали ковровую циновку, в комбинации с графичной плиткой в мокрых зонах и черным керамогранитом на кухне. Приятно, что удалось защитить идею с циновкой: зачастую люди боятся ковров, считая их непрактичными пылесборниками, хотя это стереотип — современные материалы имеют высокий класс эксплуатации. Просто как и любое другое покрытие нуждаются в периодическом уходе.
Стены — нейтрального серого цвета в сочетании со сложным зеленым. Подоконное пространство в гостиной отделано шпонироваными панелями, из него «вырастает» столешница рабочей зоны. В мебель интегрированы кашпо для живых цветов. Объем ванной комнаты облицован розовым туфом. Этот же природный материал использован в комнате сына. В прихожей лавка облицована керамической плиткой кораллового цвета, она же использована в гостевом санузле для отделки столешницы и стены в ванной комнате».
Большая часть предметов — обеденный стол, кухня с островом, тумба для ТВ, кровать в детской и вся встраиваемая мебель — была спроектирована архитекторами специально для этого интерьера. «В квартире много предметов из IKEA, которые сочетаются с винтажной мебелью. Два кресла в гостиной и приставной столик у дивана — европейский винтаж. В спальне кровать помещена на подиум, в нее интегрированы скрытые ящики и подъемный механизм для хранения».
Квартиру украшают живые растения. «Нам очень хотелось поселить пальму в этой квартире. И в один из дней, проезжая по делам мимо одной из московских помоек, Катя Любарская боковым зрением увидела что-то зеленое и большое. Пришлось притормозить и, вернувшись к контейнерной площадке, среди мусора обнаружить огромное растение, которое заняло свое почетное место в этом интерьере».


























