Татьяна Аленина завершила квартиру в ЖК Union Park. Площадь — 36 кв. метров. Дизайнер рационально использовала и выделенный бюджет, и крошечное пространство: борьба шла буквально за каждый миллиметр.
Как вспоминает Татьяна Аленина, квартира, несмотря на небольшой размер, сразу понравилась: два окна, отличный вид, хорошая изначальная планировка: прямоугольная, почти квадратная форма открывала свободу в проектировании. Очень понравилась и хозяйка: молодая, приятная, девушка, увлеченная своей работой — она занята в сфере недвижимости. Ценит основательность, структурированность, четкость.
«Несмотря на небольшой размер, маленькие квартиры — чрезвычайно трудоемкие. Ведь на 36 кв. метрах надо реализовать те же задачи, что и в 100-метровом проекте, так же продумать жизненный сценарий человека, вместить все необходимое — спланировать санузел, прихожую, хотя бы небольшую гардеробную, найти место для бытовых приборов», — говорит Татьяна Аленина.
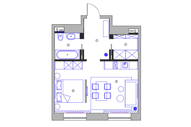
«Маленькие пространства стоит «преувеличивать»: не нарезать мелких помещений, а применять крупный масштаб, — считает Татьяна. — Здесь мы именно так и поступили. Сделали одну большую комнату, которую разделили не доходящей до стен перегородкой на спальню и гостиную».
Функционально зоны разные, но дизайн един. Цвет, отделки, покрытие пола, членение столярных изделий — во всем выдержан цельный подход. «Дробность визуально сжимает помещение, оно кажется меньше, чем есть на самом деле. Когда концепция едина, нет ощущения малых метров, а есть воздух и свет».
Понятно, что для молодой девушки этот дом не навсегда, большие деньги вкладывать в него не было смысла. Здесь нет уж очень дорогих брендов, но вещи выбраны достойные — Аленина умеет находить гармонию в простом. Многое купили в салоне Krassky «У них есть направление «Дизайн для всех», мебель из него сюда хорошо вписалась», — говорит Татьяна. Немало изделий от востребованной сегодня датской марки Gubi. Эксцентричный акцент — светильник марки Flos дизайн-дуэта Formafantasma.
«Маленькие квартиры требуют особо тщательной проработки. Это не значит, что в больших проектах тщательность не важна. Но там есть свобода маневра, а здесь — мы зажаты метражом. Решения должны быть емкими, выверенными, правильными. Вот пример: расстояние между кроватью и перегородкой, отделяющей спальню от гостиной, составляет здесь всего 5 см! Мы не могли себе позволить даже 2-сантиметровый плинтус за изголовьем: пришлось сделать технологический вырез, чтобы поставить кровать вплотную к стене».
Как и во всех своих проектах, Татьяна Аленина по максимуму применила натуральные материалы. Фактуры красивые, тактильные. «Экологичность интерьера для нас первична. Мы от своего кредо не отходим. Озвучиваем нашу позицию на первой встрече, если заказчикам она близка — беремся за проект. Мы сами любим ощущать хорошего качества материалы, босиком ходить по деревянной доске».
Дизайн предметов нейтрален. Если в чем-то и проявилось смелость, так это в цвете. Впечатляют глубокие краски на стенах. Входная зона, санузел и гардеробная объединены серо-фиолетовым оттенком. Гостиная со спальней — сложнейшим тоном, в котором есть и синева, и бирюза, и зелень. «В последнее время почти во всех своих проектах я применяю краски французского бренда Argile. Беспроигрышный вариант: никаких выкрасов делать не надо», — делится опытом Татьяна.
Несмотря на то что заказчица молода, в интерьере нет и следа девичьей легкомысленности: он основателен и добротен. Сказались и личность хозяйки, и подход дизайнера. Такую квартиру даже спустя годы легко будет продать, когда ее владелица переберется на новое место: интерьер не потеряет в качестве, при небольшой «редакции» подойдет человеку любого возраста и вкуса. Жизнеспособность проекта — вот о чем всегда думает Татьяна Аленина.















