Интерьер
  • Контакты Dizayn

Daher Jardim Arquitetura: свой маленький дом - «Интерьер»

26-03-2019, 15:02   Владимир   Нашли ошибку?    Мы в Яндекс.Дзен


Daher Jardim Arquitetura: свой маленький дом - «Интерьер»

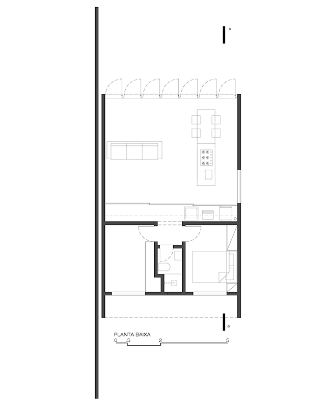
Архитекторы студии Daher Jardim Arquitetura спроектировали небольшой дом в Бразилиа, столице Бразилии. Проект получил название Little House.


Работа над проектом велась в сжатые сроки и была завершена менее чем за три месяца. Отдельным пунктом стал ограниченный бюджет, определивший выбор материалов и конструктивные особенности.




Белоснежная отделка внутри и снаружи помогает отражать солнечные лучи и защищает от сильной жары в Бразилии. Основное жилое пространство находится на одном уровне с садом, а стеклянные двери в полный рост распахиваются, обеспечивая вентиляцию и естественное освещение.




Изначально крошечная постройка площадью 24 кв. метра была расширена до 60 кв. метров. К уже имевшимся спальне и ванной комнате архитекторы добавили кухню и гостиную, чтобы у заказчика было все необходимое для комфортного проживания. Дом задуман как достаточно уединенное пространство, поэтому вместо дивана стоит только одно кресло для чтения.





Приватную зону от общественной отделяет раздвижная деревянная панель на металлическом каркасе. Кухонный остров и обеденный стол плавно переходят один в другой — цельная конструкция отлита из бетона. На полу — термоакустические плиты, экономичные и практичные, сочетающиеся с преобладающим белым цветом отделки и оттенком светлого дерева. Яркие краски вносят декор и комнатные растения.







Архитекторы студии Daher Jardim Arquitetura спроектировали небольшой дом в Бразилиа, столице Бразилии. Проект получил название Little House. Работа над проектом велась в сжатые сроки и была завершена менее чем за три месяца. Отдельным пунктом стал ограниченный бюджет, определивший выбор материалов и конструктивные особенности. Белоснежная отделка внутри и снаружи помогает отражать солнечные лучи и защищает от сильной жары в Бразилии. Основное жилое пространство находится на одном уровне с садом, а стеклянные двери в полный рост распахиваются, обеспечивая вентиляцию и естественное освещение. Изначально крошечная постройка площадью 24 кв. метра была расширена до 60 кв. метров. К уже имевшимся спальне и ванной комнате архитекторы добавили кухню и гостиную, чтобы у заказчика было все необходимое для комфортного проживания. Дом задуман как достаточно уединенное пространство, поэтому вместо дивана стоит только одно кресло для чтения. Приватную зону от общественной отделяет раздвижная деревянная панель на металлическом каркасе. Кухонный остров и обеденный стол плавно переходят один в другой — цельная конструкция отлита из бетона. На полу — термоакустические плиты, экономичные и практичные, сочетающиеся с преобладающим белым цветом отделки и оттенком светлого дерева. Яркие краски вносят декор и комнатные растения.

Цитирование статьи, картинки - фото скриншот - Rambler News Service.
Иллюстрация к статье - Яндекс. Картинки.
Есть вопросы. Напишите нам.
Общие правила  поведения на сайте.



«oz90.ru»