Интерьер
  • Контакты Dizayn

Квартира в Минске для молодого человека по проекту Interra - «Интерьер»

22-06-2019, 08:21   Young   Нашли ошибку?    Мы в Яндекс.Дзен


Квартира в Минске для молодого человека по проекту Interra - «Интерьер»

Дизайнеры студии Interra (главный архитектор Дмитрий Барашко) создали интерьер 110 кв. метров в Минске для молодого заказчика. Квартира в комплексе «Олимпик Парк» наполнена светом, а из окон открывается живописный вид на окружающий лес.


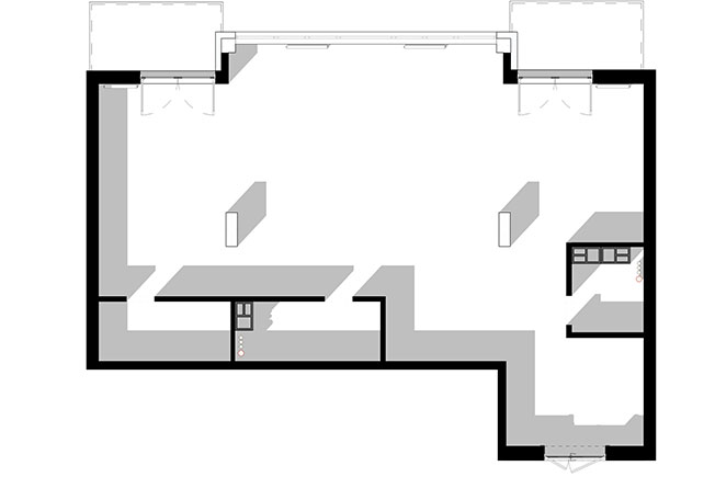
Исходная планировка от застройщика делила центральное помещение на две части с изолированной кухней. Вариантов на тему зонирования предлагалось очень много, владелец не мог определиться с выбором.



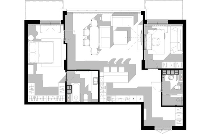
«В итоге мы отказались от концепции полностью открытого пространства в пользу приватности комнат с мыслью о том, что семейная жизнь молодого человека не за горами. Но сохранили при этом некую холостяцкую атмосферу», — рассказывает о проекте архитектор Дмитрий Барашко. В итоге были сформированы объединенная гостиная-кухня-столовая, спальня с собственной ванной комнатой, компактный кабинет и гостевой санузел.






Квартира стала третьим по счету проектом для этого заказчика, чьи вкусовые предпочтения со временем менялись. «Этот интерьер отличается от предыдущих — если раньше элементы классики всегда были под запретом, то здесь мы все же разбавили ими современное пространство». Ключевую роль в интерьере играют цветовые акценты — работы художников Андрея Петкевича и Владимира Зленко.





nonehttps://www.instagram.com/interra.by/https://www.facebook.com/interra.by/http://www.interra.by/

«Заказчик доверял нам многое и очень старался не вмешиваться, отчего проект был достаточно быстро разработан и реализован. В отделке мы сделали ставку на простоту исполнения — использовали паркет Coswick, лепнину Европласт, плитку RAGNO (Marazzi Group)».






























Дизайнеры студии Interra (главный архитектор Дмитрий Барашко) создали интерьер 110 кв. метров в Минске для молодого заказчика. Квартира в комплексе «Олимпик Парк» наполнена светом, а из окон открывается живописный вид на окружающий лес. Исходная планировка от застройщика делила центральное помещение на две части с изолированной кухней. Вариантов на тему зонирования предлагалось очень много, владелец не мог определиться с выбором. «В итоге мы отказались от концепции полностью открытого пространства в пользу приватности комнат с мыслью о том, что семейная жизнь молодого человека не за горами. Но сохранили при этом некую холостяцкую атмосферу», — рассказывает о проекте архитектор Дмитрий Барашко. В итоге были сформированы объединенная гостиная-кухня-столовая, спальня с собственной ванной комнатой, компактный кабинет и гостевой санузел. Квартира стала третьим по счету проектом для этого заказчика, чьи вкусовые предпочтения со временем менялись. «Этот интерьер отличается от предыдущих — если раньше элементы классики всегда были под запретом, то здесь мы все же разбавили ими современное пространство». Ключевую роль в интерьере играют цветовые акценты — работы художников Андрея Петкевича и Владимира Зленко. nonehttps://www.instagram.com/interra.by/https://www.facebook.com/interra.by/http://www.interra.by/ «Заказчик доверял нам многое и очень старался не вмешиваться, отчего проект был достаточно быстро разработан и реализован. В отделке мы сделали ставку на простоту исполнения — использовали паркет Coswick, лепнину Европласт, плитку RAGNO (Marazzi Group)».

Цитирование статьи, картинки - фото скриншот - Rambler News Service.
Иллюстрация к статье - Яндекс. Картинки.
Есть вопросы. Напишите нам.
Общие правила  поведения на сайте.



«oz90.ru»