Владелец квартиры площалью 78 кв. метров на Проспекте Мира любит путешествовать и во время своих поездок по Европе предпочитает останавливаться в старых квартирах, будь то Лондон или Париж. В Москве молодой человек хотел иметь харизматичное жилье в старом фонде в духе современной эклектики. Оформлением интерьера занималась студия ZE|Workroom.
Квартира расположена в здании Наркомата связи, построенном по проекту Дмитрия Булгакова в 1937-1946 годах. Историческая постройка признана памятником архитектуры.
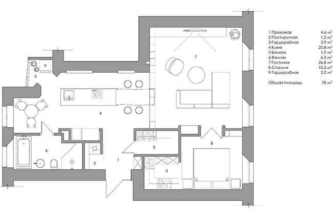
Исходник представлял собой классический пример «евроремонта» с большим количеством маленьких комнат — историческая планировка была изменена. Дизайнеры ZE|Workroom studio постарались приблизиться к максимально удобному варианту и создали комфортный гармоничный интерьер.
Часть пространства сделали открытым — сформировали просторную гостиную с диванной группой и кухню, отделенную от общей зоны лаконичным металлическим стеллажом, с большим островом, барной стойкой и компактной столовой. Часть помещений остались изолированными — спальня, санузел с ванной и душевой. В прихожей оборудовали компактную постирочную и гардеробную. В получившемся объеме создали современный лаконичный интерьер с элементами лофта.
«Мы постарались вернуть дух того времени. Открыли старые кирпичные стены, в которых обнаружились ниши, восстановили гипсовые карнизы, сделанные по эскизам сохранившихся образцов, — рассказывают авторы проекта.
Так как окна изначально были небольшие, мы постарались максимально их раскрыть, чтобы добавить естественного света. Убрали лишние переплеты, выбрали узкий профиль рам и развернули откосы. Выкрасили их в глубокий синий цвет — акцентировали и сделали одной из главных тем квартиры».
В отделке использовали натуральные экологичные материалы и природные оттенки. Основой палитры стал белый и серый цвет, дополненные контрастными вставками глубоких синих тонов. Колористическое решение разворачивается на фоне теплого оттенка пола из натурального дуба с необычной геометрией.
Пол, в свою очередь, контрастирует с природным рисунком калакатты кухонного острова. Концепцию подчеркивают и связывают воедино карнизы и молдинги, выкрашенные в сложный оттенок серого цвета.
«Мы хотели отразить в интерьере возраст здания, видели это пространство в спокойном минималистичном стиле. Несмотря на то, что заказчик любит лофт, нам удалось прийти к компромиссу использовав разные стилистики и мебель».
Для интерьера подбирали интересные, но не вычурные предметы мебели, чтобы подчеркнуть, но не перенасытить пространство. Дизайнеры остановились на объектах скандинавских, немецких и чешских марок — Hem, Zeitraum, Hay, &Tradition, Ton. Вся корпусная мебель была выполнена на заказ по эскизам студии. Изюминкой кухонного острова и ТВ-тумбы стали скошенные углы и разнонаправленный рисунок шпона.
«Во время обсуждения планировки мы предложили в шутку поставить холодильник на балкон из-за небольшой площади квартиры. Заказчику идея понравилась, и теперь позитивный холодильник Smeg выглядывает с балкона, радуя всех своим цветом».









