Интерьер
  • Контакты Dizayn

Дуплекс в Париже от Sabo Project - «Интерьер»

13-07-2019, 16:07   Юлиан   Нашли ошибку?    Мы в Яндекс.Дзен


Дуплекс в Париже от Sabo Project - «Интерьер»

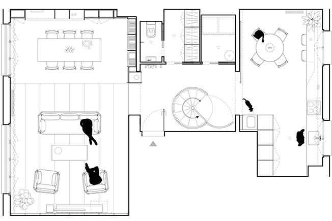
Архитекторы студии Sabo Project обновили дуплекс в пятом округе Парижа. Главный материал интерьера — березовая фанера.


Авторам предстояло реконструировать просторную, 154 кв. метра, но запущенную двухуровневую квартиру — сделать ее более подходящей для молодых хозяев и безопасной для их ребенка. Преобразования они начали с того, что расчистили коробку: сняли полы, подвесные потолки и желтую ткань со стен — предыдущие владельцы придерживались «традиционных ценностей».



Березовую фанеру очень любили классики модернизма, особенно скандинавы. Заказчикам понравилась идея: использовав недорогой, но знаковый материал, создать уникальный авторский интерьер, бросив вызов показной роскоши. Важно и то, что повсеместное присутствие фанеры способствует цельности проекта.





На верхнем уровне — опен спейс гостиной-столовой. Зонирование осуществляется покрытиями: голый бетон на потолке сменяется белой краской, дощатый пол переходит в наливной. В стены встроены шкафы из фанеры, вместо ручек — аккуратные выемки. Глухие отсеки разбавлены открытыми полками, на которых хозяева выставляют произведения искусства, книги, предметы декора.




Одна из стен обшита листами фанеры с круглыми отверстиями: они выглядят своеобразным декором и дают возможность интегрировать навесные полки.



Гостиную-столовую можно закрыть раздвижной перегородкой, опять-таки из фанеры, а чтобы домашний питомец, белый кот, свободно курсировал по дому, в перегородке сделано сводчатое отверстие. Еще одно такое же отверстие — вход в домик, где кот спит.



Кухня также укомплектована мебелью из фанеры. Встроенные модули накрыты столешницей, расположенной довольно высоко, на уровне подоконника. Она служит в том числе и барной стойкой, сидя за которой, приятно смотреть в окно. Стулья подобрали из древесины, максимально близкой по тону к фанере.



Оттенок березовой фанеры определил палитру квартиры, его дополняют серый тон бетона, а также холодный белый. Всплески цвета крайне редки, например, в столовой внимание притягивают красные, синие и желтые провода свисающей с потолка люстры. Важный источник цвета — вещи хозяев, прежде всего книги.




Спальни расположены на более тихом нижнем уровне. Туда ведет лестница. Обычно это главный источник тревог в доме, где есть маленькие дети, но в данном случае дизайнеры оснастили конструкцию съемными защитными воротцами.



Студию Sabo Project основал в 2010 году Алекс Делоне. Сегодня у нее есть офисы в Париже и Нью-Йорке. На счету студии несколько престижных премий, в том числе 40 under 40 Award для перспективных молодых архитекторов Европы.


















Архитекторы студии Sabo Project обновили дуплекс в пятом округе Парижа. Главный материал интерьера — березовая фанера. Авторам предстояло реконструировать просторную, 154 кв. метра, но запущенную двухуровневую квартиру — сделать ее более подходящей для молодых хозяев и безопасной для их ребенка. Преобразования они начали с того, что расчистили коробку: сняли полы, подвесные потолки и желтую ткань со стен — предыдущие владельцы придерживались «традиционных ценностей». Березовую фанеру очень любили классики модернизма, особенно скандинавы. Заказчикам понравилась идея: использовав недорогой, но знаковый материал, создать уникальный авторский интерьер, бросив вызов показной роскоши. Важно и то, что повсеместное присутствие фанеры способствует цельности проекта. На верхнем уровне — опен спейс гостиной-столовой. Зонирование осуществляется покрытиями: голый бетон на потолке сменяется белой краской, дощатый пол переходит в наливной. В стены встроены шкафы из фанеры, вместо ручек — аккуратные выемки. Глухие отсеки разбавлены открытыми полками, на которых хозяева выставляют произведения искусства, книги, предметы декора. Одна из стен обшита листами фанеры с круглыми отверстиями: они выглядят своеобразным декором и дают возможность интегрировать навесные полки. Гостиную-столовую можно закрыть раздвижной перегородкой, опять-таки из фанеры, а чтобы домашний питомец, белый кот, свободно курсировал по дому, в перегородке сделано сводчатое отверстие. Еще одно такое же отверстие — вход в домик, где кот спит. Кухня также укомплектована мебелью из фанеры. Встроенные модули накрыты столешницей, расположенной довольно высоко, на уровне подоконника. Она служит в том числе и барной стойкой, сидя за которой, приятно смотреть в окно. Стулья подобрали из древесины, максимально близкой по тону к фанере. Оттенок березовой фанеры определил палитру квартиры, его дополняют серый тон бетона, а также холодный белый. Всплески цвета крайне редки, например, в столовой внимание притягивают красные, синие и желтые провода свисающей с потолка люстры. Важный источник цвета — вещи хозяев, прежде всего книги. Спальни расположены на более тихом нижнем уровне. Туда ведет лестница. Обычно это главный источник тревог в доме, где есть маленькие дети, но в данном случае дизайнеры оснастили конструкцию съемными защитными воротцами. Студию Sabo Project основал в 2010 году Алекс Делоне. Сегодня у нее есть офисы в Париже и Нью-Йорке. На счету студии несколько престижных премий, в том числе 40 under 40 Award для перспективных молодых архитекторов Европы.

Цитирование статьи, картинки - фото скриншот - Rambler News Service.
Иллюстрация к статье - Яндекс. Картинки.
Есть вопросы. Напишите нам.
Общие правила  поведения на сайте.



«oz90.ru»