Интерьер
  • Контакты Dizayn

Офис Ya Vsesvit по проекту Виктории Якуши - «Интерьер»

14-07-2019, 12:29   Максимильян   Нашли ошибку?    Мы в Яндекс.Дзен


Офис Ya Vsesvit по проекту Виктории Якуши - «Интерьер»

Онлайн-издание Dezeen объявило лонглист лучших интерьеров 2019 года. Cреди них — офис Ya Vsesvit украинского дизайнера Виктории Якуши.


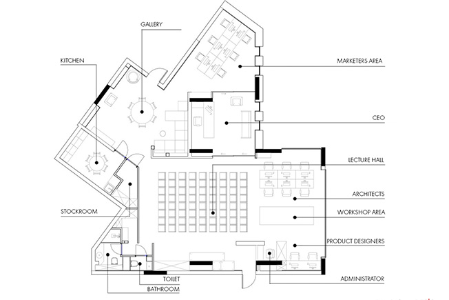
Креативное пространство Ya Vsesvit включает офис студии Yakusha Design, лекторий на 80 посадочных мест, шоу-рум бренда Faina Collection и коворкинг для всех, кто причисляет себя к комьюнити design minded: архитекторов, дизайнеров, стилистов, фотографов и др. Объкт расположен в центре Киева, площадь — 180 кв. метров. Пространство трансформируется: зоны объединяются и работают как единый организм.



nonehttps://www.instagram.com/yakusha.design/https://www.facebook.com/yakusha.designhttp://eng.yakusha.com.ua/

Автор сделала акцент на аутентичный декор. Огромные деревянные ступы, возраст которых насчитывает 150 лет, приобретены на винтажном рынке. Рядом полутораметровые вазы Trembita повторяют форму гуцульского музыкального инструмента. Штукатурка на стенах воссоздана по технологиям XVIII века, применяемым в традиционных украинских хатах-мазанках.



Наряду с этим автор использует в проекте микроцемент, бетон, кирпич, нержавеющую сталь. Стулья коллекции Faina изготовлены под заказ из эко-состава (солома, лен, хлопок, биополимер). В перегороворной зоне — массивный стол из цельной глыбы песчаника



На конкурс поступило более 4500 заявок из 87 стран. Среди членов жюри, оценивавших работы, — Патрисия Уркиола, Дэвид Роквелл, Келли Хоппен, Севил Пич.





Ранее проект Ya Vsesvit был удостоен украинской премии «Интерьер года» и занял первое место в Art Space Award 2019 в категории «Интерьер офисов, культурных и образовательных пространств».










Онлайн-издание Dezeen объявило лонглист лучших интерьеров 2019 года. Cреди них — офис Ya Vsesvit украинского дизайнера Виктории Якуши. Креативное пространство Ya Vsesvit включает офис студии Yakusha Design, лекторий на 80 посадочных мест, шоу-рум бренда Faina Collection и коворкинг для всех, кто причисляет себя к комьюнити design minded: архитекторов, дизайнеров, стилистов, фотографов и др. Объкт расположен в центре Киева, площадь — 180 кв. метров. Пространство трансформируется: зоны объединяются и работают как единый организм. nonehttps://www.instagram.com/yakusha.design/https://www.facebook.com/yakusha.designhttp://eng.yakusha.com.ua/ Автор сделала акцент на аутентичный декор. Огромные деревянные ступы, возраст которых насчитывает 150 лет, приобретены на винтажном рынке. Рядом полутораметровые вазы Trembita повторяют форму гуцульского музыкального инструмента. Штукатурка на стенах воссоздана по технологиям XVIII века, применяемым в традиционных украинских хатах-мазанках. Наряду с этим автор использует в проекте микроцемент, бетон, кирпич, нержавеющую сталь. Стулья коллекции Faina изготовлены под заказ из эко-состава (солома, лен, хлопок, биополимер). В перегороворной зоне — массивный стол из цельной глыбы песчаника На конкурс поступило более 4500 заявок из 87 стран. Среди членов жюри, оценивавших работы, — Патрисия Уркиола, Дэвид Роквелл, Келли Хоппен, Севил Пич. Ранее проект Ya Vsesvit был удостоен украинской премии «Интерьер года» и занял первое место в Art Space Award 2019 в категории «Интерьер офисов, культурных и образовательных пространств».

Цитирование статьи, картинки - фото скриншот - Rambler News Service.
Иллюстрация к статье - Яндекс. Картинки.
Есть вопросы. Напишите нам.
Общие правила  поведения на сайте.



«oz90.ru»