Интерьер
  • Контакты Dizayn

Balbek bureau: современный интерьер с лепниной - «Интерьер»

17-09-2019, 08:18   Евгений   Нашли ошибку?    Мы в Яндекс.Дзен


Balbek bureau: современный интерьер с лепниной - «Интерьер»
Фрагмент гостиной. Кресло и пуф Ligne Roset. Диван Breeze, диз. Маттео Нунциати, Molteni&C. Потолочный свет XAL.

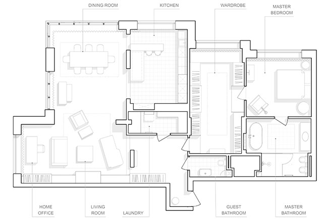
Архитекторы Слава Балбек и Евгения Дубровская (balbek bureau) оформили апартаменты 150 кв. метров в центре Киева. Современный интерьер для молодой женщины создавался с отсылками к классике: лаконичная мебель соседствует с лепниной и карнизами, а яркие акценты выигрышно смотрятся на фоне традиционного французского паркета и белых стен.


В центре пространства — масштабная гостиная, объединенная с кухней и столовой. Все здесь располагает к отдыху — удобный диван по дизайну Маттео Нунциати для Molteni&C, кресло с пуфом Ligne Roset, множество заставленных книжных полок и, конечно, камин.


Гостиная. Кресло и пуф Ligne Roset. Диван Breeze, диз. Маттео Нунциати, Molteni&C. Кушетка выполнена на заказ в столярной мастерской. Напольный светильник Handvark studio. Журнальный столик Stalkon. Камин Planika.
Кухня выполнена на заказ в столярной мастерской. Вытяжка Falmec. Столешница Vicostone и Laminam. Плитка Mutina.
Прихожая. Потолочный светильник Lambert&fils. Шкаф выполнен на заказ в столярной мастерской.

В интерьере обращают на себя внимание фактуры и акценты. В зоне кухни контрастные фасады шкафов дополнены мраморными столешницами, латунными ручками и глянцевой плиткой Mutina. Все здесь располагает к готовке в удовольствие. О гостеприимстве хозяйки говорит и масштабный обеденный стол Винсента ван Дейзена для B&B Italia, дополненный ровными рядами стульев по дизайну Ээро Сааринена — настоящая классика дизайна XX века.



Кухня. Остров выполнен на заказ в столярной мастерской. Вытяжка Falmec. Столешница Vicostone и Laminam. Плитка Mutina.

Столовая. Обеденный стол Oskar, диз. Винсент ван Дейзен, B&B Italia. Обеденные стулья Saarinen Conference chair, диз. Ээро Сааринен, Knoll.

Самая спокойная комната дома — лаконичная спальня с прилегающей ванной в синих тонах с мраморным полом. Отдельного внимания заслуживает гардеробная, исполненная в более строгом классическом духе в пастельной зеленой цветовой гамме. В эркере обустроен уютный уголок с лежанкой.



Гостиная. Кресло и пуф Ligne Roset. Диван Breeze, диз. Маттео Нунциати, Molteni&C. Кушетка выполнена на заказ в столярной мастерской. Напольный светильник Handvark studio. Журнальный столик Stalkon. Камин Planika.

Гостиная. Кресло и пуф Ligne Roset. Диван Breeze, диз. Маттео Нунциати, Molteni&C. Кушетка выполнена на заказ в столярной мастерской. Напольный светильник Handvark studio. Журнальный столик Stalkon. Камин Planika.
nonehttps://www.instagram.com/balbekbureau/https://www.facebook.com/balbekbureauarchitects/https://www.balbek.com/



nonehttps://www.instagram.com/balbekbureau/https://www.facebook.com/balbekbureauarchitects/https://www.balbek.com/

Еще одна важная составляющая проекта — свет от культовых дизайнеров и современных знаменитых авторов. Среди них — и ставшая настоящей иконой лампа Вико Маджистретти для Oluce в спальне, и практичный настольный светильник в рабчоей зоне Арне Якобсена от &tradition, и лаконичные бра в ванной пуриста Майкла Анастасиадиса для Flos, и выразительная люстра Atelier Areti в гардеробной от сестер Кершбаумер (Gwendolyn & Guillane Kerschbaumer).


Фрагмент спальни. Кровать Flou. Потолочный светильник Parachilna. Межкомнатная дверь Eva Lab.
Фрагмент спальни. Кровать Flou. Настольный светильник Atollo glass, диз. Вико Маджистретти, Oluce. Прикроватная тумба выполнена на заказ в столярной мастерской с мрамором Volakas.
Фрагмент столовой. Обеденный стол Oskar, диз. Винсент ван Дейзен, B&B Italia. Обеденные стулья Saarinen Conference chair, диз. Ээро Сааринен, Knoll.
Фрагмент столовой. Обеденный стол Oskar, диз. Винсент ван Дейзен, B&B Italia. Текстиль Daylight.
Фрагмент гостиной. Кушетка выполнена на заказ в столярной мастерской. Напольный светильник Handvark studio.
Рабочая зона. Письменный стол Stalkon. Стул Maxalto. Настольный светильник Bellevue, диз. Арне Якобсен, &tradition. Паркет Luxury parquet.
Кухня выполнена на заказ в столярной мастерской. Вытяжка Falmec. Столешница Vicostone и Laminam. Плитка Mutina. Смеситель Dornbracht.
Фрагмент спальни. Кресло Maxalto. Напольный светильник Rubn. Паркет Luxury parquet.
Гардеробная. Потолочный светильник Atelier Areti. Корпусная мебель выполнена на заказ в столярной мастерской. Текстиль Daylight.
Гардеробная. Потолочный и настенный светильник Atelier Areti. Корпусная мебель выполнена на заказ в столярной мастерской.
Гардеробная. Корпусная мебель выполнена на заказ в столярной мастерской.
Гардеробная. Потолочный и настенный светильник Atelier Areti. Корпусная мебель выполнена на заказ в столярной мастерской.
Гардеробная. Настенный светильник Atelier Areti. Корпусная мебель выполнена на заказ в столярной мастерской. Текстиль Daylight.
Ванная комната. Ванна Burlington. Настенный светильник, диз. Майкл Анастасиадис, Flos.
Гостевой санузел. Консоль для раковины Kerasan. Зеркало Stalkon. Напольная плитка Vives. Настенная плитка Adex.
Фрагмент гостевого санузла.
Гостевая ванная комната.










Фрагмент гостиной. Кресло и пуф Ligne Roset. Диван Breeze, диз. Маттео Нунциати, Molteni

Цитирование статьи, картинки - фото скриншот - Rambler News Service.
Иллюстрация к статье - Яндекс. Картинки.
Есть вопросы. Напишите нам.
Общие правила  поведения на сайте.



«oz90.ru»