Интерьер
  • Контакты Dizayn

Бывший коттедж со старыми сараями. Реконструкция Robson Rak - «Интерьер»

1-10-2019, 16:13   Фелицата   Нашли ошибку?    Мы в Яндекс.Дзен


Бывший коттедж со старыми сараями. Реконструкция Robson Rak - «Интерьер»

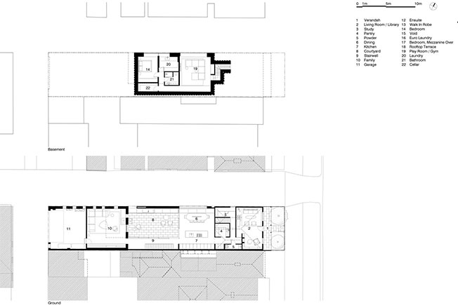
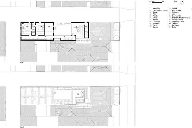
Коттедж со старыми сараями получил второе рождение. Задача проекта Albert Park Residence заключалась в создании единой внутренней среды, хотя внешне дом состоит из трех разных построек: коттеджа, бывшего стойла для коров и новых стеклянных павильонов.


Дом под остроконечной крышей стоит в Мельбурне. Проектировщикам Robson Rak надо было открыть пространство и создать функциональную планировку, соединяющую коттедж с кирпичными помещениями в задней части здания. Внешне архитекторы сохранили многие черты прошлого, а внутренне дом превратился в современное и элегантное пространство.







«Мы стремились создать пространство, способное выдержать испытание временем и не требующее обновления в ближайшем будущем. Нами двигал выбор вневременных и износостойких материалов и отделки; надежда на то, что проект сохранит свой стиль и индивидуальность на долгие годы», — объясняют архитекторы.



Название





Клиенты — семья, которая много времени проводит за границей, путешествуя по работе. Таким образом, основной целью было, чтобы дом функционировал как «убежище», с минимальными эксплуатационными расходами. Кроме того, клиенты хотели, чтобы пространство демонстрировало их коллекцию произведений искусства, что потребовало высоких потолков и свободных стен.






Нейтральная палитра позволяет внутренним и внешним пространствам плавно переходить друг в друга, и направлять внимание на четкие линии и детали. Обилие окон: застекленных фасадных и мансардных создает тонкий баланс между личной жизнью и внешним миром.



Уютная, но роскошная резиденция отражает характер и индивидуальность своих хозяев. Полы из натурального камня, простая мебель, белые стены и столярные изделия из светлого дерева служат идеальным фоном для демонстрации произведений искусства, скульптуры и дизайнерских предметов.




























Коттедж со старыми сараями получил второе рождение. Задача проекта Albert Park Residence заключалась в создании единой внутренней среды, хотя внешне дом состоит из трех разных построек: коттеджа, бывшего стойла для коров и новых стеклянных павильонов. Дом под остроконечной крышей стоит в Мельбурне. Проектировщикам Robson Rak надо было открыть пространство и создать функциональную планировку, соединяющую коттедж с кирпичными помещениями в задней части здания. Внешне архитекторы сохранили многие черты прошлого, а внутренне дом превратился в современное и элегантное пространство. «Мы стремились создать пространство, способное выдержать испытание временем и не требующее обновления в ближайшем будущем. Нами двигал выбор вневременных и износостойких материалов и отделки; надежда на то, что проект сохранит свой стиль и индивидуальность на долгие годы», — объясняют архитекторы. Название Клиенты — семья, которая много времени проводит за границей, путешествуя по работе. Таким образом, основной целью было, чтобы дом функционировал как «убежище», с минимальными эксплуатационными расходами. Кроме того, клиенты хотели, чтобы пространство демонстрировало их коллекцию произведений искусства, что потребовало высоких потолков и свободных стен. Нейтральная палитра позволяет внутренним и внешним пространствам плавно переходить друг в друга, и направлять внимание на четкие линии и детали. Обилие окон: застекленных фасадных и мансардных создает тонкий баланс между личной жизнью и внешним миром. Уютная, но роскошная резиденция отражает характер и индивидуальность своих хозяев. Полы из натурального камня, простая мебель, белые стены и столярные изделия из светлого дерева служат идеальным фоном для демонстрации произведений искусства, скульптуры и дизайнерских предметов.

Цитирование статьи, картинки - фото скриншот - Rambler News Service.
Иллюстрация к статье - Яндекс. Картинки.
Есть вопросы. Напишите нам.
Общие правила  поведения на сайте.



«oz90.ru»