Интерьер
  • Контакты Dizayn

Юлия Каманина: квартира 93 кв. метра для семьи с двумя детьми - «Интерьер»

22-10-2019, 12:05   Enderson   Нашли ошибку?    Мы в Яндекс.Дзен


Юлия Каманина: квартира 93 кв. метра для семьи с двумя детьми - «Интерьер»
Фрагмент гостиной. Панель для ТВ и подвесные тумбы изготовлены на заказ по эскизам автора проекта.

Дизайнер Юлия Каманина оформила интерьер квартиры 93 кв. метра в cтоличном ЖК «Яуза Парк» на Преображенской площади.


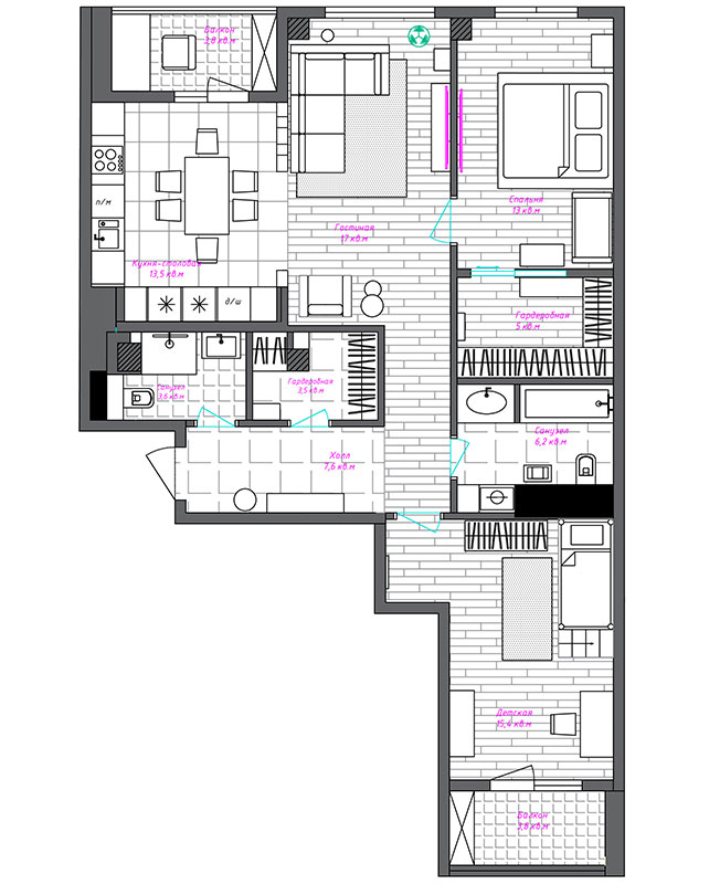
Заказчики, семейная пара с ребенком, обратились к дизайнеру сразу после получения ключей. Исходная планировка от застройщика предполагала два маленьких санузла, изолированную кухню и гостиную. Большим плюсом стало наличие двух балконов, один из которых был впоследствии оборудован под кабинет хозяина дома, а второй — как дополнительное игровое пространство для детей.


Фрагмент гостиной. Подвесной светильник Kundalini. Приставные столики Zara Home. На стене работа Кристиана Эвана, галерея Carre d'artistes

Площадь кухни и санузлов увеличили за счет коридоров, гостиную объединили с кухней и столовой — опен спейс зонировали двусторонним стеллажом. Также в квартире сформировали комнату родителей, детскую, две гардеробные, одна из которых примыкает к главной спальне, а вторая расположена в прихожей.



Зона гостиной. Панель для ТВ и подвесные тумбы изготовлены на заказ по эскизам автора проекта. Плед Missoni, Happy Collection. Ковер Kover.ru. Декор Barcelona Design, Happy Collection, H&M home. Декоративные подушки Enere.

Зона гостиной. Панель для ТВ, подвесные тумбы, стеллаж-перегодка изготовлены на заказ по эскизам автора проекта. Паркетная доска Finex. Краска Little Greene. Декор Barcelona Design, Happy Collection, H&M home.

Интересная история вышла с детской — в ходе реализации проекта заказчики узнали о пополнении в семье. Поэтому пространство проектировалось уже для двоих детей. В комнате предусмотрели системы хранения, место для детской кроватки и пеленального комода.



Кухня-гостиная. Кухня Venete Cucine, салон Gulia Novars. Подвесные светильники Flowerpot, диз. Вернер Пантон, &Tradition. Плитка на фартуке Equipe. Напольная плитка Colorker, салон Zodiac. Обеденный стол и стулья Pranzo.

«Изначально заказчики видели будущее пространство в светлых бежевых тонах, но в ходе работы я поняла, что семье нравятся решения и посмелее, — рассказывает о проекте Юлия. — Так появилась аквамариновая спальня с активными изумрудно-золотыми тропическими обоями, графичный холл и яркая детская.


Фрагмент кухни. Кухня Venete Cucine, салон Gulia Novars. Обеденный стол и стулья Pranzo. Декор Barcelona Design, Happy Collection, H&M home.
Фрагмент кухни. Столешница изготовлена из кварца. Плитка на фартуке Equipe. Декор Barcelona Design, Happy Collection, H&M home.

Но при этом более яркие помещения не выходят из диапазона палитры всей квартиры, чтобы не терялось ощущение единства. Основное пространство кухни-гостиной спокойное и сдержанное, но с фактурами и акцентами, которые способны привлечь взгляд».



Спальня. Кровать Dream Manufacture. Обои Zoffany. Панели из шпона со вставками из латуни и зеркал изготовлены на заказ по эскизам автора проекта. Прикроватная тумба Lulu store. Постельное белье Zara Home. Настенные светильники Faro. Ваза и подсвечник Barcelona Design. Декоративные подушки Enere.

В интерьере много натуральных материалов — дерево, камень, металл, стекло. Дизайнер умышленно ушла от сильных контрастов к пастельным и мягким градиентам. Нейтральный фон стал беспроигрышным вариантом для введения природных оттенков — зеленого, пудрового, пыльного желтого. Они привносят в интерьер легкость, не дают глазам заскучать.


Детская. Обои Harlequin. Потолочный светильник Odeon Light. Кровать изготовлена на заказ по эскизам автора проекта. Декоративные подушки Zara home. Письменный стол и кресло La Redoute.
Фрагмент детской. Комод EllipseFurniture, ручки Zara Home. Подвесная полка Bo Concept. Декор Barcelona Design, Zara home. Зеркало Little Street.

«Одним из удачных решений в гостиной считаю зону ТВ. Зачастую для съемки интерьера телевизор в гостиной убирают, заменяя его картиной. Но я предпочитаю показывать реалистичную версию жилого пространства. Для этого я сняла акцент с «черного прямоугольника» при помощи эффектной панели с тумбой, изготовленной по моему эскизу».



Фрагмент детской. Кровать и шкаф изготовлены на заказ по эскизам автора проекта. Ковер Kover.ru.
Фрагмент детской. Обои Harlequin. Письменный стол и кресло La Redoute. Декор Barcelona Design, Zara home. Зеркало Little Street.
nonehttps://www.instagram.com/ulikma/https://www.facebook.com/yulia.ykamaninahttps://www.jk-home.ru/
Фрагмент детской. Комод EllipseFurniture, ручки Zara Home. Подвесная полка Bo Concept. Декор Barcelona Design, Zara home. Зеркало Little Street.



Прихожая. Межкомнатные двери Sofia doors. Обои Nobilis. Напольная плитка Italon. Консоль Bragin Design. Картина Anyhome. Подвесные светильники Paulmann. Подсвечник Barcelona Design.
Фрагмент прихожей. Обои Nobilis. Консоль Bragin Design. Картина Anyhome. Подвесные светильники Paulmann. Подсвечник Barcelona Design.
Рабочее место на балконе. Письменный стол Lulu Store. Стул UNIKA M?BLAR. Подвесные модули Ikea. Настольный светильник Faro. Подушка Missoni, Happy Collection.
Санузел. Настенная плитка Venis Mirage, салон Zodiac. Напольная плитка Peronda. Подвесная тумба Jacob Delafon. Зекрало Gamadecor.
Ванная комната. Керамогранит Supergres. Мозаика L’antic colonial, салон Zodiac. Тумба под раковину со столешницей из кварца изготовлена на заказ по эскизам автора проекта. Сантехника Villeroy & Boch, Grohe.




Фрагмент гостиной. Панель для ТВ и подвесные тумбы изготовлены на заказ по эскизам автора проекта. Дизайнер Юлия Каманина оформила интерьер квартиры 93 кв. метра в cтоличном ЖК «Яуза Парк» на Преображенской площади. Заказчики, семейная пара с ребенком, обратились к дизайнеру сразу после получения ключей. Исходная планировка от застройщика предполагала два маленьких санузла, изолированную кухню и гостиную. Большим плюсом стало наличие двух балконов, один из которых был впоследствии оборудован под кабинет хозяина дома, а второй — как дополнительное игровое пространство для детей. Фрагмент гостиной. Подвесной светильник Kundalini. Приставные столики Zara Home. На стене работа Кристиана Эвана, галерея Carre d'artistes Площадь кухни и санузлов увеличили за счет коридоров, гостиную объединили с кухней и столовой — опен спейс зонировали двусторонним стеллажом. Также в квартире сформировали комнату родителей, детскую, две гардеробные, одна из которых примыкает к главной спальне, а вторая расположена в прихожей. Зона гостиной. Панель для ТВ и подвесные тумбы изготовлены на заказ по эскизам автора проекта. Плед Missoni, Happy Collection. Ковер Kover.ru. Декор Barcelona Design, Happy Collection, H

Цитирование статьи, картинки - фото скриншот - Rambler News Service.
Иллюстрация к статье - Яндекс. Картинки.
Есть вопросы. Напишите нам.
Общие правила  поведения на сайте.



«oz90.ru»