Технология укладки тротуарной плитки своими руками - «Ландшафтный дизайн» » «Дизайна интерьера»
  • Контакты Dizayn

Технология укладки тротуарной плитки своими руками - «Ландшафтный дизайн»

16-02-2019, 12:05   Серафим   Нашли ошибку?    Мы в Яндекс.Дзен




Технология укладки тротуарной плитки своими руками - «Ландшафтный дизайн»

Для многих людей, от владельцев частных домов, общественных заведений до государственных служащих, вопрос о том, как укладывать тротуарную плитку, достаточно актуален. Ведь используя искусственный кирпич можно облагородить двор, выложить дорожки, сделать удобные площадки возле зданий, замостить улицу или тротуар. Материал достаточно популярен, пользуется спросом. Благодаря большому выбору форм, расцветок, размеров, он позволяет создавать не только стандартную кладку, но даже выполнить 3D орнамент, выложить разные узоры, фигуры, другие элементы, отличающиеся от основного фона цветом.

Обустройство крупных объектов общественного назначения выполняют рабочие бригады со специальной техникой, а вот собственники своего небольшого придомового участка могут самостоятельно справиться с работой, не прибегая к помощи специалистов, сложным технологиям. Это позволит сэкономить семейный бюджет, приобрести полезный опыт. Главное – следовать инструкциям и указаниям, чтобы результат труда приносил эстетическое удовольствие, был предметом гордости.

Содержание

  • Особенности тротуарной плитки
    • Виды
    • Размеры
    • Форма
    • Материал изготовления
    • Цвет
  • Правила и схемы оформления
  • Как укладывать плитку
    • Необходимые материалы и инструменты
    • Разметка под укладку
    • Подготовка поверхности – защитный слой и устройство дренажа
    • Установка бордюра или поребрика
    • Подготовка основания под плитку
    • Укладка плитки
    • Затирка швов
  • Как ухаживать за тротуарной плиткой
  • Заключение

Особенности тротуарной плитки

Стройматериал хорошо зарекомендовал себя при благоустройстве территории, будь то подъезд к гаражу или стоянка автотранспорта, садовая или пешеходная дорожка, дополнение ландшафта дачного, загородного участка или общественного парка. Выкладывать плитку в разных областях стало возможным благодаря ее преимуществам перед альтернативными вариантами покрытия:


  • Она невосприимчива к температурным перепадам, что позволяет ее использовать в разных климатических зонах. В отличие от асфальта, стройматериал при нагревании не деформируется, не выделяет вредных веществ.
  • Поверхность устойчива к истиранию, а в уложенном состоянии кирпич достаточно прочен, выдерживает значительные нагрузки.
  • Характеризуется долгим сроком эксплуатации, который составляет 15-20 лет.
  • Отличается небольшим весом полотна, низкой стоимостью.
  • Ее легко монтировать, проводить ремонтные работы, в случае повреждения отдельных элементов, демонтировать при необходимости получения доступа к подземным коммуникациям.
  • Это экологически чистый продукт, в ее производстве применяется натуральное сырье.
  • Имеет привлекательный внешний вид, большое разнообразие форм, множество способов укладки.
  • На мощеной плоскости не скапливается вода, частично она уходит в землю через стыки между блоками, стекает в одну из сторон, благодаря небольшому уклону, отводится с помощью тротуарных водостоков.
  • Сложность заключается в том, что процесс монтажа медленный, так как выполняется вручную, а неправильно уложенные блоки будут выпадать.



В зависимости от нагрузки, оказываемой на поверхность полотна, выбирается толщина изделия. Для пешеходов достаточно 3-5 см, а для легковых автомобилей – 6-8 см, грузовых — 8-10 см.

Виды

Тротуарная плитка различается по многим характеристикам. Она может изготавливаться из разного сырья, отличаться формами, размерами, толщиной, расцветкой, способом производства. Если рассматривать компоненты, входящие в состав бетонной смеси, то можно выделить следующие виды:

  • Бетонная. Стандартное изделие, состоящее из смеси цемента, песка, воды.
  • Из натурального камня. Самая дорогая, производится из мрамора, фракций природного камня.
  • Клинкерная. Делают из обожженной глины.
  • Брусчатка. В ее состав входит гранитная крошка.
  • С резиновым наполнителем. Имеет мягкую поверхность, что позволяет ее укладывать на детских и спортивных площадках.
  • Полимерпесчаная. Вместо цемента применяют ПВД (полиэтилен высокого давления).
  • С трехмерным рисунком. С помощью пресс-форм на верхнюю грань наносится фотопечать, а также специальное защитное покрытие.
  • С армированием. Изготавливается только путем вибролитья. В состав добавлена плоская арматура или сетка из фибрина.








Производят готовый продукт тремя основными методами:

  • вибролитье;
  • вибропрессование;
  • гиперпрессование.

Размеры

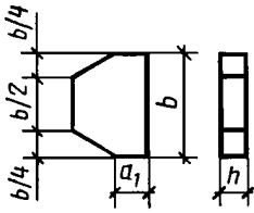
Производители выпускают большой ассортимент изделий, отличающихся по своим параметрам. Для каждой конкретной модели характерны свои размеры. На примере таблицы рассмотрим наиболее популярные виды тротуарной плитки в соответствии с ГОСТ 17608-91, имеющие свои характеристики высоты – h, длины – a, ширины – b.

НаименованиеЧертежДлинаШиринаВысота, h (мм)
а, мма1, ммb, ммДля пешеходовС возможностью заезда легкового транспортаС возможностью заезда грузовых автомобилей

Квадрат



200200506080
250250100
280280
300300
37537570
400400
500500
7507506080
1000100080100

Прямоугольник



2401207070100
3752505060
70
500250
500375
75037560
750500
100010008080

Шестиугольник



2504325060100
37564870
5008656080

Пятиугольные доборные



1251254325060100
18737564870
2502508656080

Четырехугольные доборные



2165005060100
32475070
43310006080

В таблице приведена часть основных стандартов. Также существуют различные фигурные, декоративные модели. Каждый отдельный изготовитель выпускает свою продукцию по собственным разработкам, поэтому параметры изделий часто не соответствуют общим нормам.

Форма

Вариантов тротуарной плитки, отличающихся по фактуре, взаимному расположению границ, большое количество. Их форма в большинстве случаев зависит от материала, используемого при изготовлении конечного продукта:


  1. Природный камень тяжело обрабатывать, поэтому гранитная брусчатка ограничена в формах. По способу обработки сырья можно выделить: пиленую брусчатку – вырезается по образу квадрата или прямоугольника с ровными поверхностями; колотую – образуется в результате разлома единого куска гранитного камня на небольшие части, имеет неровную фактуру; пилено-колотую – форма образуется путем распила, поэтому ее удобно укладывать, а верхняя грань отличается рельефом.
  2. Клинкерная плитка имеет небольшой выбор форм, в основном прямоугольные варианты, ее стоимость в разы дороже бетонных аналогов, цветовая палитра ограничена диапазоном красных и желтых оттенков, используется крайне редко.
  3. Стандартные цементные изделия представлены широким модельным рядом, отличаются как внешне, так и по размеру. Многие виды имеют названия, которые соответствуют определенным параметрам.








Рассмотрим некоторые варианты:


  • Классическая. Представлена квадратом, имеет большой выбор расцветок внешней поверхности.
  • Кирпичик. Внешне похожа на кирпич, но меньшего размера, позволяет создавать различные комбинации укладки.
  • Булыжник. Камень, полученный искусственным путем, имитирующий природный.
  • Соты. Плитка в виде шестиугольника.
  • Паркет. Квадратная брусчатка с паркетным рисунком на нескольких планках.
  • Касо. Характеризуется наличием готического орнамента.
  • Волна. Имеет изогнутые боковые линии, что способствует лучшему сцеплению.
  • Клевер. Ромб с закругленными сторонами.
  • Паутинка. Имеет узор, имитирующий паутину.
  • Катушка. Напоминает стандартную катушку, с выступами на концах.
  • Галтованная. Характеризуется закругленными гранями.
  • Чешуя. Внешне похожа на чешуйку рыб.
  • Тучка. Квадратные изделия с декоративным оформлением поверхности наподобие облаков.
  • Цветок. Квадрат с изображением ромашки.
  • Бордюр. Ограждает границы площадки, тропинки, придает законченный вид уложенному полотну.
  • Слив. Специальный элемент, предназначенный для отвода воды.








Материал изготовления

Внешнее оформление, размеры, порядок расположения границ – важные характеристики этого предмета. Но долговечность, технические свойства изделия зависят от сырья, из которого произведена тротуарная плитка. Разберем более подробно виды применяемых в производстве материалов:

  1. Натуральный камень. Для работы используют гранит, мрамор базальт. Характеризуется долговечностью, износостойкостью, невосприимчивостью к влаге, температурным перепадам. Единственными недостатками являются высокая стоимость, сложность обработки природного материала.
  2. Цветные бетонные смеси. Состоят из цемента марки не ниже М400 и песка. Для повышения характеристик, таких как прочность, морозоустойчивость, гигроскопичность, в состав добавляются специальные примеси и присадки в виде щебня, керамзита, фиброволокна, специальных добавок, пластификаторов.
  3. Клинкер. Изделие получается путем обжига при высокой температуре сланцевых тугоплавких глин. Используется для мощения дорог, промышленных полов. Отличается малым выбором расцветок, стоимостью, в 5 раз превышающей бетонные аналоги.
  4. Полимерно-песчаные. На 75% состоят из просеянного кварцевого песка, остальную часть составляют полимеры – полистирол, полипропилен. Готовое изделие способно выдержать температурные перепады от – 70 до + 100 °С. Пластичность сырья предотвращает образование микротрещин, приводящих к разрушению брусчатки.








Цвет

Строительный рынок предлагает большой выбор разных расцветок брусчатки, что позволяет решить любые дизайнерские задачи. Однако в зависимости от используемых в производстве красителей, обуславливается стойкость к выцветанию. Лучшими являются натуральные пигменты, такие как сажа, придающая плитке черный цвет, смесь окисей железа – красную окраску.

Желтый и его оттенки также считаются довольно устойчивыми, однако из-за постоянного оседания пыли поверхность приобретает серый цвет. Хуже всего переносят природные факторы синие и зеленые красители, до приобретения материалом серого оттенка может пройти менее двух лет.

Отдельно стоит отметить натуральный камень и клинкер. Они ограничены в расцветке, но со временем она не меняется. Бетонные кирпичи окрашиваются в процессе производства двумя способами:

  • Поверхностный. Используются алкидные, полиуретановые красители. Окрашивание производится на уложенном тротуаре или поверх готовых изделий. Позволяет изменить окраску готового покрытия, увеличить прочность, износостойкость.
  • Проникающий. Пигмент добавляется непосредственно в раствор. Используются натуральные и искусственные красители.








Лучше использовать натуральные красящие элементы. Такие вещества не теряют цвет, не выгорают под воздействием солнечных лучей, оказывают меньше негативного влияния на свойства готового продукта.

Правила и схемы оформления

Схема укладки готового изделия зависит от конкретного вида брусчатки, ее расцветки, наличия рисунка, рельефа, размера. От способа установки зависит внешний вид покрытия. Также дизайн полотна должен сочетаться с ландшафтом. Рассмотрим наиболее популярные образцы кладки:

  • Линейная. Также этот способ называется классическим, ложок, кирпичная связка. Стандартный вид кладки с незамысловатым изображением. Мощение можно выполнить двумя способами: без сдвига; со смещением. Первый вариант используется крайне редко, так как снижает несущие характеристики полотна. Второй метод самый распространенный. Главное условие при укладке – стыки не должны совпадать, по принципу строительства обычной кирпичной стены. Смещение может быть половинное и в три четверти, а также играя цветами можно получить диагональную и гусеничную схему.
  • Линейно-угловая. Увеличивается несущая способность поверхности, поэтому этот метод хорошо использовать в местах с повышенной нагрузкой. В зависимости от расположения элементов можно выделить две основные схемы: елочка и плетенка. В первом случае прямоугольные кирпичи надо стелить рядами под углом 45°, при этом каждый последующий элемент, расположенный на одной кривой, тычком соприкасается с половиной ложка предыдущего. Во втором варианте способ мощения не отличается от предыдущего, только плитка располагается под прямым углом в 90°.
  • Блочная. Кирпичная кладка выполняется блоками. Можно укладывать модули из двух элементов, чередуя их горизонтальное и вертикальное расположение, а также укладывать пары через один перпендикулярный кирпич. В первом случае при использовании только двух цветов получается шахматка.
  • Случайная раскладка. Отличный выбор, используется плитка «Старый город», «Кирпичик», «Классика Русто», плитняк. Элементы кладут в произвольном порядке, что позволяет создать оригинальный, неповторимый рисунок.
  • Спиральная, круговая. Одна из самых сложных. Компоненты располагают в форме круга или квадрата.
  • Художественная. Благодаря разной расцветке, совмещению разных способов, детально разработанной схеме, можно выложить красивые рисунки, орнаменты, геометрические фигуры.



Как укладывать плитку

Не зная с чего начать, работа может казаться сложной, хлопотной. Но если разобраться во всех тонкостях, ее вполне можно выполнить своими руками, не прибегая к помощи специалистов. Процесс начинается с составления чертежа, подготовки материалов, инструментов, далее выполняются действия по обустройству основания, засыпке подушки, установке поребрика, монтаж верхнего полотна, затирка швов. Рассмотрим детально каждый этап.



Необходимые материалы и инструменты

Очень важно до начала проведения работ подготовить все необходимое для ее выполнения. Эти действия впоследствии сэкономят время, не придется отвлекаться на поиск недостающих элементов. Также при покупке плитки рекомендуется предусмотреть ее запас, так как она может сломаться при перемещении, во время укладки, при ее усадке с помощью резинового молотка. Чтобы ничего не упустить, следует ознакомиться с материалами и инструментами, применяемыми для осуществления трудовой деятельности:

  • песок, щебень, цемент;
  • геотекстиль;
  • тротуарная плитка, бордюрные элементы, сливы;
  • бетономешалка или старая ванна, для замешивания раствора;
  • болгарка;
  • диск с напылением для порезки бетона;
  • тачка;
  • электрическая, ручная трамбовка;








  • лопата штыковая и совковая;
  • мастерок, длинное и короткое правило;
  • ведро, веник;
  • уровень, рулетка;
  • грабли для выравнивания сыпучего сырья;
  • молоток обычный и резиновый;
  • крепкая нить;
  • круглые трубы, специальный профиль для маяков;
  • металлические колышки.

Разметка под укладку

Работы по обустройству территории начинаются с составления четкого проекта. Конечно, если рассматривается исключительно одна небольшая дачная, садовая дорожка, то все можно просчитать в уме, но при мощении больших площадей без схемы не обойтись.

Составив план, можно приступать к разметке территории. Для этого потребуется строительный уровень, рулетка, прочная нить, металлические колышки или куски арматуры. Сначала проводятся измерения. Их необходимо начинать от угла сооружения, с которым будет соприкасаться полотно. Если такового нет, то по вершинам рассматриваемой площадки вбиваются колья.



Выполнив предварительную разметку, необходимо сделать дополнительные замеры, чтобы установить вспомогательные колышки на расстоянии 1,5 – 2 м, что поможет в дальнейшем правильно располагать ряды, выравнивать швы, класть детали. Между металлическими кольями по уровню натягивается нить, при этом следует предусмотреть небольшой уклон в одну из сторон, где будут располагаться стоки для воды. Не стоит упускать из вида часть плоскости, занимаемую бордюрами.

Подготовка поверхности – защитный слой и устройство дренажа

После разметки площадки необходимо подготовить основание. Для этого убирается верхняя часть грунта. В зависимости от слоя подушки глубина котлована может составлять 40-50 см. Далее поверхность углубления очищается от корней, выравнивается, земля уплотняется ручной трамбовкой. Сверху покрывается геотканью, предотвращающей прорастание ненужной растительности.

Очень важно обдумать и оборудовать устройство дренажа. На глинистом грунте, где подземные воды расположены неглубоко, на этапе земляных работ формируется уклон, устанавливаются дренажные трубы. Если почва состоит из песчаника, быстро впитывает влагу, то достаточно выполнить уклон полотна в одну из сторон, а также предусмотреть наличие водоотводов, сливов.








После выполнения подготовительных работ начинают формировать первый дренажный слой пирога. Для этого засыпается 10 – 30 см мелкофракционного щебня или отсева, он выравнивается граблями, утрамбовывается.

Установка бордюра или поребрика

Поребрик не только придает площадке красивый вид, ограждает ее, но и фиксирует плитку, не позволяет ей расползаться по сторонам. Он устанавливается вдоль дорожки в саду, по периметру плоскости, расположенной возле дома, общественных заведений. Правильная фиксация бордюра – один из сложных этапов, он требует предельной точности и внимания. Блоки должны возвышаться над плиткой на половину своей высоты 10-15 см.

Закрепляются бордюры на бетонной подушке до нанесения песчаного слоя, при помощи цементного раствора. Их высота определяется натянутой нитью, а ровность – уровнем. При необходимости их можно приподнять, усадить с помощью резинового молотка. Есть также разновидности ограждений, которые не видны. Такие варианты устанавливаются вместе с брусчаткой на цементно-песчаную подушку, крепятся при помощи металлических колышков, отрезков арматуры.



Подготовка основания под плитку

Поверх гравия или щебня укладывается слой песка, он разравнивается граблями, заливается водой, утрамбовывается при помощи электрической или ручной трамбовки. После уплотнения его толщина должна составлять 5-10 см.

Далее насыпается цементно-песчаная смесь, полученная путем перемешивания одной части цемента с шестью частями карьерного песка. Иногда плитку укладывают непосредственно на утрамбованный песок. Смесь также увлажняется и трамбуется, выравнивается по маякам с помощью правила. Толщина слоя должна составлять 2-4 см.

Для больших нагрузок схема немного отличается. Сначала на уплотненный грунт насыпается слой песка 10-15 см, далее щебень или гравий – 10-15 см, а сверху заливается армированное бетонное перекрытие толщиной 10-12 см, на которое уже устанавливаются бордюры, укладываются маяки, засыпается цементно-песчаный раствор толщиной 2-4 см, выравнивается правилом.








Укладка плитки

На песок, как и на смесь его с цементом, кирпич укладывается одинаково. Кладку необходимо начинать от стены дома или от установленного бордюра, что удобнее, потому что он выставлен по разметке. Первый ряд укладывается по ровной определенной линии. В случае укладки фигурных изделий обрезки, которые должны заполнить промежутки между плиткой и стеной или поребриком, устанавливаются в самый последний момент, после завершения основных монтажных работ.

Плитка может отличаться по толщине, поэтому под некоторые элементы придется подсыпать смесь, а другие усаживать резиновым молотком. Но вся брусчатка должна плотно прижиматься к поверхности. Также при укладке кирпича необходимо соблюдать зазор между отдельными деталями. В зависимости от выбранной схемы, вида брусчатки укладываются последующие ряды.

Если на пути кладки встречаются препятствия в виде нужных инженерных коммуникаций, труб, деревьев, то вокруг них могут устанавливаться бордюры, или кирпич будет подходить вплотную. Но подрезы также монтируются в последнюю очередь. Выложив определенную часть, смотрят на ровность швов, при необходимости их подравнивают, после посыпают сухой цементно-песчаной смесью и прометают так, чтобы она заполнила промежутки между кирпичиками. После окончания основных работ приступают к оставшимся пустотам между стеной и полотном. Для этого от плитки отрезают вымеренные кусочки.








Затирка швов

Заделать плиточные швы можно несколькими способами. Это необходимая процедура для обеспечения мощению устойчивости и долговечности. Один из вариантов – цементно-песочная смесь. После тщательного вымешивания сухих компонентов ее высыпают на поверхность и распределяют вдоль швов при помощи щетки или мягкой метлы. Разравнивание продолжают, пока материал не заполнит щель под верх. Остатки убирают и обдают плитку водой из шланга.

Также для затирки швов можно использовать цементный раствор. Его разливают по направлению швов и ровняют резиновым шпателем. Сразу после заполнения всех выемок, пока раствор не начал затвердевать, его остатки убирают при помощи тряпки. Спустя пару дней, если цемент даст усадку, процедуру необходимо повторить.








Как ухаживать за тротуарной плиткой

Тротуарная плитка неприхотливый материал, но требует специального ухода с определенной периодичностью. Только при правильной очистке она прослужит десятилетиями. Специальные средства надо выбирать в зависимости о времени года и способа использования.

В летний период самой большой проблемой является пыль и мусор. Справиться с ней можно путем простого выметания. Серьезные загрязнения удаляют струей воды. Плитку в местах повышенной влажности, к примеру, у бассейна, фонтана, необходимо покрывать водоотталкивающими веществами. Выполнять очистку плитки следует при малейшем загрязнении, особенно если это маслянистые пятна от машины, сажа, засохший цемент.

Главный враг уличной плитки зимой – лед и снег. Грубые механические воздействия, такие как скалывание ломом, в этом случае не подойдут. Лучше растопить прочную корку теплой водой или использовать специальные химические средства. Снегоуборочный совок должен быть пластиковым или деревянным. Уберечь покрытие от проникновения влаги можно с помощью гидроизолирующих растворов. Наносить их необходимо сразу после укладки.








Заключение

Тротуарная плитка – один из лучших материалов для обустройства поверхностей. Своими руками можно легко выполнить работы по укладке дорожек и площадок на даче, усадьбе, в саду, сделать заезд для автомобиля, парковку. Благодаря большому выбору стройматериалов, форм, размеров, расцветок, способов укладки, с помощью брусчатки можно решить любые дизайнерские задачи по оформлению ландшафта.


Цитирование статьи, картинки - фото скриншот - Rambler News Service.
Иллюстрация к статье - Яндекс. Картинки.
Есть вопросы. Напишите нам.
Общие правила  поведения на сайте.

Для многих людей, от владельцев частных домов, общественных заведений до государственных служащих, вопрос о том, как укладывать тротуарную плитку, достаточно актуален. Ведь используя искусственный кирпич можно облагородить двор, выложить дорожки, сделать удобные площадки возле зданий, замостить улицу или тротуар. Материал достаточно популярен, пользуется спросом. Благодаря большому выбору форм, расцветок, размеров, он позволяет создавать не только стандартную кладку, но даже выполнить 3D орнамент, выложить разные узоры, фигуры, другие элементы, отличающиеся от основного фона цветом. Обустройство крупных объектов общественного назначения выполняют рабочие бригады со специальной техникой, а вот собственники своего небольшого придомового участка могут самостоятельно справиться с работой, не прибегая к помощи специалистов, сложным технологиям. Это позволит сэкономить семейный бюджет, приобрести полезный опыт. Главное – следовать инструкциям и указаниям, чтобы результат труда приносил эстетическое удовольствие, был предметом гордости. Содержание Особенности тротуарной плитки Виды Размеры Форма Материал изготовления Цвет Правила и схемы оформления Как укладывать плитку Необходимые материалы и инструменты Разметка под укладку Подготовка поверхности – защитный слой и устройство дренажа Установка бордюра или поребрика Подготовка основания под плитку Укладка плитки Затирка швов Как ухаживать за тротуарной плиткой Заключение Особенности тротуарной плитки Стройматериал хорошо зарекомендовал себя при благоустройстве территории, будь то подъезд к гаражу или стоянка автотранспорта, садовая или пешеходная дорожка, дополнение ландшафта дачного, загородного участка или общественного парка. Выкладывать плитку в разных областях стало возможным благодаря ее преимуществам перед альтернативными вариантами покрытия: Она невосприимчива к температурным перепадам, что позволяет ее использовать в разных климатических зонах. В отличие от асфальта, стройматериал при нагревании не деформируется, не выделяет вредных веществ. Поверхность устойчива к истиранию, а в уложенном состоянии кирпич достаточно прочен, выдерживает значительные нагрузки. Характеризуется долгим сроком эксплуатации, который составляет 15-20 лет. Отличается небольшим весом полотна, низкой стоимостью. Ее легко монтировать, проводить ремонтные работы, в случае повреждения отдельных элементов, демонтировать при необходимости получения доступа к подземным коммуникациям. Это экологически чистый продукт, в ее производстве применяется натуральное сырье. Имеет привлекательный внешний вид, большое разнообразие форм, множество способов укладки. На мощеной плоскости не скапливается вода, частично она уходит в землю через стыки между блоками, стекает в одну из сторон, благодаря небольшому уклону, отводится с помощью тротуарных водостоков. Сложность заключается в том, что процесс монтажа медленный, так как выполняется вручную, а неправильно уложенные блоки будут выпадать. В зависимости от нагрузки, оказываемой на поверхность полотна, выбирается толщина изделия. Для пешеходов достаточно 3-5 см, а для легковых автомобилей – 6-8 см, грузовых — 8-10 см. Виды Тротуарная плитка различается по многим характеристикам. Она может изготавливаться из разного сырья, отличаться формами, размерами, толщиной, расцветкой, способом производства. Если рассматривать компоненты, входящие в состав бетонной смеси, то можно выделить следующие виды: Бетонная. Стандартное изделие, состоящее из смеси цемента, песка, воды. Из натурального камня. Самая дорогая, производится из мрамора, фракций природного камня. Клинкерная. Делают из обожженной глины. Брусчатка. В ее состав входит гранитная крошка. С резиновым наполнителем. Имеет мягкую поверхность, что позволяет ее укладывать на детских и спортивных площадках. Полимерпесчаная. Вместо цемента применяют ПВД (полиэтилен высокого давления). С трехмерным рисунком. С помощью пресс-форм на верхнюю грань наносится фотопечать, а также специальное защитное покрытие. С армированием. Изготавливается только путем вибролитья. В состав добавлена плоская арматура или сетка из фибрина. Производят готовый продукт тремя основными методами: вибролитье; вибропрессование; гиперпрессование. Размеры Производители выпускают большой ассортимент изделий, отличающихся по своим параметрам. Для каждой конкретной модели характерны свои размеры. На примере таблицы рассмотрим наиболее популярные виды тротуарной плитки в соответствии с ГОСТ 17608-91, имеющие свои характеристики высоты – h, длины – a, ширины – b. Наименование Чертеж Длина Ширина Высота, h (мм) а, мм а1, мм b, мм Для пешеходов С возможностью заезда легкового транспорта С возможностью заезда грузовых автомобилей Квадрат 200 — 200 50 60 80 250 250 100 280 280 300 300 375 375 70 400 400 500 500 750 750 60 80 1000 1000 80 100 Прямоугольник 240 — 120 70 70 100 375 250 50 60 70 500 250 500 375 750 375 60 750 500 1000 1000 80 80 Шестиугольник 250 — 432 50 60 100 375 648 70 500 865 60 80 Пятиугольные доборные 125 125 432 50 60 100 187 375 648 70 250 250 865 60 80 Четырехугольные доборные — 216 500 50 60 100 324 750 70 433 1000 60 80 В таблице приведена часть основных стандартов. Также существуют различные фигурные, декоративные модели. Каждый отдельный изготовитель выпускает свою продукцию по собственным разработкам, поэтому параметры изделий часто не соответствуют общим нормам. Форма Вариантов тротуарной плитки, отличающихся по фактуре, взаимному расположению границ, большое количество. Их форма в большинстве случаев зависит от материала, используемого при изготовлении конечного продукта: Природный камень тяжело обрабатывать, поэтому гранитная брусчатка ограничена в формах. По способу обработки сырья можно выделить: пиленую брусчатку – вырезается по образу квадрата или прямоугольника с ровными поверхностями; колотую – образуется в результате разлома единого куска гранитного камня на небольшие части, имеет неровную фактуру; пилено-колотую – форма образуется путем распила, поэтому ее удобно укладывать, а верхняя грань отличается рельефом. Клинкерная плитка имеет небольшой выбор форм, в основном прямоугольные варианты, ее стоимость в разы дороже бетонных аналогов, цветовая палитра ограничена диапазоном красных и желтых оттенков, используется крайне редко. Стандартные цементные изделия представлены широким модельным рядом, отличаются как внешне, так и по размеру. Многие виды имеют названия, которые соответствуют определенным параметрам. Рассмотрим некоторые варианты: Классическая. Представлена квадратом, имеет большой выбор расцветок внешней поверхности. Кирпичик. Внешне похожа на кирпич, но меньшего размера, позволяет создавать различные комбинации укладки. Булыжник. Камень, полученный искусственным путем, имитирующий природный. Соты. Плитка в виде шестиугольника. Паркет. Квадратная брусчатка с паркетным рисунком на нескольких планках. Касо. Характеризуется наличием готического орнамента. Волна. Имеет изогнутые боковые линии, что способствует лучшему сцеплению. Клевер. Ромб с закругленными сторонами. Паутинка. Имеет узор, имитирующий паутину. Катушка. Напоминает стандартную катушку, с выступами на концах. Галтованная. Характеризуется закругленными гранями. Чешуя. Внешне похожа на чешуйку рыб. Тучка. Квадратные изделия с декоративным оформлением поверхности наподобие облаков. Цветок. Квадрат с изображением ромашки. Бордюр. Ограждает границы площадки, тропинки, придает законченный вид уложенному полотну. Слив. Специальный элемент, предназначенный для отвода воды. Материал изготовления Внешнее оформление, размеры, порядок расположения границ – важные характеристики этого предмета. Но долговечность, технические свойства изделия зависят от сырья, из которого произведена тротуарная плитка. Разберем более подробно виды применяемых в производстве материалов: Натуральный камень. Для работы используют гранит, мрамор базальт. Характеризуется долговечностью, износостойкостью, невосприимчивостью к влаге, температурным перепадам. Единственными недостатками являются высокая стоимость, сложность обработки природного материала. Цветные бетонные смеси. Состоят из цемента марки не ниже М400 и песка. Для повышения характеристик, таких как прочность, морозоустойчивость, гигроскопичность, в состав добавляются специальные примеси и присадки в виде щебня, керамзита, фиброволокна, специальных добавок, пластификаторов. Клинкер. Изделие получается путем обжига при высокой температуре сланцевых тугоплавких глин. Используется для мощения дорог, промышленных полов. Отличается малым выбором расцветок, стоимостью, в 5 раз превышающей бетонные аналоги. Полимерно-песчаные. На 75% состоят из просеянного кварцевого песка, остальную часть составляют полимеры – полистирол, полипропилен. Готовое изделие способно выдержать температурные перепады от – 70 до 100 °С. Пластичность сырья предотвращает образование микротрещин, приводящих к разрушению брусчатки. Цвет Строительный рынок предлагает большой выбор разных расцветок брусчатки, что позволяет решить любые дизайнерские задачи. Однако в зависимости от используемых в производстве красителей, обуславливается стойкость к выцветанию. Лучшими являются натуральные пигменты, такие как сажа, придающая плитке черный цвет, смесь окисей железа – красную окраску. Желтый и его оттенки также считаются довольно устойчивыми, однако из-за постоянного оседания пыли поверхность приобретает серый цвет. Хуже всего переносят природные факторы синие и зеленые красители, до приобретения материалом серого оттенка может пройти менее двух лет. Отдельно стоит отметить натуральный камень и клинкер. Они ограничены в расцветке, но со временем она не меняется. Бетонные кирпичи окрашиваются в процессе производства двумя способами: Поверхностный. Используются алкидные, полиуретановые красители. Окрашивание производится на уложенном тротуаре или поверх готовых изделий. Позволяет изменить окраску готового покрытия, увеличить прочность, износостойкость. Проникающий. Пигмент добавляется непосредственно в раствор. Используются натуральные и искусственные красители.


«oz90.ru»