Втиснуться между высотками, или Как японские архитекторы строят узкие дома - Архитектура и интерьер » «Дизайна интерьера»
  • Контакты Dizayn

Втиснуться между высотками, или Как японские архитекторы строят узкие дома - Архитектура и интерьер

26-10-2019, 16:10   Владимир   Нашли ошибку?    Мы в Яндекс.Дзен


Втиснуться между высотками, или Как японские архитекторы строят узкие дома - Архитектура и интерьер



Учитывая катастрофическую нехватку земли в мегаполисах, японские архитекторы до такой степени научились изловчаться, что проектируют дома в любых условиях. На этот раз им достался узкий участок неправильной формы, окруженный высотными домами с окнами на торцах зданий, причем «втискивать» пришлось не только жилое помещением, но и офис, в котором владелец планировал открыть свое дело.

Втиснуться между высотками, японским архитекторам удалось построить дом-офис в узком пролете. | Фото: architecturephoto.net.

В эпоху урбанизации все мегаполисы испытывают острую нехватку земли, не стал исключением и японский город Осака, в котором уже заполнены даже суперузкие пролеты между домами. Местные архитектурные бюро давно уже научились проектировать сооружения на непригодных для строительства участках. На этот раз специалистам компании Mountain House Architects поступил заказ на создание жилого дома с офисом в придачу.

Понадобилось полтора года, чтобы разработать проект дома и дизайн его интерьера. | Фото: googleusercontent.com.

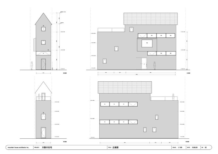
Как стало известно редакции Novate.Ru, строительство было запланировано на участке неправильной формы между высотками размером 4,2 на 18 метров. Несмотря на то, что пролет имел достаточно приличную по японским меркам ширину, возникла сложность в том, чтобы оставить место для поступления света в квартиры расположенные по обе стороны возводимого здания, да и в новом доме также требовалось организовать естественное освещение.


Часть первого этажа была адаптирована под открытие дизайнерской студии. | Фото: googleusercontent.com.

Несмотря на некоторые сложности проектировки, разработчикам все же было где разгуляться. Для того чтобы разграничить офисное и жилое пространство сделали два входа. С торца здания оформили дверь с крыльцом для дизайнерской студии, а со стороны тротуара – вход в жилые апартаменты.

Удалось выделить небольшое пространство под установку оргтехники и хранение. | Фото: newatlas.com.

Благодаря тому, что высота здания позволяла, организовали 3 этажа, поэтому общее пространство получилось довольно приличное – 97 квадратов. Чтобы лестничные пролеты не «съедали» полезную площадь, их расположили в центре сооружения и уже вокруг него организовывали все необходимые зоны.
Поскольку студия графического дизайна заняла часть территории на первом этаже, то на оставшейся части удалось оформить лишь небольшую гостиную, полноценную ванную комнату и гостевую.

На втором этаже удалось оформить компактную кухню, объединенную со столовой и гостиной. | Фото: designboom.com

Второй этаж полностью отдан под жилые апартаменты, здесь расположены основные зоны: гостиная, столовая, компактная кухня, санузел и спальня. На третьем этаже, который считается мансардой, оформили еще одну спальню и большую террасу.


На мансарде подготовили место под уютную спальню. | Фото: newatlas.com.

Интересно: Мансарда – это чердачное помещение, образованное скатами кровли, имеющее наклонные стены разной высоты. Происхождение же самого слова «мансарда» связывают со знаменитым французским архитектором Франсуа Мансаром, который превратил чердак своего дома в гостевую комнату. Эта идея настолько понравилась окружающим, что стала очень популярной не только в Париже, но и быстро распространилась по всему миру.


Для оптимизации пространство многофункциональная деревянная лестница проходит по центру строения. | Фото: googleusercontent.com.

Декор как в офисе, так и в жилом помещении более чем скромен. Белые оштукатуренные стены гармонично сочетаются с массивом натурального дерева, из которого сделаны перегородки между комнатами, полы, потолки и системы хранения. Минимализм, переплетенный с лофтом, просматривается как в студии, так и в жилой резиденции.


Чтобы обеспечить приватность, окна расположили под самым потолком. | Фото: afasiaarchzine.com.

Архитекторам Mountain House Architects пришлось потрудиться, чтобы установить окна, ведь тесное соприкосновение трех домов усложнило задачу. Остекление они распределили в ключевых точках с учетом расположения соседских окон, чтобы можно было по максимуму увеличить свет внутри, не нарушая приватности как новоиспеченных владельцев, так и соседей.

Несмотря на то, что разработка дизайна как самой конструкции дома, так и его интерьера заняла полтора года, на само строительство вместе с отделочными работами понадобилось всего лишь 5 месяцев.


Главным украшением дома стало натуральное необработанное дерево. | Фото: designboom.com.

Из-за ограниченности площади земельного участка на улицах японских городов можно увидеть оригинальные дома, которые имеют непривычные очертания. И это немудрено, ведь для того, чтобы увеличить жилое пространство разработчики вынуждены создавать, по меньшей мере, странные конструкции. Так, например, чтобы жилье получилось более просторным одна из архитектурных студий Токио создала дом-башню, передняя часть которой оказалась более узкой, чем задняя.

Учитывая катастрофическую нехватку земли в мегаполисах, японские архитекторы до такой степени научились изловчаться, что проектируют дома в любых условиях. На этот раз им достался узкий участок неправильной формы, окруженный высотными домами с окнами на торцах зданий, причем «втискивать» пришлось не только жилое помещением, но и офис, в котором владелец планировал открыть свое дело. Втиснуться между высотками, японским архитекторам удалось построить дом-офис в узком пролете. | Фото: architecturephoto.net. В эпоху урбанизации все мегаполисы испытывают острую нехватку земли, не стал исключением и японский город Осака, в котором уже заполнены даже суперузкие пролеты между домами. Местные архитектурные бюро давно уже научились проектировать сооружения на непригодных для строительства участках. На этот раз специалистам компании Mountain House Architects поступил заказ на создание жилого дома с офисом в придачу. Понадобилось полтора года, чтобы разработать проект дома и дизайн его интерьера. | Фото: googleusercontent.com. Как стало известно редакции Novate.Ru, строительство было запланировано на участке неправильной формы между высотками размером 4,2 на 18 метров. Несмотря на то, что пролет имел достаточно приличную по японским меркам ширину, возникла сложность в том, чтобы оставить место для поступления света в квартиры расположенные по обе стороны возводимого здания, да и в новом доме также требовалось организовать естественное освещение. Часть первого этажа была адаптирована под открытие дизайнерской студии. | Фото: googleusercontent.com. Несмотря на некоторые сложности проектировки, разработчикам все же было где разгуляться. Для того чтобы разграничить офисное и жилое пространство сделали два входа. С торца здания оформили дверь с крыльцом для дизайнерской студии, а со стороны тротуара – вход в жилые апартаменты. Удалось выделить небольшое пространство под установку оргтехники и хранение. | Фото: newatlas.com. Благодаря тому, что высота здания позволяла, организовали 3 этажа, поэтому общее пространство получилось довольно приличное – 97 квадратов. Чтобы лестничные пролеты не «съедали» полезную площадь, их расположили в центре сооружения и уже вокруг него организовывали все необходимые зоны. Поскольку студия графического дизайна заняла часть территории на первом этаже, то на оставшейся части удалось оформить лишь небольшую гостиную, полноценную ванную комнату и гостевую. На втором этаже удалось оформить компактную кухню, объединенную со столовой и гостиной. | Фото: designboom.com Второй этаж полностью отдан под жилые апартаменты, здесь расположены основные зоны: гостиная, столовая, компактная кухня, санузел и спальня. На третьем этаже, который считается мансардой, оформили еще одну спальню и большую террасу. На мансарде подготовили место под уютную спальню. | Фото: newatlas.com. Интересно: Мансарда – это чердачное помещение, образованное скатами кровли, имеющее наклонные стены разной высоты. Происхождение же самого слова «мансарда» связывают со знаменитым французским архитектором Франсуа Мансаром, который превратил чердак своего дома в гостевую комнату. Эта идея настолько понравилась окружающим, что стала очень популярной не только в Париже, но и быстро распространилась по всему миру. Для оптимизации пространство многофункциональная деревянная лестница проходит по центру строения. | Фото: googleusercontent.com. Декор как в офисе, так и в жилом помещении более чем скромен. Белые оштукатуренные стены гармонично сочетаются с массивом натурального дерева, из которого сделаны перегородки между комнатами, полы, потолки и системы хранения. Минимализм, переплетенный с лофтом, просматривается как в студии, так и в жилой резиденции. Чтобы обеспечить приватность, окна расположили под самым потолком. | Фото: afasiaarchzine.com. Архитекторам Mountain House Architects пришлось потрудиться, чтобы установить окна, ведь тесное соприкосновение трех домов усложнило задачу. Остекление они распределили в ключевых точках с учетом расположения соседских окон, чтобы можно было по максимуму увеличить свет внутри, не нарушая приватности как новоиспеченных владельцев, так и соседей. Несмотря на то, что разработка дизайна как самой конструкции дома, так и его интерьера заняла полтора года, на само строительство вместе с отделочными работами понадобилось всего лишь 5 месяцев. Главным украшением дома стало натуральное необработанное дерево. | Фото: designboom.com. Из-за ограниченности площади земельного участка на улицах японских городов можно увидеть оригинальные дома, которые имеют непривычные очертания. И это немудрено, ведь для того, чтобы увеличить жилое пространство разработчики вынуждены создавать, по меньшей мере, странные конструкции. Так, например, чтобы жилье получилось более просторным одна из архитектурных студий Токио создала дом-башню, передняя часть которой оказалась более узкой, чем задняя.

Цитирование статьи, картинки - фото скриншот - Rambler News Service.
Иллюстрация к статье - Яндекс. Картинки.
Есть вопросы. Напишите нам.
Общие правила  поведения на сайте.



«oz90.ru»