Заброшенный склад превратили в комфортную квартиру с неординарным интерьером - Архитектура и интерьер » «Дизайна интерьера»
  • Контакты Dizayn

Заброшенный склад превратили в комфортную квартиру с неординарным интерьером - Архитектура и интерьер

24-11-2019, 16:00   Виталий   Нашли ошибку?    Мы в Яндекс.Дзен


Заброшенный склад превратили в комфортную квартиру с неординарным интерьером - Архитектура и интерьер



Решение жилищного вопроса толкает некоторых людей на неординарные эксперименты, особенно если такая недвижимость находится в крупных городах. Став «счастливым» обладателем заброшенной квартиры площадью всего лишь 36 м?, служившей многие годы складом, девушке пришлось полностью переосмысливать интерьер, чтобы превратить помещение в комфортабельное жилье с удивительным сочетанием прошлого и современного оформления.


Карин Мац превратила заброшенный склад в комфортную квартиру с неординарным интерьером (Стокгольм, Швеция). | Фото: johbatesstudio.com/ karinmatz.se.

В таком городе, как Стокгольм (Швеция), с огромной нехваткой жилья и ценой за 1 кв. метр приобрести недвижимость за небольшие деньги практически нереально. Если, конечно же, это не заброшенное помещение в плачевном состоянии. Так повезло молодой девушке-дизайнеру, которая решилась на столь рискованный эксперимент, но все неурядицы перевесила цена, объявленная на аукционе.

Так выглядела квартира-склад во время аукциона (Стокгольм, Швеция). | Фото: karinmatz.se.

Эта квартира много лет служила складом, а последние 20 лет и вовсе стояла заброшена. Судя по всему предыдущий владелец пытался сделать ремонт в 1980-х гг, но по какой-то причине он не состоялся, поэтому в помещении обои были наполовину сняты, на рабочей стене кухни осталось лишь несколько плиток и торчащий кран.

Неприглядный вид полностью «убитой» квартиры не испугал девушку. | Фото: plataformaarquitectura.cl.

В квартире не было даже электричества, да и коммуникации пришли в негодность, но это и понятно, ведь последние десятилетия здесь хозяйничали только крысы.


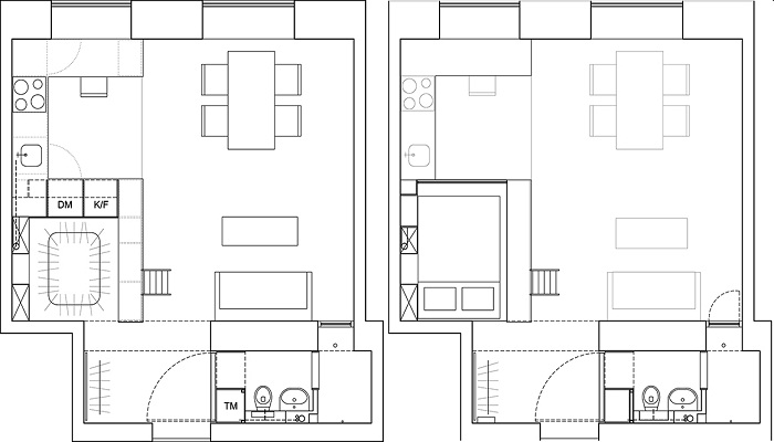
Для начала Карин Мац составила план-чертеж квартиры (Стокгольм, Швеция). | Фото: karinmatz.se.

Учитывая тот факт, что новой владелицей стала Карин Мац (Karin Matz), довольно креативный дизайнер и архитектор, ей не составило труда сделать новый план-чертеж со всеми изменениями, которые захотелось внедрить в свое крошечное жилище.

Квартиру девушка условно разделила на две зоны. | Фото: karinmatz.se.

Несмотря на то, что пространство было довольно ограничено, общая площадь квартиры составляла всего лишь 36 м? девушке хотелось оставить как можно больше свободного пространства, но при этом иметь комфортабельное жилье. Как оказалось, это возможно сделать, если максимально рационально использовать каждый сантиметр площади. Чтобы осуществить свою задумку в создании неординарного жилья, ей пришлось условно разделить квартиру на две части.

Зона кухни до и после ремонта. | Фото: treehugger.com.

В одной половине был сделан идеальный ремонт с проведением скрытых электрокоммуникаций, выравниванием стен, покраской оконной рамы, установкой оригинальных светильников и укладкой ламината. Девушка оставила лишь трубы и рабочий фартук в том виде, какой он был на протяжении последних 20 лет. Почему Карин так поступила, станет ясно тогда, когда узнаете, как она решила оформить вторую часть пространства.

С помощью модульных систем из Ikea удалось создать кухню, спальню и гардеробную. | Фото: plataformaarquitectura.cl.

Учитывая, что в этой зоне Карин планировала обустроить полноценную кухню, спальню и гардеробную, ей пришлось приобрести мебельные модули от Ikea, из которых собрали кухонный гарнитур.

Спальню удалось оформить на втором ярусе, что значительно увеличило свободное пространство в крошечной квартире. | Фото: contemporist.com.

А вот спальное место удалось поднять на довольно высокий подиум, взгромоздив деревянную плиту перекрытия прямо на конструкцию из подобных модулей. Под спальным местом получилось обустроить самую настоящую гардеробную. Для удобства пользования рейлингами, на которых висят вещи, была выбрана вешалка с карусельной системой крепления.

Под спальным местом удалось обустроить гардеробную. | Фото: plataformaarquitectura.cl.

Чтобы запахи и пар из кухни не попадали на постель, была сделана стеклянная перегородка, которая ограждала спальное место и в тоже время не препятствовала проникновению дневного света на второй ярус. Эту часть квартиру Карин решила оформить в белых тонах, чтобы хотя бы визуально расширить ее границы.

При желании зону кухни, спальни и гардеробную можно спрятать за рулонными шторами. | Фото: karinmatz.se.

В целом эта часть квартиры оформлена скандинавском стиле, как и мечтала девушка. Для того чтобы «спрятать» эту зону во время дружеских вечеринок или посещения гостей новоиспеченная владелица установила рулонные шторы, которые можно опустить в любой момент.

В другой половине квартиры интерьер остался в том состоянии, в котором пребывал последние 20 лет. | Фото: plataformaarquitectura.cl.

А вот вторую часть квартиры креативный дизайнер захотела оставить в ...неизменном виде! Естественно, все было вычищено и вымыто, поменяна рассохшаяся оконная рама, пол очищен от старой краски и окрашен бесцветным средством, которое сохраняет цвет древесины и предохраняет от негативного влияния воды и насекомых.


Разительный контраст архитектурных стилей. | Фото: plataformaarquitectura.cl.

Совет от авторов Novate.Ru: Если хотите сохранить цвет дерева неизменным, для покрытия древесины лучше использовать бесцветный водно-дисперсионный лак на акриловой основе. Перед его использованием доску надо идеально очистить, зашкурить (вдоль волокон) мелкозернистой наждачной бумагой, прогрунтовать тем же лаком, только с добавлением воды и лишь потом, после высыхания вскрыть в 2-3 слоя.


Провисающие провода и ободранные стены стали главным «украшением» той части квартиры, в которой преобладает стиль лофт. | Фото: contemporist.com.

Со стен были сняты остатки обоев и заделаны щели, проведено электричество, но кабель никто прятать не стал, все находится на внешней стороне стен и потолка.

Неординарное сочетание винтажной и современной мебели (Стокгольм, Швеция). | Фото: plataformaarquitectura.cl.

От прежних хозяев осталась некоторая мебель, которую девушка пристроила на стороне из «прошлого». Некоторые элементы пришлось обновить и покрасить, а некоторые Карин умышленно состарила, при этом никакой перетяжки и осовременивания делать не стала, оставив все как есть. В этой половине квартиры преобладает лофт с тонкой претензией на шебби-шик, ведь явной роскоши пока не просматривается.


Современная бытовая техника спрятана в шкаф. | Фото: plataformaarquitectura.cl.

В ванной комнате прошла полная замена коммуникаций, сантехники и кафеля, со стороны комнаты были установлены стиральная машина и сушилка, которые Карин решила спрятать в нише за дверью. Таким образом, получился встроенный шкаф, который стал дополнительным местом хранения для моющих средств, грязной одежды и всяких мелочей.

На балкон есть выход из комнаты и с ванной. | Фото: karinmatz.se.

Еще одно неординарное решение приняла девушка: душевую она расположила так, чтобы с одной стороны можно было сделать …окно на балкон. Так что теперь принимая душ, можно петь сколько угодно и любоваться прекрасным видом на залив.

Ванная комната становится связующим звеном между двумя зонами квартиры, имеющим разное стилевое оформление. | Фото: plataformaarquitectura.cl.

Учитывая, что ванная комната расположена посередине необычной квартиры, она стала своеобразным связующим звеном между «прошлым» и «настоящим».


Прекрасный вид из окна может радовать даже купающего в душе (Стокгольм, Швеция). | Фото: plataformaarquitectura.cl.

Если, вдохновившись реализацией столь неординарного проекта, вы решитесь на ремонт своей крошечной квартиры, то 16 практических идей наверняка помогут увеличить потенциал даже самого миниатюрного пространства.

Решение жилищного вопроса толкает некоторых людей на неординарные эксперименты, особенно если такая недвижимость находится в крупных городах. Став «счастливым» обладателем заброшенной квартиры площадью всего лишь 36 м?, служившей многие годы складом, девушке пришлось полностью переосмысливать интерьер, чтобы превратить помещение в комфортабельное жилье с удивительным сочетанием прошлого и современного оформления. Карин Мац превратила заброшенный склад в комфортную квартиру с неординарным интерьером (Стокгольм, Швеция). | Фото: johbatesstudio.com/ karinmatz.se. В таком городе, как Стокгольм (Швеция), с огромной нехваткой жилья и ценой за 1 кв. метр приобрести недвижимость за небольшие деньги практически нереально. Если, конечно же, это не заброшенное помещение в плачевном состоянии. Так повезло молодой девушке-дизайнеру, которая решилась на столь рискованный эксперимент, но все неурядицы перевесила цена, объявленная на аукционе. Так выглядела квартира-склад во время аукциона (Стокгольм, Швеция). | Фото: karinmatz.se. Эта квартира много лет служила складом, а последние 20 лет и вовсе стояла заброшена. Судя по всему предыдущий владелец пытался сделать ремонт в 1980-х гг, но по какой-то причине он не состоялся, поэтому в помещении обои были наполовину сняты, на рабочей стене кухни осталось лишь несколько плиток и торчащий кран. Неприглядный вид полностью «убитой» квартиры не испугал девушку. | Фото: plataformaarquitectura.cl. В квартире не было даже электричества, да и коммуникации пришли в негодность, но это и понятно, ведь последние десятилетия здесь хозяйничали только крысы. Для начала Карин Мац составила план-чертеж квартиры (Стокгольм, Швеция). | Фото: karinmatz.se. Учитывая тот факт, что новой владелицей стала Карин Мац (Karin Matz), довольно креативный дизайнер и архитектор, ей не составило труда сделать новый план-чертеж со всеми изменениями, которые захотелось внедрить в свое крошечное жилище. Квартиру девушка условно разделила на две зоны. | Фото: karinmatz.se. Несмотря на то, что пространство было довольно ограничено, общая площадь квартиры составляла всего лишь 36 м? девушке хотелось оставить как можно больше свободного пространства, но при этом иметь комфортабельное жилье. Как оказалось, это возможно сделать, если максимально рационально использовать каждый сантиметр площади. Чтобы осуществить свою задумку в создании неординарного жилья, ей пришлось условно разделить квартиру на две части. Зона кухни до и после ремонта. | Фото: treehugger.com. В одной половине был сделан идеальный ремонт с проведением скрытых электрокоммуникаций, выравниванием стен, покраской оконной рамы, установкой оригинальных светильников и укладкой ламината. Девушка оставила лишь трубы и рабочий фартук в том виде, какой он был на протяжении последних 20 лет. Почему Карин так поступила, станет ясно тогда, когда узнаете, как она решила оформить вторую часть пространства. С помощью модульных систем из Ikea удалось создать кухню, спальню и гардеробную. | Фото: plataformaarquitectura.cl. Учитывая, что в этой зоне Карин планировала обустроить полноценную кухню, спальню и гардеробную, ей пришлось приобрести мебельные модули от Ikea, из которых собрали кухонный гарнитур. Спальню удалось оформить на втором ярусе, что значительно увеличило свободное пространство в крошечной квартире. | Фото: contemporist.com. А вот спальное место удалось поднять на довольно высокий подиум, взгромоздив деревянную плиту перекрытия прямо на конструкцию из подобных модулей. Под спальным местом получилось обустроить самую настоящую гардеробную. Для удобства пользования рейлингами, на которых висят вещи, была выбрана вешалка с карусельной системой крепления. Под спальным местом удалось обустроить гардеробную. | Фото: plataformaarquitectura.cl. Чтобы запахи и пар из кухни не попадали на постель, была сделана стеклянная перегородка, которая ограждала спальное место и в тоже время не препятствовала проникновению дневного света на второй ярус. Эту часть квартиру Карин решила оформить в белых тонах, чтобы хотя бы визуально расширить ее границы. При желании зону кухни, спальни и гардеробную можно спрятать за рулонными шторами. | Фото: karinmatz.se. В целом эта часть квартиры оформлена скандинавском стиле, как и мечтала девушка. Для того чтобы «спрятать» эту зону во время дружеских вечеринок или посещения гостей новоиспеченная владелица установила рулонные шторы, которые можно опустить в любой момент. В другой половине квартиры интерьер остался в том состоянии, в котором пребывал последние 20 лет. | Фото: plataformaarquitectura.cl. А вот вторую часть квартиры креативный дизайнер захотела оставить в .неизменном виде! Естественно, все было вычищено и вымыто, поменяна рассохшаяся оконная рама, пол очищен от старой краски и окрашен бесцветным средством, которое сохраняет цвет древесины и предохраняет от негативного влияния воды и насекомых. Разительный контраст архитектурных стилей. | Фото: plataformaarquitectura.cl. Совет от авторов Novate.Ru: Если хотите сохранить цвет дерева неизменным, для покрытия древесины лучше использовать бесцветный водно-дисперсионный лак на акриловой основе. Перед его использованием доску надо идеально очистить, зашкурить (вдоль волокон) мелкозернистой наждачной бумагой, прогрунтовать тем же лаком, только с добавлением воды и лишь потом, после высыхания вскрыть в 2-3 слоя. Провисающие провода и ободранные стены стали главным «украшением» той части квартиры, в которой преобладает стиль лофт. | Фото: contemporist.com. Со стен были сняты остатки обоев и заделаны щели, проведено электричество, но кабель никто прятать не стал, все находится на внешней стороне стен и потолка. Неординарное сочетание винтажной и современной мебели (Стокгольм, Швеция). | Фото: plataformaarquitectura.cl. От прежних хозяев осталась некоторая мебель, которую девушка пристроила на стороне из «прошлого». Некоторые элементы пришлось обновить и покрасить, а некоторые Карин умышленно состарила, при этом никакой перетяжки и осовременивания делать не стала, оставив все как есть. В этой половине квартиры преобладает лофт с тонкой претензией на шебби-шик, ведь явной роскоши пока не просматривается. Современная бытовая техника спрятана в шкаф. | Фото: plataformaarquitectura.cl. В ванной комнате прошла полная замена коммуникаций, сантехники и кафеля, со стороны комнаты были установлены стиральная машина и сушилка, которые Карин решила спрятать в нише за дверью. Таким образом, получился встроенный шкаф, который стал дополнительным местом хранения для моющих средств, грязной одежды и всяких мелочей. На балкон есть выход из комнаты и с ванной. | Фото: karinmatz.se. Еще одно неординарное решение приняла девушка: душевую она расположила так, чтобы с одной стороны можно было сделать …окно на балкон. Так что теперь принимая душ, можно петь сколько угодно и любоваться прекрасным видом на залив. Ванная комната становится связующим звеном между двумя зонами квартиры, имеющим разное стилевое оформление. | Фото: plataformaarquitectura.cl. Учитывая, что ванная комната расположена посередине необычной квартиры, она стала своеобразным связующим звеном между «прошлым» и «настоящим». Прекрасный вид из окна может радовать даже купающего в душе (Стокгольм, Швеция). | Фото: plataformaarquitectura.cl. Если, вдохновившись реализацией столь неординарного проекта, вы решитесь на ремонт своей крошечной квартиры, то 16 практических идей наверняка помогут увеличить потенциал даже самого миниатюрного пространства.

Цитирование статьи, картинки - фото скриншот - Rambler News Service.
Иллюстрация к статье - Яндекс. Картинки.
Есть вопросы. Напишите нам.
Общие правила  поведения на сайте.



«oz90.ru»