Интерьер
  • Контакты Dizayn

XS Studio: эргономика на 44 кв. метрах - «Интерьер»

3-09-2018, 12:04   Hancock   Нашли ошибку?    Мы в Яндекс.Дзен


XS Studio: эргономика на 44 кв. метрах - «Интерьер»

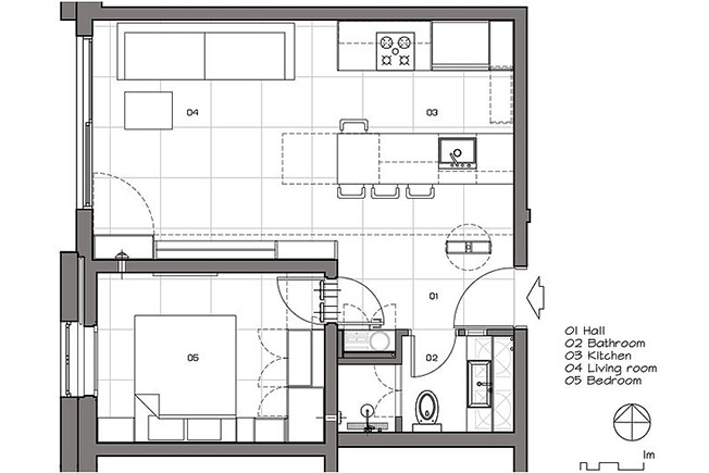
Работа XS Studio доказывает, что эргономичный дизайн позволяет использовать на 100% даже весьма скромную площадь. Проектирование 44 кв. метров этой квартиры усложнялось конструктивными особенностями здания. Впрочем, в исходных данных было и немало плюсов: высокие потолки, панорамное остекление с выходом на балкон, откуда открывается прекрасный вид на центр города.


Трехэтажное здание в Тель-Авиве, в котором расположена квартира, относится к памятникам культурного наследния. Архитектура запоминается эркерами и круглыми окнами.




Простые и эффектные приемы реализовали и архитекторы бюро XS Studio. Привычный белый цвет, который, как известно, визуально увеличивает площадь маленьких пространств, работает еще более эффективно, контрастируя с темными поверхностями.




Многофункциональная система хранения зонирует квартиру — ее большая часть расположена вдоль несущей стены. За фасадами скрываются кондиционер, встроенная аудиосистема, бар. А под самым потолком — дополнительные секции для сезонных вещей, добраться до которых можно с помощью лестницы. Этот же прием позволил эффективно задействовать и пространство над кухней, где также под потолком расположены системы хранения.



Интересным решением стала поворотная секция, которая отделяет прихожую от жилой зоны — с одной стороны это шкаф для верхней одежды, с другой зеркало. Отражающая поверхность, обращенная к кухонной зоне дополнительно работает на визуальное увеличение масштаба. Обращенная к входной двери, несет привычную утилитарную функцию.




Объединенная с кухней гостиная максимально открыта солнечному свету – ее минималистичное наполнение зрительно увеличивает границы помещения. Занимая всего несколько метров, кухня оснащена полным набором современной техники. Впрочем, сами владельцы признаются, что готовят мало и редко, возможность беседовать за барным столом была для них гораздо важнее. На тот случай, когда приготовление будет приоритетным, дизайнеры предусмотрели мобильную конструкцию столешницы.



Площадь спальни не более 10 кв. метров, но функционал этого помещения максимально насыщен: системы хранения расположены по периметру, от пола и до самого потолка. Монохромное колористическое решение призвано визуально увеличить восприятие пространства.



Чтобы не тратить драгоценное кухонное пространство, стиральная и сушильные машины были помещены в ванную комнату под раковиной. Ванная комната находится в общей зоне рядом с прихожей, чтобы обеспечить естественный свет, дизайнеры смонтировали в стене большое круглое окно с матовым стеклом — оно дополняет набор простых эффектных приемов в квартире и перекликается с архитектурой здания.





Работа XS Studio доказывает, что эргономичный дизайн позволяет использовать на 100% даже весьма скромную площадь. Проектирование 44 кв. метров этой квартиры усложнялось конструктивными особенностями здания. Впрочем, в исходных данных было и немало плюсов: высокие потолки, панорамное остекление с выходом на балкон, откуда открывается прекрасный вид на центр города. Трехэтажное здание в Тель-Авиве, в котором расположена квартира, относится к памятникам культурного наследния. Архитектура запоминается эркерами и круглыми окнами. Простые и эффектные приемы реализовали и архитекторы бюро XS Studio. Привычный белый цвет, который, как известно, визуально увеличивает площадь маленьких пространств, работает еще более эффективно, контрастируя с темными поверхностями. Многофункциональная система хранения зонирует квартиру — ее большая часть расположена вдоль несущей стены. За фасадами скрываются кондиционер, встроенная аудиосистема, бар. А под самым потолком — дополнительные секции для сезонных вещей, добраться до которых можно с помощью лестницы. Этот же прием позволил эффективно задействовать и пространство над кухней, где также под потолком расположены системы хранения. Интересным решением стала поворотная секция, которая отделяет прихожую от жилой зоны — с одной стороны это шкаф для верхней одежды, с другой зеркало. Отражающая поверхность, обращенная к кухонной зоне дополнительно работает на визуальное увеличение масштаба. Обращенная к входной двери, несет привычную утилитарную функцию. Объединенная с кухней гостиная максимально открыта солнечному свету – ее минималистичное наполнение зрительно увеличивает границы помещения. Занимая всего несколько метров, кухня оснащена полным набором современной техники. Впрочем, сами владельцы признаются, что готовят мало и редко, возможность беседовать за барным столом была для них гораздо важнее. На тот случай, когда приготовление будет приоритетным, дизайнеры предусмотрели мобильную конструкцию столешницы. Площадь спальни не более 10 кв. метров, но функционал этого помещения максимально насыщен: системы хранения расположены по периметру, от пола и до самого потолка. Монохромное колористическое решение призвано визуально увеличить восприятие пространства. Чтобы не тратить драгоценное кухонное пространство, стиральная и сушильные машины были помещены в ванную комнату под раковиной. Ванная комната находится в общей зоне рядом с прихожей, чтобы обеспечить естественный свет, дизайнеры смонтировали в стене большое круглое окно с матовым стеклом — оно дополняет набор простых эффектных приемов в квартире и перекликается с архитектурой здания.

Цитирование статьи, картинки - фото скриншот - Rambler News Service.
Иллюстрация к статье - Яндекс. Картинки.
Есть вопросы. Напишите нам.
Общие правила  поведения на сайте.



«oz90.ru»