Интерьер
  • Контакты Dizayn

Проект Олеси Шляхтиной: квартира без прямых углов - «Интерьер»

7-09-2018, 09:12   Ираида   Нашли ошибку?    Мы в Яндекс.Дзен


Проект Олеси Шляхтиной: квартира без прямых углов - «Интерьер»
Прихожая. Кресло Fratelli Boffi, консоль Ego, зеркало Spini. На стене работа из галереи ArtBrut Moscow.



nonehttps://www.instagram.com/olesya_shlyakhtina/https://www.facebook.com/olesya.shlyakhtinahttp://igraform.ru

Олеся Шляхтина оформила квартиру для семейной пары зрелого возраста, интерьер для отдыха и общения с близкими. Задачу усложнила неправильная конфигурация помещений — архитектор достойно справилась с ней.




В столовой зоне установлены эффектный стол компании Emmemobili дизайна Ферруччо Лавиани и стулья в кожаной обивке Porada. Акварели Сергея Гуляко. Для квартиры с радиусными стенами заказывали гибкие карнизы и плинтуса.
В столовой зоне установлены эффектный стол Emmemobili дизайна Ферруччо Лавиани и стулья Porada. Акварель Сергея Гуляко. Для квартиры с радиусными стенами заказывали гибкие карнизы и плинтуса. Купол стадиона Динамо — органичное дополнение интерьера.
В столовой зоне установлены эффектный стол компании Emmemobili дизайна Ферруччо Лавиани и стулья в кожаной обивке Porada. На стене акварель Сергея Гуляко и работа из галереи ArtBrut Moscow.



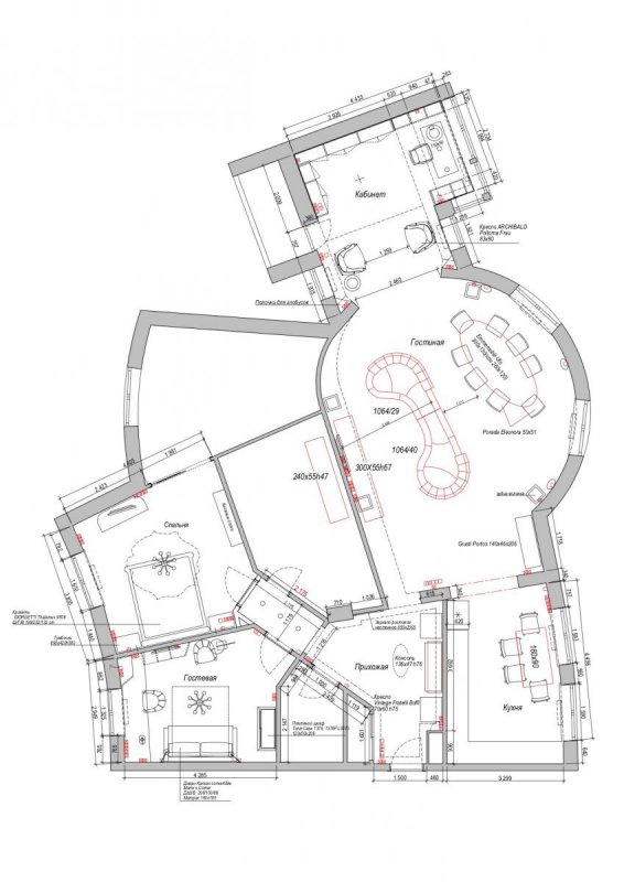
Квартира находится в монолитно-кирпичном доме рядом со стадионом Динамо: его новый, недавно возведенный бело-голубой купол хорошо виден с 11 этажа. Особенность квартиры — сложная конфигурация: в ней нет ни одного прямого угла и почти все стены скруглены. Замысловатая архитектура здания, построенного по индивидуальному проекту, заставила поломать голову многих проектировщиков, работавших в разное время над его интерьерами.


Диван-трансформер de Sede: спинка меняет положение и перемещается по направляющим. Столик Ditre Italia. Торшер Ligne Roset. Хозяева попросили архитектора оставить встроенные в потолок светильники — это было одним из обязательных условий.

К Олесе Шляхтиной обратилась пожилая супружеская пара: интеллектуалы, путешественники, позитивные люди с активной жизненной позицией. Они купили квартиру со сложившейся планировкой. «Передо мной стояла задача создать современный интерьер в уже заданном пространстве, выделить функциональные зоны и расставить мебель», — рассказывает Олеся Шляхтина.


Гостиная. Диван-трансформер de Sede: спинка меняет положение и перемещается по направляющим. Отдельностоящую модель выбрали потому, что к ней удобно подойти со всех сторон. Из окон виден новый купол стадиона Динамо.
В столовой зоне установлен эффектный стол компании Emmemobili дизайна Ферруччо Лавиани — его линии согласуются с архитектурой интерьера. Стулья в кожаной обивке Porada. Акварели Сергея Гуляко.

К заказчикам часто приезжают их уже взрослые дети и внук. Поэтому им требовалась гостевая комната, а также просторная столовая, где могли бы собираться многочисленные гости и родственники — компания до двадцати человек, и чтобы каждый чувствовал себя комфортно. Необходимо было спроектировать большую библиотеку для обширного собрания книг, а также придумать, где хранить коллекцию глобусов: в ней есть ценные экземпляры ручной работы — хотелось, чтобы они заняли достойное место.


Для обширного собрания книг и коллекции глобусов архитектор спроектировала вместительную библиотеку. Кресло в кожаной обивке дизайна Жан-Мари Массо, Poltrona Frau. Столики Brabbu.
«В зоне библиотеки важно было создать место для чтения и общения тет-а-тет, поэтому здесь появились два кресла и столики», — говорит автор проекта. Библиотека L'Origine. Кресла Poltrona Frau, столики Brabbu. Ковер Jerome Botanic.

Также архитектору предстояло изолировать спальню. Как ни странно, эта комната не была закрыта дверью — стояла лишь общая дверь в коридор, который вел в приватную половину. Тщательным образом продумывалсь зона библиотеки. Рядом с линейкой книжных шкафов поставили невысокий стеллаж для принтера и техники, а в самом светлом месте, в эркере — письменный стол. Для коллекции глобусов спроектировали специальные шкафчики, которые встроили в угловые ниши. Самые большие глобусы нашли место в гостевой комнате.


Письменный стол с кожаной вставкой и кресло Giorgetti установили в самой светлой части — в эркере. Винтажная настольная лампа переехала из прежней квартиры хозяев. Купол стадиона Динамо, который виден в окне, — оригинальное дополнение интерьера.
Винтажная настольная лампа переехала из старой квартиры хозяев. На стенах работы из коллекции заказчиков.
Библиотека L'Origine. Кресло и стол с кожаной вставкой Giorgetti. Винтажная настольная лампа переехала из старой квартиры хозяев. На стенах работы из коллекции заказчиков.



Спальня. Напротив кровати установили комод с ножками-«луковками» Bamax, рядом кресло Giorgetti. На стене картина из коллекции хозяев. Раздвижные стеклянные двери ведут в гардеробную.
В спальне архитектор применила классическую расстановку мебели: тумбы расположены симметрично относительно кровати (всё — Giorgetti). Настольные лампы Christine Kroncke.





Площадь квартиры — 185 кв. метров, из них значительную часть занимает open space, объединяющий гостиную, столовую, кухню и библиотеку. Свободная комната, которая располагается в блоке со спальней, переоборудована в гостевую, чаще всего ее занимает любимый внук. Спальню хозяев отгородили дверью, при комнате расположена просторная гардеробная, которую отделяют раздвижные стеклянные перегородки.


Cтол Lago. Стулья Poliform. Кухня Giulia Novars в отделке из шпона зебрано: активная текстура дерева сталя ярким акцентом в монохромном интерьере. Над столом светильник Studio Italia Design.



«Мне нравится, что удалось привнести в такой интерьер ноту брутальности — стол Lago демонстрирует ярко выраженную фактуру дерева», — говорит Олеся Шляхтина. Стулья Poliform. Кухня Giulia Novars.
Cтол Lago. Стулья Poliform. Кухня Giulia Novars в отделке из шпона зебрано: активная текстура дерева сталя ярким акцентом в монохромном интерьере. Над столом светильник Studio Italia Design.



Гостевой санузел.

«Заказчица активно принимала участие в работе, очень хотела иметь уютный домашний интерьер не для «глянцевой обложки», а для жизни, поэтому основное внимание уделяла удобству предметов и комфорту. Вместе с тем она стремилась, чтобы каждая вещь обладала индивидуальностью», — подчеркивает Олеся. Удачными находками стала роскошная мебель итальянской фабрики Giorgetti, известной великолепной работой с деревом. Стол от Emmemobili и диван-трансформер de Sede, кресла Poltrona Frau также оправдали ожидания и к тому же поддержали нестандартные формы столовой-гостиной.


Палитра гостевой комнаты построена на сочетании сочного терракотового оттенка с сиреневым. Кресло и столик Giorgetti. На стене работа из галереи ArtBrut Moscow.

Значительную часть мебели пришлось изготавливать на заказ, например, рабочий стол, переходящий в полку для телевизора, в гостевой комнате — с этой конструкцией возникли сложности из-за скругленных стен. Для всей квартиры заказывали специальные, гнущиеся карнизы и плинтуса: «При радиусных стенах и отсутствии четких углов это неизбежно», — говорит Олеся Шляхтина.


В спальне архитектор применила классическую расстановку мебели: тумбы расположены симметрично относительно кровати (всё — Giorgetti). Настольные лампы Christine Kroncke.
В спальне архитектор применила классическую расстановку мебели: тумбы расположены симметрично относительно кровати (всё — Giorgetti). Настольные лампы Christine Kroncke.
Основные изменения коснулись гостевой комнаты: здесь появился цвет. Диван Marie's Corner, шкаф Tonin Casa. Работа из галереи ArtBrut Moscow.
Основные изменения коснулись гостевой комнаты: здесь появился цвет. Рабочий стол, переходящий в полку для ТВ, спроектирован архитектором — из-за скругленных стен сделать конструкцию было непросто. Диван Marie's Corner.

Основная палитра построена на светлых тонах — серых, бежевых, трюфельных. «Заказчики не хотели менять цвет в гостиной-столовой и кухне. Их предыдущая квартира была выдержана в темных тонах, теперь им хотелось более светлых. Поэтому стены мы только освежили белой краской. Поскольку я люблю работать с цветом, то убедила клиентов переделать хотя бы гостевую комнату: ее палитра строится на сочном терракотовом и лавандовом оттенках.



В данном проекте я работала как архитектор и художник. Я всегда стараюсь оживить интерьер «своей» колористикой, чтобы человек смог расслабить глаза, тело и ощутить максимальный комфорт. На мой взгляд, у меня получилось создать гармоничную среду, добиться баланса фактур. Но прежде всего интерьер интересен для меня тем, что удалось поработать в новой стилистике — отличной от той, по которой меня знают большинство клиентов».


Архитектор Олеся Шляхтина, «Студия дизайна и архитектуры Олеси Шляхтиной».



Прихожая. Кресло Fratelli Boffi, консоль Ego, зеркало Spini. На стене работа из галереи ArtBrut Moscow. nonehttps://www.instagram.com/olesya_shlyakhtina/https://www.facebook.com/olesya.shlyakhtinahttp://igraform.ru Олеся Шляхтина оформила квартиру для семейной пары зрелого возраста, интерьер для отдыха и общения с близкими. Задачу усложнила неправильная конфигурация помещений — архитектор достойно справилась с ней. В столовой зоне установлены эффектный стол компании Emmemobili дизайна Ферруччо Лавиани и стулья в кожаной обивке Porada. Акварели Сергея Гуляко. Для квартиры с радиусными стенами заказывали гибкие карнизы и плинтуса. В столовой зоне установлены эффектный стол Emmemobili дизайна Ферруччо Лавиани и стулья Porada. Акварель Сергея Гуляко. Для квартиры с радиусными стенами заказывали гибкие карнизы и плинтуса. Купол стадиона Динамо — органичное дополнение интерьера. В столовой зоне установлены эффектный стол компании Emmemobili дизайна Ферруччо Лавиани и стулья в кожаной обивке Porada. На стене акварель Сергея Гуляко и работа из галереи ArtBrut Moscow. Квартира находится в монолитно-кирпичном доме рядом со стадионом Динамо: его новый, недавно возведенный бело-голубой купол хорошо виден с 11 этажа. Особенность квартиры — сложная конфигурация: в ней нет ни одного прямого угла и почти все стены скруглены. Замысловатая архитектура здания, построенного по индивидуальному проекту, заставила поломать голову многих проектировщиков, работавших в разное время над его интерьерами. Диван-трансформер de Sede: спинка меняет положение и перемещается по направляющим. Столик Ditre Italia. Торшер Ligne Roset. Хозяева попросили архитектора оставить встроенные в потолок светильники — это было одним из обязательных условий. К Олесе Шляхтиной обратилась пожилая супружеская пара: интеллектуалы, путешественники, позитивные люди с активной жизненной позицией. Они купили квартиру со сложившейся планировкой. «Передо мной стояла задача создать современный интерьер в уже заданном пространстве, выделить функциональные зоны и расставить мебель», — рассказывает Олеся Шляхтина. Гостиная. Диван-трансформер de Sede: спинка меняет положение и перемещается по направляющим. Отдельностоящую модель выбрали потому, что к ней удобно подойти со всех сторон. Из окон виден новый купол стадиона Динамо. В столовой зоне установлен эффектный стол компании Emmemobili дизайна Ферруччо Лавиани — его линии согласуются с архитектурой интерьера. Стулья в кожаной обивке Porada. Акварели Сергея Гуляко. К заказчикам часто приезжают их уже взрослые дети и внук. Поэтому им требовалась гостевая комната, а также просторная столовая, где могли бы собираться многочисленные гости и родственники — компания до двадцати человек, и чтобы каждый чувствовал себя комфортно. Необходимо было спроектировать большую библиотеку для обширного собрания книг, а также придумать, где хранить коллекцию глобусов: в ней есть ценные экземпляры ручной работы — хотелось, чтобы они заняли достойное место. Для обширного собрания книг и коллекции глобусов архитектор спроектировала вместительную библиотеку. Кресло в кожаной обивке дизайна Жан-Мари Массо, Poltrona Frau. Столики Brabbu. «В зоне библиотеки важно было создать место для чтения и общения тет-а-тет, поэтому здесь появились два кресла и столики», — говорит автор проекта. Библиотека L'Origine. Кресла Poltrona Frau, столики Brabbu. Ковер Jerome Botanic. Также архитектору предстояло изолировать спальню. Как ни странно, эта комната не была закрыта дверью — стояла лишь общая дверь в коридор, который вел в приватную половину. Тщательным образом продумывалсь зона библиотеки. Рядом с линейкой книжных шкафов поставили невысокий стеллаж для принтера и техники, а в самом светлом месте, в эркере — письменный стол. Для коллекции глобусов спроектировали специальные шкафчики, которые встроили в угловые ниши. Самые большие глобусы нашли место в гостевой комнате. Письменный стол с кожаной вставкой и кресло Giorgetti установили в самой светлой части — в эркере. Винтажная настольная лампа переехала из прежней квартиры хозяев. Купол стадиона Динамо, который виден в окне, — оригинальное дополнение интерьера. Винтажная настольная лампа переехала из старой квартиры хозяев. На стенах работы из коллекции заказчиков. Библиотека L'Origine. Кресло и стол с кожаной вставкой Giorgetti. Винтажная настольная лампа переехала из старой квартиры хозяев. На стенах работы из коллекции заказчиков. Спальня. Напротив кровати установили комод с ножками-«луковками» Bamax, рядом кресло Giorgetti. На стене картина из коллекции хозяев. Раздвижные стеклянные двери ведут в гардеробную. В спальне архитектор применила классическую расстановку мебели: тумбы расположены симметрично относительно кровати (всё — Giorgetti). Настольные лампы Christine Kroncke. Площадь квартиры — 185 кв. метров, из них значительную часть занимает open space, объединяющий гостиную, столовую, кухню и библиотеку. Свободная комната, которая располагается в блоке со спальней, переоборудована в гостевую, чаще всего ее занимает любимый внук. Спальню хозяев отгородили дверью, при комнате расположена просторная гардеробная, которую отделяют раздвижные стеклянные перегородки. Cтол Lago. Стулья Poliform. Кухня Giulia Novars в отделке из шпона зебрано: активная текстура дерева сталя ярким акцентом в монохромном интерьере. Над столом светильник Studio Italia Design. «Мне нравится, что удалось привнести в такой интерьер ноту брутальности — стол Lago демонстрирует ярко выраженную фактуру дерева», — говорит Олеся Шляхтина. Стулья Poliform. Кухня Giulia Novars. Cтол Lago. Стулья Poliform. Кухня Giulia Novars в отделке из шпона зебрано: активная текстура дерева сталя ярким акцентом в монохромном интерьере. Над столом светильник Studio Italia Design. Гостевой санузел. «Заказчица активно принимала участие в работе, очень хотела иметь уютный домашний интерьер не для «глянцевой обложки», а для жизни, поэтому основное внимание уделяла удобству предметов и комфорту. Вместе с тем она стремилась, чтобы каждая вещь обладала индивидуальностью», — подчеркивает Олеся. Удачными находками стала роскошная мебель итальянской фабрики Giorgetti, известной великолепной работой с деревом. Стол от Emmemobili и диван-трансформер de Sede, кресла Poltrona Frau также оправдали ожидания и к тому же поддержали нестандартные формы столовой-гостиной. Палитра гостевой комнаты построена на сочетании сочного терракотового оттенка с сиреневым. Кресло и столик Giorgetti. На стене работа из галереи ArtBrut Moscow. Значительную часть мебели пришлось изготавливать на заказ, например, рабочий стол, переходящий в полку для телевизора, в гостевой комнате — с этой конструкцией возникли сложности из-за скругленных стен . Для всей квартиры заказывали специальные, гнущиеся карнизы и плинтуса: «При радиусных стенах и отсутствии четких углов это неизбежно», — говорит Олеся Шляхтина. В спальне архитектор применила классическую расстановку мебели: тумбы расположены симметрично относительно кровати (всё — Giorgetti). Настольные лампы Christine Kroncke. В спальне архитектор применила классическую расстановку мебели: тумбы расположены симметрично относительно кровати (всё — Giorgetti). Настольные лампы Christine Kroncke. Основные изменения коснулись гостевой комнаты: здесь появился цвет. Диван Marie's Corner, шкаф Tonin Casa. Работа из галереи ArtBrut Moscow. Основные изменения коснулись гостевой комнаты: здесь появился цвет. Рабочий стол, переходящий в полку для ТВ, спроектирован архитектором — из-за скругленных стен сделать конструкцию было непросто. Диван Marie's Corner. Основная палитра построена на светлых тонах — серых, бежевых, трюфельных. «Заказчики не хотели менять цвет в гостиной-столовой и кухне. Их предыдущая квартира была выдержана в темных тонах, теперь им хотелось более светлых. Поэтому стены мы только освежили белой краской. Поскольку я люблю работать с цветом, то убедила клиентов переделать хотя бы гостевую комнату: ее палитра строится на сочном терракотовом и лавандовом оттенках. В данном проекте я работала как архитектор и художник. Я всегда стараюсь оживить интерьер «своей» колористикой, чтобы человек смог расслабить глаза, тело и ощутить максимальный комфорт. На мой взгляд, у меня получилось создать гармоничную среду, добиться баланса фактур. Но прежде всего интерьер интересен для меня тем, что удалось поработать в новой стилистике — отличной от той, по которой меня знают большинство клиентов». Архитектор Олеся Шляхтина, «Студия дизайна и архитектуры Олеси Шляхтиной».

Цитирование статьи, картинки - фото скриншот - Rambler News Service.
Иллюстрация к статье - Яндекс. Картинки.
Есть вопросы. Напишите нам.
Общие правила  поведения на сайте.



«oz90.ru»