Интерьер
  • Контакты Dizayn

INT2Architecture: таунхаус DIY под Петербургом - «Интерьер»

10-09-2018, 08:03   Симон   Нашли ошибку?    Мы в Яндекс.Дзен


INT2Architecture: таунхаус DIY под Петербургом - «Интерьер»
Кресло, по словам архитекторов, было спасено из рук дворников в центре Петербурга. После чего его перекрасили и перетянули брезентовой тканью. На стене разместился книжный шкаф-бар.

INT2architecture — молодая, активная, мультидисциплинарная команда. Создана Александром Малининым и Анастасией Шевелевой. Даже малобюджетные проекты архитекторы умеют сделать по-европейски стильными — таунхаус под Петербургом тому пример. Вот что нам рассказали авторы.


Банки для хранения специй — оригинальный декор в минималистском интерьере.

«Последние несколько лет за рубежом наблюдается бум направления DIY (от английского Do it Yourself): блоги, журналы и видео-инструкции рассказывают, как делать оригинальную мебель и наполнять свой дом уютом без существенных финансовых вложений. В России это движение пока только набирает силу.


Потолок первого этажа в противовес белым стенам решено было оставить бетонным — он просто зачищен и покрыт лаком. В черном кубе находится гостевой санузел/постирочная.
Первый этаж занимает кухня-гостиная. Винтажные стулья имеют разное происхождение: те, что с кожаными сиденьями, прибыли из Европы, деревянные чешские куплены за небольшие деньги в московском интернет-магазине.
Первый уровень занимает кухня-гостиная. Шестиметровые доски из лиственницы уложены без стыковки по длине от стены до стены. Такое покрытие выглядит благородно и визуально вытягивает помещение.

Данный проект является экспериментом, цель которого — понять, что можно сделать своими руками, имея нулевые навыки в ремонте и производстве мебели, с помощью обычных бытовых инструментов.


На втором этаже одежда хранится в выдвижных ящиках кровати, а также на открытой вешалке под антресолью. Кресло: винтаж. На стене разместился книжный шкаф-бар. На полу килим 1970-х.
Спальню разделяют раздвижные перегородки. В будущем здесь можно будет создать две комнаты. Благодаря большой высоте потолков, удалось сделать антресоль с гостевым спальным местом. Конструкция выкрашена в белый цвет, как стены и потолок.
На втором уровне расположилась просторная спальня. В будущем можно будет отделить гостевую спальную зону или детскую.

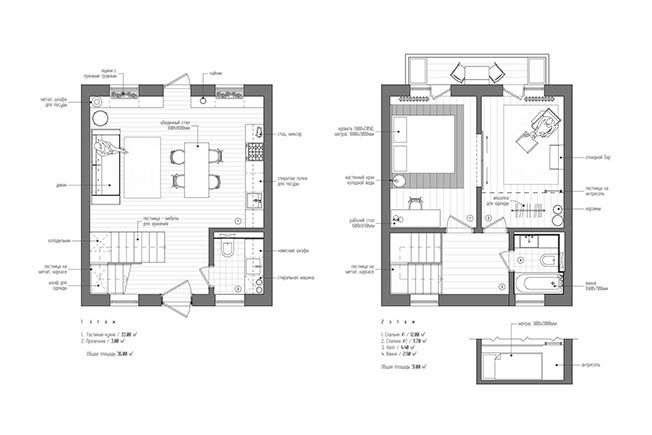
Двухуровневый таунхаус площадью 67 кв. метров расположен в пригороде Петербурга. Помещения изначально стояли без разводки инженерных коммуникаций и без какой-либо отделки. Инженерные работы были осуществлены профессионалами. Металлические шкафы, ограждения, полки и лестницы за символическую плату сварены и покрашены в цеху дружественной автомастерской неподалеку. Все остальное сделано самостоятельно: штукатурка и покраска стен, зачистка и лакировка бетонного потолка, укладка и покраска пола, сборка антресоли, а также изготовление мебели, светильников и декора.


Лестница — главный элемент для хранения в гостиной. Нижний пролет представляет собой закрытую систему: под площадкой встроен холодильник и шкаф для одежды, в мелких отделениях хранятся бытовая техника, мелочи для дома и посуда.
Лестница — главный элемент для хранения в гостиной. Нижний пролет представляет собой закрытую систему: под площадкой встроен холодильник и шкаф для одежды, в мелких отделениях хранятся бытовая техника, мелочи для дома и посуда.
Основа под диван спроектирована с тремя выдвижными ящиками с крышками, в них хранятся постельное белье, документы и мелкая техника. В выдвинутом положении ящики используются как кофейные столики у дивана.

Моделью для оштукатуривания стен стали «мазанки» — традиционные глинобитные дома с неровными белеными стенами, распространенные на юге России и Украины. Похожего визуального эффекта удалось добиться наложением нетолстого слоя штукатурки (0,5 – 1,5 см) с помощью кельмы без выравнивания и с последующей окраской кистью в белый цвет. Обе операции не заняли много времени и не требовали специальных навыков. Преимущество данной технологии — в случае необходимости штукатурка легко восстанавливается локально.




В черном кубе размещается гостевой санузел/постирочная. Фасады и ручки кухни выкрашены в темно-зеленый цвет под заказ на стороннем производстве. Споты SLV.



Банки для хранения специй выступают в роли декора.
Дерево и металл — основные материалы интерьера. Архитекторы продумали хранение: разнообразная посуда расставлена на открытых полках и в металлических шкафах под окнами.
Банки для сыпучих продуктов — французский винтаж.
Лестница изготовлена из цельноламельных сосновых мебельных щитов. Дерево — благодарный материал: повреждения и следы старения не портят его, а придают особый шарм.





Потолок первого этажа в противовес стенам решено было оставить бетонным — он просто зачищен и покрыт лаком. Для подключения потолочных спотов использована открытая проводка — гибкий кабель, покрытый серой текстильной оплеткой. Кабель приреплен к потолку кольцами-шурупами, окрашенными в медный цвет.


Второй этаж. Спальню разделяют раздвижные двери, они изготовлены из цельноламельных сосновых мебельных щитов. Ручки 1920-30-х годов взяты из петербургских коммуналок. В будущем здесь можно будет создать две комнаты.

Чистовой пол выполнен из натурального дерева. Шпунтованная доска из лиственницы, уложенная по лагам выбрана как более дешевая и простая в укладке альтернатива паркету. Лиственница — экологически чистый, красивый по текстуре и долговечный материал. Доски шестиметровой длины уложены без стыковки по длине от стены до стены. Чтобы уменьшить риск возникновения скрипа, между лагами и доской проложен слой рубероида. Для снижения уровня шума и дополнительной теплоизоляции пола пространство между лагами заполнено плитами из каменной ваты. В качестве финишного покрытия использовалось масло с твердым воском: оно позволяет древесине дышать, обеспечивает ее естественную защиту, устойчиво к износу, истиранию и загрязнениям.


На межкомнатные двери установлены ручки 1920-30-х годов из петербургских коммуналок.
Вместо прикроватной тумбы используется оцинкованное ведро с крышкой, привезенное из Америки.
Фактура стен напоминает стены в «мазанках» — традиционных глинобитных домах. Такого визуального эффекта удалось добиться наложением нетолстого слоя штукатурки с помощью кельмы и последующей окраской. Рабочая лампа House Doctor.

Лестница и основная мебель сделаны на месте из цельноламельных сосновых мебельных щитов. Распиловка щитов по нужным размерам производилась по заказу на производстве. Перед сборкой распиленные щиты подгонялись под нужный размер, в случае необходимости их шлифовали, покрывали мебельным маслом или краской. Всего из мебельного щита изготовлено более десятка объектов: лестница, диван, кровать, обеденный стол, столешницы и фартуки в кухню и прачечную, полки, бар и рабочий стол. А также раздвижные двери, подоконники, балконные пороги и декоративная рама окна в ванной.




Главная ванная на втором уровне. Раковина Ideal Standard. Ванна: Kaldewei. Унитазы и кнопки: Roca. Керамическая плитка, смесители, излив для ванны VitrА.
Главная ванная на втором уровне. Раковина Ideal Standard. Ванна: Kaldewei. Унитазы и кнопки: Roca. Керамическая плитка, смесители, излив для ванны VitrА.



Гостевой санузел, совмещенный с прачечной. Раковина Ideal Standard. Ванна Kaldewei. Сантехника Roca. Керамическая плитка, смесители VitrА.
В прачечной, совмещенной с гостевым санузлом, создана стена из небольших шкафов для складирования бытовой химии, полотенец, инвентаря для уборки и т. п. Стирально-сушильная машина LG.



В квартире много интересных винтажных предметов.



Шкафы кухни и прачечной собраны в Ikea, но так как палитра фасадов там ограничена, дверцы и ручки кухни были перекрашены в темно-зеленый цвет под заказ на стороннем производстве.


Гостевое спальное место на антресоли.

Важной задачей cтоло сооружение дополнительного спального места на втором этаже. Высота потолка позволила сделать антресоль, на которой можно разместить гостей на ночь, уединиться с книжкой, а в будущем переделать эту зону в изолированную детскую со свободной зоной для игр. Антресоль собрана из сосновых балок и фанеры, покрашена вместе с потолком и стенами в белый цвет. Конструкция довольно простая: балки опираются с одной стороны на несущую стену дома, а с другой — на межкомнатную перегородку из газобетона, с дополнительным креплением конструкции к третьей стене. Ограждение и лестница сварены из металла. Ограждение надежно закреплено к несущей железобетонной балке дома, что дополнительно снимает нагрузку со стен.



В проекте много изделий из металла. Помимо порошковой покраски в автомастерской для них использовались и другие варианты финишной отделки. Некоторые элементы покрывали специальным составом для холодного воронения стали на месте: верхний пролет лестницы, выполненный по «легкому» металлическому каркасу, а также ограждения.


Архитекторы Александр Малинин и Анастасия Шевелева.

В данном проекте довольно много винтажных элементов, купленных на аукционах и барахолках. На межкомнатные двери установили ручки 1920-30-х годов, снятые с дверей петербуржских коммуналок. Кресло на втором этаже было спасено из рук дворников в центре Петербурга, перекрашено и перетянуто брезентовой тканью. Под ним разместился турецкий килим 1970-х гг.


Вместо прикроватной тумбы используется оцинкованное ведро с крышкой, привезенное из Америки.

Среди предметов быта можно выделить старинную датскую хлеборезку, английские кухонные весы, французские банки для сыпучих продуктов, финские тарелки из фарфора, скандинавские столовые приборы. Стулья тоже винтажные, разные по форме и происхождению: два экземпляра с кожаными сиденьями — европейское mid-century, а деревянные чешские куплены за очень небольшие деньги в московском интернет-магазине.


В основании дивана — три выдвижных ящика с крышками, в них хранятся постельное белье, документы и мелкая техника. В выдвинутом положении ящики используются как придиванные столики. Открытая проводка проста в монтаже и выглядит стильно.



Кресло, по словам архитекторов, было спасено из рук дворников в центре Петербурга. После чего его перекрасили и перетянули брезентовой тканью. На стене разместился книжный шкаф-бар. INT2architecture — молодая, активная, мультидисциплинарная команда. Создана Александром Малининым и Анастасией Шевелевой. Даже малобюджетные проекты архитекторы умеют сделать по-европейски стильными — таунхаус под Петербургом тому пример. Вот что нам рассказали авторы. Банки для хранения специй — оригинальный декор в минималистском интерьере. «Последние несколько лет за рубежом наблюдается бум направления DIY (от английского Do it Yourself): блоги, журналы и видео-инструкции рассказывают, как делать оригинальную мебель и наполнять свой дом уютом без существенных финансовых вложений. В России это движение пока только набирает силу. Потолок первого этажа в противовес белым стенам решено было оставить бетонным — он просто зачищен и покрыт лаком. В черном кубе находится гостевой санузел/постирочная. Первый этаж занимает кухня-гостиная. Винтажные стулья имеют разное происхождение: те, что с кожаными сиденьями, прибыли из Европы, деревянные чешские куплены за небольшие деньги в московском интернет-магазине. Первый уровень занимает кухня-гостиная. Шестиметровые доски из лиственницы уложены без стыковки по длине от стены до стены. Такое покрытие выглядит благородно и визуально вытягивает помещение. Данный проект является экспериментом, цель которого — понять, что можно сделать своими руками, имея нулевые навыки в ремонте и производстве мебели, с помощью обычных бытовых инструментов. На втором этаже одежда хранится в выдвижных ящиках кровати, а также на открытой вешалке под антресолью. Кресло: винтаж. На стене разместился книжный шкаф-бар. На полу килим 1970-х. Спальню разделяют раздвижные перегородки. В будущем здесь можно будет создать две комнаты. Благодаря большой высоте потолков, удалось сделать антресоль с гостевым спальным местом. Конструкция выкрашена в белый цвет, как стены и потолок. На втором уровне расположилась просторная спальня. В будущем можно будет отделить гостевую спальную зону или детскую. Двухуровневый таунхаус площадью 67 кв. метров расположен в пригороде Петербурга. Помещения изначально стояли без разводки инженерных коммуникаций и без какой-либо отделки. Инженерные работы были осуществлены профессионалами. Металлические шкафы, ограждения, полки и лестницы за символическую плату сварены и покрашены в цеху дружественной автомастерской неподалеку. Все остальное сделано самостоятельно: штукатурка и покраска стен, зачистка и лакировка бетонного потолка, укладка и покраска пола, сборка антресоли, а также изготовление мебели, светильников и декора. Лестница — главный элемент для хранения в гостиной. Нижний пролет представляет собой закрытую систему: под площадкой встроен холодильник и шкаф для одежды, в мелких отделениях хранятся бытовая техника, мелочи для дома и посуда. Лестница — главный элемент для хранения в гостиной. Нижний пролет представляет собой закрытую систему: под площадкой встроен холодильник и шкаф для одежды, в мелких отделениях хранятся бытовая техника, мелочи для дома и посуда. Основа под диван спроектирована с тремя выдвижными ящиками с крышками, в них хранятся постельное белье, документы и мелкая техника. В выдвинутом положении ящики используются как кофейные столики у дивана. Моделью для оштукатуривания стен стали «мазанки» — традиционные глинобитные дома с неровными белеными стенами, распространенные на юге России и Украины. Похожего визуального эффекта удалось добиться наложением нетолстого слоя штукатурки (0,5 – 1,5 см) с помощью кельмы без выравнивания и с последующей окраской кистью в белый цвет. Обе операции не заняли много времени и не требовали специальных навыков. Преимущество данной технологии — в случае необходимости штукатурка легко восстанавливается локально. В черном кубе размещается гостевой санузел/постирочная. Фасады и ручки кухни выкрашены в темно-зеленый цвет под заказ на стороннем производстве. Споты SLV. Банки для хранения специй выступают в роли декора. Дерево и металл — основные материалы интерьера. Архитекторы продумали хранение: разнообразная посуда расставлена на открытых полках и в металлических шкафах под окнами. Банки для сыпучих продуктов — французский винтаж. Лестница изготовлена из цельноламельных сосновых мебельных щитов. Дерево — благодарный материал: повреждения и следы старения не портят его, а придают особый шарм. Потолок первого этажа в противовес стенам решено было оставить бетонным — он просто зачищен и покрыт лаком. Для подключения потолочных спотов использована открытая проводка — гибкий кабель, покрытый серой текстильной оплеткой. Кабель приреплен к потолку кольцами-шурупами, окрашенными в медный цвет. Второй этаж. Спальню разделяют раздвижные двери, они изготовлены из цельноламельных сосновых мебельных щитов. Ручки 1920-30-х годов взяты из петербургских коммуналок. В будущем здесь можно будет создать две комнаты. Чистовой пол выполнен из натурального дерева. Шпунтованная доска из лиственницы, уложенная по лагам выбрана как более дешевая и простая в укладке альтернатива паркету. Лиственница — экологически чистый, красивый по текстуре и долговечный материал. Доски шестиметровой длины уложены без стыковки по длине от стены до стены. Чтобы уменьшить риск возникновения скрипа, между лагами и доской проложен слой рубероида. Для снижения уровня шума и дополнительной теплоизоляции пола пространство между лагами заполнено плитами из каменной ваты. В качестве финишного покрытия использовалось масло с твердым воском: оно позволяет древесине дышать, обеспечивает ее естественную защиту, устойчиво к износу, истиранию и загрязнениям. На межкомнатные двери установлены ручки 1920-30-х годов из петербургских коммуналок. Вместо прикроватной тумбы используется оцинкованное ведро с крышкой, привезенное из Америки. Фактура стен напоминает стены в «мазанках» — традиционных глинобитных домах. Такого визуального эффекта удалось добиться наложением нетолстого слоя штукатурки с помощью кельмы и последующей окраской. Рабочая лампа House Doctor. Лестница и основная мебель сделаны на месте из цельноламельных сосновых мебельных щитов. Распиловка щитов по нужным размерам производилась по заказу на производстве. Перед сборкой распиленные щиты подгонялись под нужный размер, в случае необходимости их шлифовали, покрывали мебельным маслом или краской. Всего из мебельного щита изготовлено более десятка объектов: лестница, диван, кровать, обеденный стол, столешницы и фартуки в кухню и прачечную, полки, бар и рабочий стол. А также раздвижные двери, подоконники, балконные пороги и декоративная рама окна в ванной. Главная ванная на втором уровне. Раковина Ideal Standard. Ванна: Kaldewei. Унитазы и кнопки: Roca. Керамическая плитка, смесители, излив для ванны VitrА. Главная ванная на втором уровне. Раковина Ideal Standard. Ванна: Kaldewei. Унитазы и кнопки: Roca. Керамическая плитка, смесители, излив для ванны VitrА. Гостевой санузел, совмещенный с прачечной. Раковина Ideal Standard. Ванна Kaldewei. Сантехника Roca. Керамическая плитка, смесители VitrА. В прачечной, совмещенной с гостевым санузлом, создана стена из небольших шкафов для складирования бытовой химии, полотенец, инвентаря для уборки и т. п. Стирально-сушильная машина LG. В квартире много интересных винтажных предметов. Шкафы кухни и прачечной собраны в Ikea, но так как палитра фасадов там ограничена, дверцы и ручки кухни были перекрашены в темно-зеленый цвет под заказ на стороннем производстве. Гостевое спальное место на антресоли. Важной задачей cтоло сооружение дополнительного спального места на втором этаже. Высота потолка позволила сделать антресоль, на которой можно разместить гостей на ночь, уединиться с книжкой, а в будущем переделать эту зону в изолированную детскую со свободной зоной для игр. Антресоль собрана из сосновых балок и фанеры, покрашена вместе с потолком и стенами в белый цвет. Конструкция довольно простая: балки опираются с одной стороны на несущую стену дома, а с другой — на межкомнатную перегородку из газобетона, с дополнительным креплением конструкции к третьей стене. Ограждение и лестница сварены из металла. Ограждение надежно закреплено к несущей железобетонной балке дома, что дополнительно снимает нагрузку со стен. В проекте много изделий из металла. Помимо порошковой покраски в автомастерской для них использовались и другие варианты финишной отделки. Некоторые элементы покрывали специальным составом для холодного воронения стали на месте: верхний пролет лестницы, выполненный по «легкому» металлическому каркасу, а также ограждения. Архитекторы Александр Малинин и Анастасия Шевелева. В данном проекте довольно много винтажных элементов, купленных на аукционах и барахолках. На межкомнатные двери установили ручки 1920-30-х годов, снятые с дверей петербуржских коммуналок. Кресло на втором этаже было спасено из рук дворников в центре Петербурга, перекрашено и перетянуто брезентовой тканью. Под ним разместился турецкий килим 1970-х гг. Вместо прикроватной тумбы используется оцинкованное ведро с крышкой, привезенное из Америки. Среди предметов быта можно выделить старинную датскую хлеборезку, английские кухонные весы, французские банки для сыпучих продуктов, финские тарелки из фарфора, скандинавские столовые приборы. Стулья тоже винтажные, разные по форме и происхождению: два экземпляра с кожаными сиденьями — европейское mid-century, а деревянные чешские куплены за очень небольшие деньги в московском интернет-магазине. В основании дивана — три выдвижных ящика с крышками, в них хранятся постельное белье, документы и мелкая техника. В выдвинутом положении ящики используются как придиванные столики. Открытая проводка проста в монтаже и выглядит стильно.

Цитирование статьи, картинки - фото скриншот - Rambler News Service.
Иллюстрация к статье - Яндекс. Картинки.
Есть вопросы. Напишите нам.
Общие правила  поведения на сайте.



«oz90.ru»