Интерьер
  • Контакты Dizayn

Ия Турабелидзе: просторная и лаконичная квартира в Киеве - «Интерьер»

19-11-2018, 16:00   Richardson   Нашли ошибку?    Мы в Яндекс.Дзен


Ия Турабелидзе: просторная и лаконичная квартира в Киеве - «Интерьер»

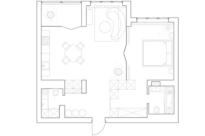
Владелица квартиры 70 кв. метров в Киеве мечтала начать жизнь с чистого листа. Интерьер по проекту Ии Турабелидзе стал достойным ответом на это пожелание. Ремонт начался с уничтожения старой планировки и сноса перегородок, а завершился созданием светлого и логичного пространства.


Дизайнер Ия Турабелидзе хотела выиграть как можно больше свободного места, не загромождать стенами или крупными предметами мебели. Дизайнер максимально тщательно подошла к выбору отделки. Все материалы подчиняются общей цели: создать иллюзию простора.


nonehttps://www.instagram.com/iyaturabelidze/?hl=ruhttps://www.facebook.com/iyaturabelidze.studio/https://iyaturabelidze.com/


Интерьер предназначен для женщины, которая привыкла быть в центре всеобщего внимания и при этом любит проводить время дома в одиночестве. Квартира воплощает этот переход от активной повседневной жизни к спокойным часам отдыха. С другой стороны, функционально в квартире должно быть комфортно жить одному и принимать большие шумные компании друзей.





Приватную зону спальни отделяются от кухни и гостиной легкие стеклянные перегородки. В коридоре оборудована гардеробная система с потайными дверьми. Зона прихожей и кухни оформлена в практичном сером оттенке с имитацией бетона. Белые плинтусы выкрашены в один цвет со стенами — все эти приемы визуально расширяют пространство.



Больше света и простора в интерьер привносят большие панорамные окна, из которых открывается вид на живописные зеленые холмы Киева. С панорамой за окном перекликаются крупные растения в интерьере.




Концептуально интерьер получился простой, но насыщенный, как бокал красного вина. Глубокие оттенки фасадов кухонного гарнитура и португальской плитки в ванной комнате подобраны не случайно. Хозяйка является большой поклонницей вина и его цветовой палитры.



Обстановку условно можно поделить на две группы. Скандинавская мебель, которая включает стулья Beetle от Gubi по дизайну дуэта GamFratesi, диван марки Bolia, столики Menu и настенный светильник Bellevue в спальне по дизайну великого датского архитектора Арне Якобсена (объект 1929 года переиздан компанией &Tradition).



Вторая группа представляет собой предметы местного производства: кровать, банкетка в холле, обеденный стол (на заказ).










Владелица квартиры 70 кв. метров в Киеве мечтала начать жизнь с чистого листа. Интерьер по проекту Ии Турабелидзе стал достойным ответом на это пожелание. Ремонт начался с уничтожения старой планировки и сноса перегородок, а завершился созданием светлого и логичного пространства. Дизайнер Ия Турабелидзе хотела выиграть как можно больше свободного места, не загромождать стенами или крупными предметами мебели. Дизайнер максимально тщательно подошла к выбору отделки. Все материалы подчиняются общей цели: создать иллюзию простора. nonehttps://www.instagram.com/iyaturabelidze/?hl=ruhttps://www.facebook.com/iyaturabelidze.studio/https://iyaturabelidze.com/ Интерьер предназначен для женщины, которая привыкла быть в центре всеобщего внимания и при этом любит проводить время дома в одиночестве. Квартира воплощает этот переход от активной повседневной жизни к спокойным часам отдыха. С другой стороны, функционально в квартире должно быть комфортно жить одному и принимать большие шумные компании друзей. Приватную зону спальни отделяются от кухни и гостиной легкие стеклянные перегородки. В коридоре оборудована гардеробная система с потайными дверьми. Зона прихожей и кухни оформлена в практичном сером оттенке с имитацией бетона. Белые плинтусы выкрашены в один цвет со стенами — все эти приемы визуально расширяют пространство. Больше света и простора в интерьер привносят большие панорамные окна, из которых открывается вид на живописные зеленые холмы Киева. С панорамой за окном перекликаются крупные растения в интерьере. Концептуально интерьер получился простой, но насыщенный, как бокал красного вина. Глубокие оттенки фасадов кухонного гарнитура и португальской плитки в ванной комнате подобраны не случайно. Хозяйка является большой поклонницей вина и его цветовой палитры. Обстановку условно можно поделить на две группы. Скандинавская мебель, которая включает стулья Beetle от Gubi по дизайну дуэта GamFratesi, диван марки Bolia, столики Menu и настенный светильник Bellevue в спальне по дизайну великого датского архитектора Арне Якобсена (объект 1929 года переиздан компанией

Цитирование статьи, картинки - фото скриншот - Rambler News Service.
Иллюстрация к статье - Яндекс. Картинки.
Есть вопросы. Напишите нам.
Общие правила  поведения на сайте.



«oz90.ru»