Интерьер
  • Контакты Dizayn

Bogdanova Bureau: лесной дом под Киевом - «Интерьер»

22-12-2018, 04:56   Кондрат   Нашли ошибку?    Мы в Яндекс.Дзен


Bogdanova Bureau: лесной дом под Киевом - «Интерьер»

Ольга Богданова, Олег Матющенко и Елена Брянцева, студия Bogdanova Bureau (2B.group), оформили интерьер дома площадью 630 кв. метров под Киевом для молодой семейной пары и их детей. В основе проекта Good Life — лес и город, природа и технологии.


Первоначальная планировку дома изменили — добавили дополнительные функциональные помещения, но в то же время сохранили пространства с двойным освещением и высоту потолков. Главное помещение в доме — двусветная гостиная с окнами в пол и высокими потолками. Огромный диван Minotti с нестандартной глубиной 1,8 метра стал центром притяжения, который по вечерам собирает вместе всех членов семьи.









nonenonehttps://www.facebook.com/Bogdanova-Bureau-938697896331258https://bogdanovabureau.com/

Кухню дизайнеры разработали специально для этого проекта в сотрудничестве с компанией Blanc Kitchen. Теперь модель запущена в серийное производство. Ее особенность в рабочей зоне, скрытой с помощью подъемных механизмов. Все функциональные элементы и бытовая техника умещается на дополнительных 35 см.






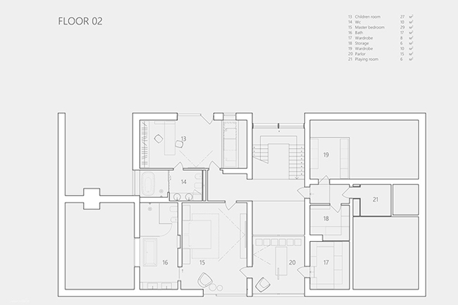
При перепланировке увеличилось число гардеробных: при входе для верхней одежды, дополнительная на втором этаже, над топочной. Вместо одной из спален на первом этаже появилась гардеробная для хозяйки дома: самая просторная из тех, что когда-либо проектировали дизайнеры — 32 кв. метра. Еще одна спальня превратилась в детскую для маленькой девочки, появления которой как раз ожидали заказчики. Обустроили и гостевую комнату — ее достроили под бывшей лоджией второго этажа.




На втором этаже расположена хозяйская спальня с собственной ванной комнатой, небольшим шкафом вместо лоджии и мужским гардеробом. Чтобы ванная стала более светлой и дружелюбной, в глухой стене прорезали окно — оно выходит в двусветную гостиную.







Рядом детская комната для двух мальчиков. Дизайнеры признаются, что это одна из их любимых задач, которой всегда уделяется дополнительное внимание. Для отдыха и активных игр построили «домики» и лестницы. Совместно с брендом Thе O разработали рисунки, которые украсили интерьер детской ванной.



Поскольку дом расположен в лесу, в интерьер решили использовать природные цвета и фактуры, в первую очередь, массив древесины и шпон. Сделать пространство светлее помогает большое количество белого мрамора. Яркие акценты расставили с помощью текстиля и арт-объектов. Так, в прихожей гостей встречает стайка хромированных птиц, изготовленных скульптором Алексеем Золотаревым по эскизам авторов проекта. Светильник на лестнице — работа Василия Грубляка.
























Ольга Богданова, Олег Матющенко и Елена Брянцева, студия Bogdanova Bureau (2B.group), оформили интерьер дома площадью 630 кв. метров под Киевом для молодой семейной пары и их детей. В основе проекта Good Life — лес и город, природа и технологии. Первоначальная планировку дома изменили — добавили дополнительные функциональные помещения, но в то же время сохранили пространства с двойным освещением и высоту потолков. Главное помещение в доме — двусветная гостиная с окнами в пол и высокими потолками. Огромный диван Minotti с нестандартной глубиной 1,8 метра стал центром притяжения, который по вечерам собирает вместе всех членов семьи. nonenonehttps://www.facebook.com/Bogdanova-Bureau-938697896331258https://bogdanovabureau.com/ Кухню дизайнеры разработали специально для этого проекта в сотрудничестве с компанией Blanc Kitchen. Теперь модель запущена в серийное производство. Ее особенность в рабочей зоне, скрытой с помощью подъемных механизмов. Все функциональные элементы и бытовая техника умещается на дополнительных 35 см. При перепланировке увеличилось число гардеробных: при входе для верхней одежды, дополнительная на втором этаже, над топочной. Вместо одной из спален на первом этаже появилась гардеробная для хозяйки дома: самая просторная из тех, что когда-либо проектировали дизайнеры — 32 кв. метра. Еще одна спальня превратилась в детскую для маленькой девочки, появления которой как раз ожидали заказчики. Обустроили и гостевую комнату — ее достроили под бывшей лоджией второго этажа. На втором этаже расположена хозяйская спальня с собственной ванной комнатой, небольшим шкафом вместо лоджии и мужским гардеробом. Чтобы ванная стала более светлой и дружелюбной, в глухой стене прорезали окно — оно выходит в двусветную гостиную. Рядом детская комната для двух мальчиков. Дизайнеры признаются, что это одна из их любимых задач, которой всегда уделяется дополнительное внимание. Для отдыха и активных игр построили «домики» и лестницы. Совместно с брендом Thе O разработали рисунки, которые украсили интерьер детской ванной. Поскольку дом расположен в лесу, в интерьер решили использовать природные цвета и фактуры, в первую очередь, массив древесины и шпон. Сделать пространство светлее помогает большое количество белого мрамора. Яркие акценты расставили с помощью текстиля и арт-объектов. Так, в прихожей гостей встречает стайка хромированных птиц, изготовленных скульптором Алексеем Золотаревым по эскизам авторов проекта. Светильник на лестнице — работа Василия Грубляка.

Цитирование статьи, картинки - фото скриншот - Rambler News Service.
Иллюстрация к статье - Яндекс. Картинки.
Есть вопросы. Напишите нам.
Общие правила  поведения на сайте.



«oz90.ru»