Интерьер
  • Контакты Dizayn

Проект Oh, boy!: квартира с характером - «Интерьер»

11-01-2019, 09:04   Лилия   Нашли ошибку?    Мы в Яндекс.Дзен


Проект Oh, boy!: квартира с характером - «Интерьер»

Заказчик, зрелый мужчина, приобрел квартиру в Москве на Ходынском поле. Он хотел получить интерьер с мужским характером и обратился к дизайн-сервису Oh, boy!, который как раз специализируется на пространствах такого типа.


Над проектом 70 кв. метров работали дизайнер Диана Мальцева и архитектор Сергей Шапин. Квартира предназначалась для одиночного проживания.


nonehttps://www.instagram.com/oh.boy.interiors/?hl=ruhttps://www.facebook.com/diana.maltseva.moscowwww.ohboy.online

Заказчик, музыкальный продюсер, любит путешествовать и увлекается фотографией (некоторые его работы украсили интерьер). Перед дизайнером стояла задача создать мужской интерьер, но с уклоном не в агрессивную юношескую брутальность, а зрелость, представительность и лаконичность.




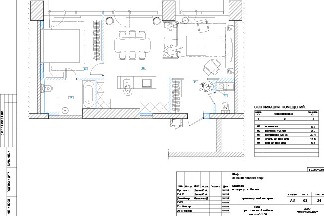
Квартира в новостройке имела свободную планировку. Главным недостатком стали окна на одну сторону, достоинством — невероятная для московских квартир высота потолков — 4 метра! Однако потолки представляли собой и серьезный минус в небольших помещениях: в санузле и прихожей высоту пришлось занизить, чтобы избежать эффект колодца.



Изначально заказчик хотел получить две изолированные спальни. Панорамное окно с редкими импостами, куда можно было бы вписать межкомнатные перегородки, не позволило реализовать это решение, т.к. помещения получались слишком маленькими и неуютными.



В результате гостевой спальней пожертвовали в пользу объединенной гостиной-кухни-столовой. Просторная общественная зона понравилась владельцу квартиры, т.к. у него часто бывают гости, для которых он с удовольствием готовит.



Стилестические предпочтения, пожелания по материалам заказчик сформировал для себя еще до встречи с дизайнером. Отделочные материалы послужили лаконичным фоном для предметов мебели и аксессуаров, поддерживающих концепцию.



Двухцветная покраска стен в гостиной стала возможна за счет высоких потолков: нижний оттенок добавляет уюта помещению и соотносится с колористическим решением спальни. Также в интерьере использовали керамогранит с имитацией натурального камня, мозаику, массив древесины, натуральный шпон, дубовую паркетную доску.



Выбранная цветовая палитра и мебель подчеркивают сдержанный характер квартиры. За основу взяли различные оттенки серого, на кухне появился металлический стол-верстак, накладная раковина в главной ванной выполнена из мрамора с необработанными краями, светильники над обеденным столом реализованы из бетона, прикроватные тумбы и шкафы оформлены кожей с контрастной прострочкой. За изголовьем кровати расположили акцентное панно из керамогранита с 3D-эффектом, по краям которого оборудована вечерняя подсветка.



Дизайнеру необходимо было предусмотреть достаточно места для хранения. От выделенной гардеробной отказались в пользу двух объемных шкафов в прихожей и спальне. Над главной ванной комнатой расположили дополнительную кладовку для сезонных вещей: в потолке предусмотрен люк с опускающейся лестницей — высота помещения составила всего 1,2 метра.



Постановка владельцем четких задач стало залогом эффективного сотрудничества с дизайнером и архитектором: «Получилось так, что наш заказчик уже на начальном этапе сделал большой вклад в финальный проект, предоставив подробный бриф. И остался очень доволен полученным результатом», — делятся впечатлениями Диана и Сергей.









Заказчик, зрелый мужчина, приобрел квартиру в Москве на Ходынском поле. Он хотел получить интерьер с мужским характером и обратился к дизайн-сервису Oh, boy!, который как раз специализируется на пространствах такого типа. Над проектом 70 кв. метров работали дизайнер Диана Мальцева и архитектор Сергей Шапин. Квартира предназначалась для одиночного проживания. nonehttps://www.instagram.com/oh.boy.interiors/?hl=ruhttps://www.facebook.com/diana.maltseva.moscowwww.ohboy.online Заказчик, музыкальный продюсер, любит путешествовать и увлекается фотографией (некоторые его работы украсили интерьер). Перед дизайнером стояла задача создать мужской интерьер, но с уклоном не в агрессивную юношескую брутальность, а зрелость, представительность и лаконичность. Квартира в новостройке имела свободную планировку. Главным недостатком стали окна на одну сторону, достоинством — невероятная для московских квартир высота потолков — 4 метра! Однако потолки представляли собой и серьезный минус в небольших помещениях: в санузле и прихожей высоту пришлось занизить, чтобы избежать эффект колодца. Изначально заказчик хотел получить две изолированные спальни. Панорамное окно с редкими импостами, куда можно было бы вписать межкомнатные перегородки, не позволило реализовать это решение, т.к. помещения получались слишком маленькими и неуютными. В результате гостевой спальней пожертвовали в пользу объединенной гостиной-кухни-столовой. Просторная общественная зона понравилась владельцу квартиры, т.к. у него часто бывают гости, для которых он с удовольствием готовит. Стилестические предпочтения, пожелания по материалам заказчик сформировал для себя еще до встречи с дизайнером. Отделочные материалы послужили лаконичным фоном для предметов мебели и аксессуаров, поддерживающих концепцию. Двухцветная покраска стен в гостиной стала возможна за счет высоких потолков: нижний оттенок добавляет уюта помещению и соотносится с колористическим решением спальни. Также в интерьере использовали керамогранит с имитацией натурального камня, мозаику, массив древесины, натуральный шпон, дубовую паркетную доску. Выбранная цветовая палитра и мебель подчеркивают сдержанный характер квартиры. За основу взяли различные оттенки серого, на кухне появился металлический стол-верстак, накладная раковина в главной ванной выполнена из мрамора с необработанными краями, светильники над обеденным столом реализованы из бетона, прикроватные тумбы и шкафы оформлены кожей с контрастной прострочкой. За изголовьем кровати расположили акцентное панно из керамогранита с 3D-эффектом, по краям которого оборудована вечерняя подсветка. Дизайнеру необходимо было предусмотреть достаточно места для хранения. От выделенной гардеробной отказались в пользу двух объемных шкафов в прихожей и спальне. Над главной ванной комнатой расположили дополнительную кладовку для сезонных вещей: в потолке предусмотрен люк с опускающейся лестницей — высота помещения составила всего 1,2 метра. Постановка владельцем четких задач стало залогом эффективного сотрудничества с дизайнером и архитектором: «Получилось так, что наш заказчик уже на начальном этапе сделал большой вклад в финальный проект, предоставив подробный бриф. И остался очень доволен полученным результатом», — делятся впечатлениями Диана и Сергей.

Цитирование статьи, картинки - фото скриншот - Rambler News Service.
Иллюстрация к статье - Яндекс. Картинки.
Есть вопросы. Напишите нам.
Общие правила  поведения на сайте.



«oz90.ru»