Интерьер
  • Контакты Dizayn

Бюро MODUL-ab: квартира для студента - «Интерьер»

23-03-2019, 15:00   Turner   Нашли ошибку?    Мы в Яндекс.Дзен


Бюро MODUL-ab: квартира для студента - «Интерьер»

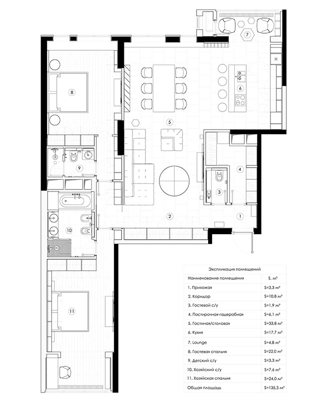
Архитекторы бюро MODUL-ab спроектировали на Юго-Западе Москвы квартиру для студента. Пространство 135 кв. метров расположено на 17 этаже новостройки. Семья заказчика уже не в первый раз обратилась к бюро MODUL-ab, а потому достигнуть взаимопонимания по проекту было не сложно. Главной задачей архитекторов было разграничить приватную и общественную зоны.


Пространство гостиной-столовой-кухни и объединенной лоджии считываются как последовательность зон, каждая со своим насыщением. Приватный блок отделили раздвижной перегородкой и сформировали две спальни с ванными комнатами, просторной гардеробной с постирочной зоной. Еще один санузел спроектировали рядом со входом.



Вид из гостиной на столовую. Плитка, ABK INTERNO.

«Мы предпочитаем натуральные спокойные оттенки с вкраплениями акцентов, как красный пуф в гостиной или стены глубокого синего цвета в главной спальне. Яркие элементы добавляют уюта на фоне общей сдержанной концепции. Гостевая спальня решена более нейтрально в светло-серых тонах», — рассказывают авторы проекта.


Гостиная. Светильники, Centsvet. Краска, Little Greene. Картина, Анастасия Ларионова.





«Среди отделочных материалов можно выделить окисленную медь (панно в гостиной и столик на лоджии), микробентон, керамогранит, натуральную древесину и искусственную замшу.




Смеситель, Hansgrohe.

Инженерная доска, «Олимп Паркет». Выключатели, Berker.

Практически везде использовались индивидуальные технические решения, например, опускающийся экран проектора в гостиной для домашнего кинотеатра. Также интересно сделано освещение квартиры: спроектировано большое количество сценариев для конкретных зон с разным типом светильников и диммирования.




Главная спальня. Инженерная доска, «Олимп Паркет». Столярные изделия, MODUL.

Большая часть мебели была изготовлена бюро MODUL-ab специально для проекта. Также мы остановили выбор на предметах в современном стиле итальянских марок — B&B Italia, BoConcept, Novamobili.


Кухня. Плитка, ABK INTERNO. Светильники, Centsvet. Краска, Little Greene.
nonehttps://www.instagram.com/modul_architectural_bureau/https://www.facebook.com/MODULarchitecturalbureauhttp://modul-ab.com/

Все элементы воедино связала картина в гостиной. Она же и задает тон всему интерьеру. Из-за внушительных габаритов арт-объект не помещался в лифты, не вписывался в лестничные пролеты. Команда из нескольких человек поднимала картину на вытянутых руках вдоль шахты пожарной лестницы на 17 этаж. Можно представить какой степенью физического и эмоционального напряжения сопровождался процесс».


Главная спальня. Инженерная доска, «Олимп Паркет». Столярные изделия, MODUL.

Авторы проекта: Родион Праздников, Жанна Денишева, Катерина Назаренко, Сергей Твердохлебов.









Плитка, ABK INTERNO.
Смесители, Hansgrohe.



Сантехника, Villeroy & Boch. Смесители, Hansgrohe.














Архитекторы бюро MODUL-ab спроектировали на Юго-Западе Москвы квартиру для студента. Пространство 135 кв. метров расположено на 17 этаже новостройки. Семья заказчика уже не в первый раз обратилась к бюро MODUL-ab, а потому достигнуть взаимопонимания по проекту было не сложно. Главной задачей архитекторов было разграничить приватную и общественную зоны. Пространство гостиной-столовой-кухни и объединенной лоджии считываются как последовательность зон, каждая со своим насыщением. Приватный блок отделили раздвижной перегородкой и сформировали две спальни с ванными комнатами, просторной гардеробной с постирочной зоной. Еще один санузел спроектировали рядом со входом. Вид из гостиной на столовую. Плитка, ABK INTERNO. «Мы предпочитаем натуральные спокойные оттенки с вкраплениями акцентов, как красный пуф в гостиной или стены глубокого синего цвета в главной спальне. Яркие элементы добавляют уюта на фоне общей сдержанной концепции. Гостевая спальня решена более нейтрально в светло-серых тонах», — рассказывают авторы проекта. Гостиная. Светильники, Centsvet. Краска, Little Greene. Картина, Анастасия Ларионова. «Среди отделочных материалов можно выделить окисленную медь (панно в гостиной и столик на лоджии), микробентон, керамогранит, натуральную древесину и искусственную замшу. Смеситель, Hansgrohe. Инженерная доска, «Олимп Паркет». Выключатели, Berker. Практически везде использовались индивидуальные технические решения, например, опускающийся экран проектора в гостиной для домашнего кинотеатра. Также интересно сделано освещение квартиры: спроектировано большое количество сценариев для конкретных зон с разным типом светильников и диммирования. Главная спальня. Инженерная доска, «Олимп Паркет». Столярные изделия, MODUL. Большая часть мебели была изготовлена бюро MODUL-ab специально для проекта. Также мы остановили выбор на предметах в современном стиле итальянских марок — B

Цитирование статьи, картинки - фото скриншот - Rambler News Service.
Иллюстрация к статье - Яндекс. Картинки.
Есть вопросы. Напишите нам.
Общие правила  поведения на сайте.



«oz90.ru»