Интерьер
  • Контакты Dizayn

Иван Качалов: семейная квартира архитектора - «Интерьер»

25-07-2019, 08:56   Христина   Нашли ошибку?    Мы в Яндекс.Дзен


Иван Качалов: семейная квартира архитектора - «Интерьер»

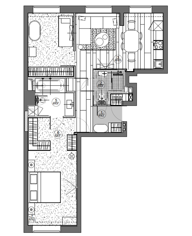
Архитектор Иван Качалов спроектировал квартиру в новом доме — заказчиком на этот раз выступил он сам. Площадь квартиры 70 кв. метров — не так уж много, но Иван продумал каждый сантиметр.


Самые интересные интерьеры — те, что архитекторы и дизайнеры создают для себя. Во-первых, здесь они не зависят от прихотей чужого вкуса, во-вторых, часто рассматривают собственные дома и квартиры как поле для экспериментов — чтобы потом с уверенностью предлагать те или иные решения своим клиентам.



nonehttps://www.instagram.com/kachalov_ivan/?hl=ruhttps://www.facebook.com/Архстрой-402853183527521http://archstroi.ru/

Получившееся пространство, по убеждению архитектора, не уступает по эргономичности 150-метровым квартирам. В семье подрастают две маленькие дочери — внимательный отец уделил первостепенной внимание их безопасности.



Квартира имеет вытянутую асимметричную форму, но поскольку все углы прямые, ее удалось разделить на комнаты комфортной правильной формы. В одном крыле расположили опен спейс гостиной-кухни-столовой, к которому примыкает детская комната, в другом — апартаменты хозяев, включающие спальню, ванную и гардеробную.




Окна выходят на две стороны. Из-за большой глубины квартиры в середине образовалась зона, куда попадает мало дневного света. Архитектор спланировал пространство так, чтобы здесь оказались санузлы, гардеробные, прихожая.






Архитектор приложил усилия, чтобы квартира казалась больше и просторнее. Активно использовал зеркала. Они создают игру отражений в гостиной и маскируют дверь в детскую, визуально увеличивают спальню, раздвигают коридор. Отделка фасадов кухни Poliform повторена на примыкающих стеновых панелях — этот прием также расширяет пространство.






Интерьер выдержан в природой палитре — коричневых, сероватых, оливковых тонах. Исключение сделали для детской: девочки обитают в розовой комнате с фламинго на обоях. Материалы преобладают натуральные: на стенах панели в шпоне американского ореха, на полу массивная дубовая доска.












Особое внимание архитектор уделил инженерии, применив нестандартные решения. Так, для окон он взял греющее стекло: оно не выпускает тепло зимой и предохраняет от жары летом, терморегуляторы управляют нагревом в автоматическом режиме. Магнитные плинтусы позволяют легко добраться до проводов и коммуникаций. Вместо радиаторов под окнами установлены экономящие место конвекторы, система кондиционирования встроена в отделанную зеркалом стену.



































Архитектор Иван Качалов спроектировал квартиру в новом доме — заказчиком на этот раз выступил он сам. Площадь квартиры 70 кв. метров — не так уж много, но Иван продумал каждый сантиметр. Самые интересные интерьеры — те, что архитекторы и дизайнеры создают для себя. Во-первых, здесь они не зависят от прихотей чужого вкуса, во-вторых, часто рассматривают собственные дома и квартиры как поле для экспериментов — чтобы потом с уверенностью предлагать те или иные решения своим клиентам. nonehttps://www.instagram.com/kachalov_ivan/?hl=ruhttps://www.facebook.com/Архстрой-402853183527521http://archstroi.ru/ Получившееся пространство, по убеждению архитектора, не уступает по эргономичности 150-метровым квартирам. В семье подрастают две маленькие дочери — внимательный отец уделил первостепенной внимание их безопасности. Квартира имеет вытянутую асимметричную форму, но поскольку все углы прямые, ее удалось разделить на комнаты комфортной правильной формы. В одном крыле расположили опен спейс гостиной-кухни-столовой, к которому примыкает детская комната, в другом — апартаменты хозяев, включающие спальню, ванную и гардеробную. Окна выходят на две стороны. Из-за большой глубины квартиры в середине образовалась зона, куда попадает мало дневного света. Архитектор спланировал пространство так, чтобы здесь оказались санузлы, гардеробные, прихожая. Архитектор приложил усилия, чтобы квартира казалась больше и просторнее. Активно использовал зеркала. Они создают игру отражений в гостиной и маскируют дверь в детскую, визуально увеличивают спальню, раздвигают коридор. Отделка фасадов кухни Poliform повторена на примыкающих стеновых панелях — этот прием также расширяет пространство. Интерьер выдержан в природой палитре — коричневых, сероватых, оливковых тонах. Исключение сделали для детской: девочки обитают в розовой комнате с фламинго на обоях. Материалы преобладают натуральные: на стенах панели в шпоне американского ореха, на полу массивная дубовая доска. Особое внимание архитектор уделил инженерии, применив нестандартные решения. Так, для окон он взял греющее стекло: оно не выпускает тепло зимой и предохраняет от жары летом, терморегуляторы управляют нагревом в автоматическом режиме. Магнитные плинтусы позволяют легко добраться до проводов и коммуникаций. Вместо радиаторов под окнами установлены экономящие место конвекторы, система кондиционирования встроена в отделанную зеркалом стену.

Цитирование статьи, картинки - фото скриншот - Rambler News Service.
Иллюстрация к статье - Яндекс. Картинки.
Есть вопросы. Напишите нам.
Общие правила  поведения на сайте.



«oz90.ru»