Интерьер
  • Контакты Dizayn

Sivak+Partners: брутальный барбершоп в Одессе - «Интерьер»

24-08-2019, 08:19   Виктор   Нашли ошибку?    Мы в Яндекс.Дзен


Sivak+Partners: брутальный барбершоп в Одессе - «Интерьер»

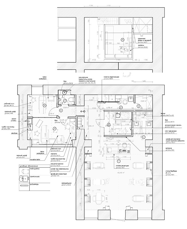
Дизайнеры студии Sivak+Partners оформили пространство барбершопа KULT в исторической части Одессы, неподалеку от Дерибасовской. Авторы проекта: Дмитрий Сивак и Иванна Гайдаржи.


Дизайнерам досталось старое здание, от которого сохранился лишь полуразвалившийся фасад. Это было пространство 100 кв. метров с деревянными перекрытиями, на которые нельзя было класть ничего тяжелого, исключалась даже плитка.



Перед дизайнерами стояла задача создать интерьер для широкой целевой аудитории, но при этом с выраженным характером. Заказчик хотел непохожее на аналогичные места пространство, но притом достаточно брутальное и гламурное одновременно.



«Мы не хотели делать очередной барбершоп в лофте с потрепанным кирпичом, фотографиями хипстеров и дизайнерскими клише», — рассказывают о проекте Дмитрий и Иванна. Необходимо было разместить рабочие места для мастеров, а также заказчик хотел добавить тату-салон, зону педикюра для мужчин и женщин, а также пространство для отдыха.



«У нас были очень сжатые сроки — всего полтора месяца на весь проект. Мы выбирали самые простые решения, не было времени на сложные дизайнерские эксперименты».











Дизайнеры сосредоточились на материалах, выбрав достаточное смелое сочетание мрамора, нержавеющей стали и бетона. Стены выровняли и покрыли декоративной штукатуркой, разработанной специально для нас. Зону отдыха оборудовали на антресоли — здесь разместили диваны и небольшое техническое помещение.



Вся мебель, за исключением профессиональных кресел, была создана по эскизам авторов проекта. «Любой дизайнер, проектировавший салон красоты знает, какой бардак творится в в каталогах специализированной мебели».



nonehttps://www.instagram.com/s_p_studio/https://www.facebook.com/dmitriy.sivakhttps://sivak-partners.com/

«В итоге все остались очень довольны результатом, но когда заказчик начинает говорить о франшизе, все нервно усмехаются и бледнеют. В условиях таких сжатых сроков у дизайнера нет права на ошибку, нет времени сомневаться в себе. Мы знали, что через несколько недель на работу должны были выйти люди, которые готовились к переездам в своих городах, и чтобы успеть все во время нашим строителям подчас приходилось ночевать на объекте».














Дизайнеры студии Sivak Partners оформили пространство барбершопа KULT в исторической части Одессы, неподалеку от Дерибасовской. Авторы проекта: Дмитрий Сивак и Иванна Гайдаржи. Дизайнерам досталось старое здание, от которого сохранился лишь полуразвалившийся фасад. Это было пространство 100 кв. метров с деревянными перекрытиями, на которые нельзя было класть ничего тяжелого, исключалась даже плитка. Перед дизайнерами стояла задача создать интерьер для широкой целевой аудитории, но при этом с выраженным характером. Заказчик хотел непохожее на аналогичные места пространство, но притом достаточно брутальное и гламурное одновременно. «Мы не хотели делать очередной барбершоп в лофте с потрепанным кирпичом, фотографиями хипстеров и дизайнерскими клише», — рассказывают о проекте Дмитрий и Иванна. Необходимо было разместить рабочие места для мастеров, а также заказчик хотел добавить тату-салон, зону педикюра для мужчин и женщин, а также пространство для отдыха. «У нас были очень сжатые сроки — всего полтора месяца на весь проект. Мы выбирали самые простые решения, не было времени на сложные дизайнерские эксперименты». Дизайнеры сосредоточились на материалах, выбрав достаточное смелое сочетание мрамора, нержавеющей стали и бетона. Стены выровняли и покрыли декоративной штукатуркой, разработанной специально для нас. Зону отдыха оборудовали на антресоли — здесь разместили диваны и небольшое техническое помещение. Вся мебель, за исключением профессиональных кресел, была создана по эскизам авторов проекта. «Любой дизайнер, проектировавший салон красоты знает, какой бардак творится в в каталогах специализированной мебели». nonehttps://www.instagram.com/s_p_studio/https://www.facebook.com/dmitriy.sivakhttps://sivak-partners.com/ «В итоге все остались очень довольны результатом, но когда заказчик начинает говорить о франшизе, все нервно усмехаются и бледнеют. В условиях таких сжатых сроков у дизайнера нет права на ошибку, нет времени сомневаться в себе. Мы знали, что через несколько недель на работу должны были выйти люди, которые готовились к переездам в своих городах, и чтобы успеть все во время нашим строителям подчас приходилось ночевать на объекте».

Цитирование статьи, картинки - фото скриншот - Rambler News Service.
Иллюстрация к статье - Яндекс. Картинки.
Есть вопросы. Напишите нам.
Общие правила  поведения на сайте.



«oz90.ru»