Интерьер
  • Контакты Dizayn

V.Concept Design Studio: квартира для ценителя хорошего вина - «Интерьер»

9-03-2019, 09:03   Авдей   Нашли ошибку?    Мы в Яндекс.Дзен


V.Concept Design Studio: квартира для ценителя хорошего вина - «Интерьер»




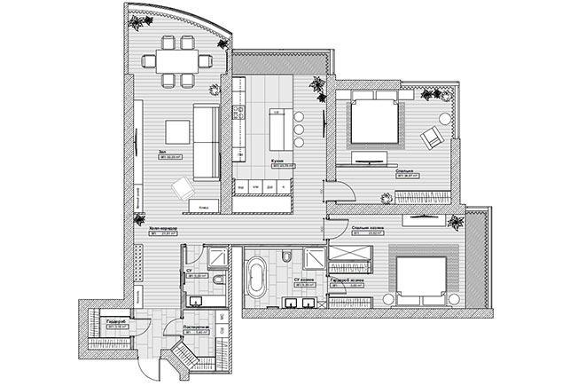
Дизайнер Виктория Витковская и декоратор Анастасия Соколова (V. Concept Design Studio) оформили квартиру площадью 153 кв. метра в Киеве для любителя вин. Интерьер стал полным отражением личности хозяина — консервативные взгляды, семейные традиции, но в то же время мужественность и яркий темперамент.


О проекте рассказывают Виктория и Анастасия. «Достоинством исходника стали высокие потолки (3 метра после отделки), большие окна и хорошая конфигурация. Из недостатков можно было отметить много несущих конструкций, в результате чего перепланировка была сведена к минимуму.



Мы решились на смешение разных стилистических элементов, что позволило максимально раскрыть характер заказчика и создать достойный «мужской» интерьер. К неоклассическому стилю добавили немного брутальности в духе лофта.



Гостиная. Кресло, Ditre. Аксессуары на ТВ тумбе, Natuzzi. Корпусная мебель выполнена на заказ.

Диван, журнальный столик, Ditre. Обеденный стулья, Gubi.

Стены в гостиной оформили с фактурой под бетон и дополнили лепниной ручной работы. Поддерживают атмосферу античности состаренное зеркало и винтажный комод в гостиной. В отделке также использовали паркет нескольких видов: цвета палубной доски и ели для визуального зонирования.



Спальня. Кровать, Barzaghi salotti. Тумбочка, Mibilform. Настольный светильник, Artemide.

Спальня. Кровать, прикроватная тумба, Mobilform. Люстра, Quasar. Декор, Calligaris.

Владелец хотел практически монохромный интерьер, но с яркими аксессуарами, которые заряжали бы его энергией. Пространство в серых и белых полутонах разбавлено цветовыми акцентами: гранатово-винные стены в прихожей, яркий декор и текстиль.


Кухня. Остров и встроенный модуль, Astra. Гарнитур, Cesar. Варочная панель, DEKTON. Споты, Doxis. Встроенный свеильник, Xal.
Чаша для фруктов, Menu. Вазы, Calligaris. Барная стояка выполнена из мрамора.
Плитка, Fiandre.



Клиент — большой поклонник современных технологий, поэтому в квартире все автоматизировано: от регулировки штор на пульте управления до подогрева полов.





nonehttps://www.instagram.com/v_concept_studio/https://www.facebook.com/profile.php?id=100005219530306http://www.v-vitkovskaya.com/
nonehttps://www.instagram.com/v_concept_studio/https://www.facebook.com/nastia.sokolovaahttp://www.v-vitkovskaya.com/

Хозяин квартиры ни разу не зашел на стройку: он видел только голые стены и визуализацию, хотя жил всего на этаж выше объекта. Эффект неожиданности был достигнут в полной мере, т.к. реализация была близка к визуализации с точностью до 95%.


Корпусная мебель выполнена на заказ.
Потолочные светильники, Xal.


Комод в изножье кровати, Mobilform. Кресло, Ditre.



Спальня. Кровать, прикроватная тумба, Mobilform. Люстра, Quasar. Декор, Calligaris.
Журнальный столик у кресла, Ditre.



Плитка, Lafaenza.



В ходе проекта было много шуток на тему вина. Любимый сорт заказчика – красное вино пино нуар. Мы долго не могли утвердить цвет гранатовой стены в прихожей и уже стали думать, что проще добавить в краску пино нуар, чтобы клиенту наверняка все понравилось».



Плитка, Lafaenza.








Дизайнер Виктория Витковская и декоратор Анастасия Соколова (V. Concept Design Studio) оформили квартиру площадью 153 кв. метра в Киеве для любителя вин. Интерьер стал полным отражением личности хозяина — консервативные взгляды, семейные традиции, но в то же время мужественность и яркий темперамент. О проекте рассказывают Виктория и Анастасия. «Достоинством исходника стали высокие потолки (3 метра после отделки), большие окна и хорошая конфигурация. Из недостатков можно было отметить много несущих конструкций, в результате чего перепланировка была сведена к минимуму. Мы решились на смешение разных стилистических элементов, что позволило максимально раскрыть характер заказчика и создать достойный «мужской» интерьер. К неоклассическому стилю добавили немного брутальности в духе лофта. Гостиная. Кресло, Ditre. Аксессуары на ТВ тумбе, Natuzzi. Корпусная мебель выполнена на заказ. Диван, журнальный столик, Ditre. Обеденный стулья, Gubi. Стены в гостиной оформили с фактурой под бетон и дополнили лепниной ручной работы. Поддерживают атмосферу античности состаренное зеркало и винтажный комод в гостиной. В отделке также использовали паркет нескольких видов: цвета палубной доски и ели для визуального зонирования. Спальня. Кровать, Barzaghi salotti. Тумбочка, Mibilform. Настольный светильник, Artemide. Спальня. Кровать, прикроватная тумба, Mobilform. Люстра, Quasar. Декор, Calligaris. Владелец хотел практически монохромный интерьер, но с яркими аксессуарами, которые заряжали бы его энергией. Пространство в серых и белых полутонах разбавлено цветовыми акцентами: гранатово-винные стены в прихожей, яркий декор и текстиль. Кухня. Остров и встроенный модуль, Astra. Гарнитур, Cesar. Варочная панель, DEKTON. Споты, Doxis. Встроенный свеильник, Xal. Чаша для фруктов, Menu. Вазы, Calligaris. Барная стояка выполнена из мрамора. Плитка, Fiandre. Клиент — большой поклонник современных технологий, поэтому в квартире все автоматизировано: от регулировки штор на пульте управления до подогрева полов. nonehttps://www.instagram.com/v_concept_studio/https://www.facebook.com/profile.php?id=100005219530306http://www.v-vitkovskaya.com/ nonehttps://www.instagram.com/v_concept_studio/https://www.facebook.com/nastia.sokolovaahttp://www.v-vitkovskaya.com/ Хозяин квартиры ни разу не зашел на стройку: он видел только голые стены и визуализацию, хотя жил всего на этаж выше объекта. Эффект неожиданности был достигнут в полной мере, т.к. реализация была близка к визуализации с точностью до 95%. Корпусная мебель выполнена на заказ. Потолочные светильники, Xal. Комод в изножье кровати, Mobilform. Кресло, Ditre. Спальня. Кровать, прикроватная тумба, Mobilform. Люстра, Quasar. Декор, Calligaris. Журнальный столик у кресла, Ditre. Плитка, Lafaenza. В ходе проекта было много шуток на тему вина. Любимый сорт заказчика – красное вино пино нуар. Мы долго не могли утвердить цвет гранатовой стены в прихожей и уже стали думать, что проще добавить в краску пино нуар, чтобы клиенту наверняка все понравилось». Плитка, Lafaenza.

Цитирование статьи, картинки - фото скриншот - Rambler News Service.
Иллюстрация к статье - Яндекс. Картинки.
Есть вопросы. Напишите нам.
Общие правила  поведения на сайте.



«oz90.ru»