Просторная квартира 120 кв. метров в ЖК «Мосфильмовский» изначально обладала удачной планировкой. Пара с тремя подрастающими детьми пригласила создать комфортный для каждого члена семьи интерьер дизайнера Катерину Андрееву.
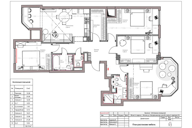
Окна квартиры выходят на две стороны — детям досталась солнечная, а из гостиной открывается панорамный вид на столицу. Пространство условно разделено на две части: блок с кухней-гостиной, барной зоной, родительской спальней, ванной и санузлом, а также комфортно соседствующие между собой спальни девушек с отдельным санузлом. При входе в квартиру оборудована практичная гардеробная.
«Владельцы квартиры интеллигентная и дружная семья, привыкли собираться на завтрак за большим столом и проводить вечера вместе. При этом каждому из детей необходимо было полноценное пространство для уединения, работы и отдыха. Это и стало основным пожеланием при создании интерьера», — рассказывает о проекте Екатерина.
«Перед нами не стояла задача создать ошеломляющий интерьер с интригующей идеей. Семья видела квартиру в светло-бежевых тонах в современной стилистике, но с элементами классики.
Также необходимо было добиться разнообразия в оформлении трех детских спален при сохранении единой стилистики квартиры. Для каждой комнаты был выбран акцентный цвет. Например, младшая дочка любит цвет свежей мяты — он разнообразил сдержанную палитру ее спальни.
Уникальность каждой комнаты достигалась также за счет грамотного планирования пространства и расстановки мебели с учетом возраста и увлечений детей. Младшей из сестер требовалось место для игр, учебы и хобби — она увлекается игрой на пианино, девушкам постарше — просторные встроенные гардеробы и эргономичная рабочая зона.
Мы максимально задействовали свободную площадь. Не осталось ни одного «бесполезного» угла. Получилось учесть все пожелания заказчиков и при этом спроектировать гармоничное пространство для всех членов семьи».
















