Александр Волков и Юлия Петрова (Volkov Architects) оформили офис продаж ЖК Ordynka. Исходное пространство представляло собой отдельностоящий деревянный дом с облицованным доской фасадом и большими витражными окнами.
Необходимо было создать не типичный офис продаж, но запоминающееся пространство, приспособленное для различных мероприятий — не только для встреч с клиентами. Концепция интерьера подчеркивает идею самого проекта Ordynka, где исторические строения XVIII-XIX веков гармонично сочетаются с архитектурой XXI века.
Высокотехнологичный монообъем из листового металла темного цвета деликатно вложили в пространство старинного флигеля. Такое решение позволило создать баланс между новым и старым, подчеркнув историю места и концепцию нового жилого комплекса.
Тема контрастной архитектуры разных времен продолжается и в выбранных материалах. «Мы использовали один материал в разной обработке: листы черного металла в отделке пола, шкафов, кухни, а из полированного металла получились передвижной модуль-бар и раздвигающаяся панель для ТВ презентаций», — рассказывают авторы проекта.
Несмотря на большое количество металла, пространство получилось уютным за счет деталей: мягкого ковра, кресла с бархатной обивкой, теплого цвета стен, зелени и мягкого освещения. Сдержанная палитра дополнена спокойными цветовыми акцентами в виде мебельных групп.
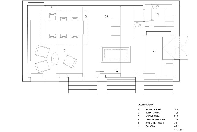
Пространство зонировали при помощи мебели. Центральная группа для встреч включает стол с массивной столешницей из американского ореха от компании Riva 1920, кожаные стулья от немецкого бренда Freifrau и потолочный светильник со стеклянными шарами Gallotti&Radice. Дополняют образ кресла MisuraEmme винного оттенка и кресла Favius со сложной архитектурной формой из металла и кожи терракотового оттенка, а также журнальный столик Baxter.











